Character stone home with five acres, outbuildings and conversion potential near open countryside.
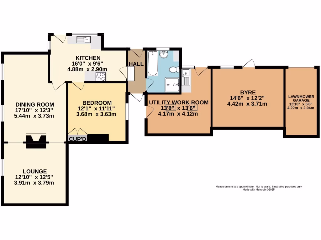
• Large holding: about 5.45 acres total (formal garden plus paddocks)
• Stone barn and multiple outbuildings ripe for conversion (subject to consents)
• Currently arranged as one-bedroom; scope to reinstate/create second bedroom
• PV solar array reduces electricity costs; mains water and sewerage connected
• Very slow broadband speeds; limited mobile signal in area
• Unusual boundary line through property — check title and survey required
• Parts of outbuildings partially demolished and will need repair or replacement
• Double glazing pre-2002; external walls likely uninsulated (as built)
Set within around 5.45 acres of formal garden and level paddocks, Orchard Cottage is a stone-built semi-detached farmhouse offering rural living and tangible scope. The property is presented as a spacious one-bedroom home with a separate dining room and lounge, but the existing outbuildings and former internal layout provide straightforward potential to extend or reinstate a second bedroom. Photovoltaic panels and mains services reduce running costs, while a long driveway and private parking add everyday convenience.
The holding includes a stone barn (ripe for development subject to consents), a mower garage with electric roller shutter, a pony stable, cartshed and further stores — useful for hobby farming, equestrian use or conversion to additional accommodation. The paddocks are well hedged, level and supplied with mains drinking water, making the land immediately usable. The bathroom has modern fittings and underfloor heating; double glazing is installed (pre-2002).
Notable practicalities: broadband speeds are very slow and the property sits in a deprived local area classification, which may affect connectivity and some services. The cottage was formed by splitting an original terrace and an unusual boundary runs through the site — prospective buyers should review title boundaries and seek a survey. Several outbuildings are partly demolished and will need repair or replacement.
This is a countryside opportunity for someone seeking a character stone house with substantial land, outbuildings for conversion and low running costs from PV panels. It will suit buyers prepared to manage renovation, planning and connectivity limitations to realise the site’s full potential.
3 bedroom semi-detached house for sale in Low Farm Cottage, 25 Low Lane, Mickleby, TS13 5LY, TS13 — £495,000 • 3 bed • 1 bath • 749 ft²
4 bedroom house for sale in Meadow View Cottage, Loftus, TS13 4UG, TS13 — £375,000 • 4 bed • 2 bath • 2196 ft²
4 bedroom bungalow for sale in Morton Grange, Nunthorpe, North Yorkshire, TS7 — £550,000 • 4 bed • 3 bath • 1948 ft²
2 bedroom cottage for sale in Holywell Farm, Yorkshire, TS13 — £350,000 • 2 bed • 2 bath • 1355 ft²
4 bedroom detached house for sale in The Forge, High Street, TS12 — £700,000 • 4 bed • 2 bath • 2002 ft²
3 bedroom detached house for sale in Mickleby, Between Sandsend & Runswick Bay , TS13 — £550,000 • 3 bed • 1 bath • 1290 ft²






































































