**Standout Features:**
- Detached, double bay fronted bungalow from the 1930s
- 4 bedrooms and 2 bathrooms, with a flexible layout currently configured as 3 public rooms
- Expansive garden backing onto Cairnhill Woods, perfect for outdoor entertaining
- Off-street driveway parking and a detached garage
- Upgraded with gas central heating and double glazing
- Local amenities and excellent connectivity to Glasgow via nearby Westerton Railway Station
**Summary:**
Discover this charming detached bungalow nestled within a peaceful suburban area, offering an expansive 1,400 sq ft of living space and a wealth of potential for renovation. With four spacious bedrooms and two well-laid-out bathrooms, the property features a striking stone façade, large reception areas, and an open plan kitchen dining space, creating a welcoming atmosphere for families. The significant outdoor garden presents a perfect blank canvas for your creative vision, ideal for gardening enthusiasts or a safe play area for children.
While the bungalow requires some aesthetic modernisation, this offers a unique opportunity to personalize your new home according to your tastes. Located in an affluent community and in close proximity to local amenities, schools, and transport links into Glasgow, this property is an exceptional buy for families or investors looking to enhance value over time. Don't miss out on making this charming home your own; its combination of space, character, and development potential won't last long on the market! Council Tax Band F.
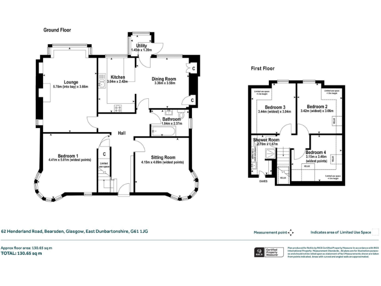
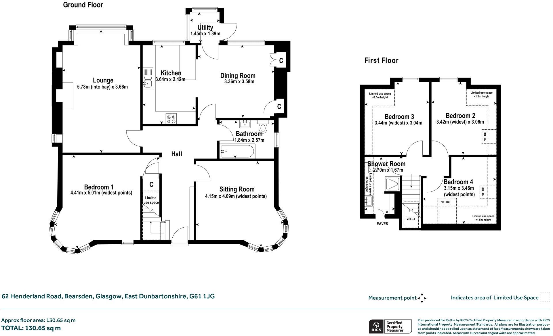
4 bedroom semi-detached house for sale in Henderland Road, Bearsden, G61 — £475,000 • 4 bed • 2 bath • 1850 ft²
4 bedroom bungalow for sale in Fairfield Drive, Clarkston, Glasgow, East Renfrewshire, G76 — £460,000 • 4 bed • 1 bath • 1035 ft²
4 bedroom detached house for sale in Lochend Drive, Bearsden, G61 — £535,000 • 4 bed • 1 bath • 2100 ft²
3 bedroom detached bungalow for sale in 4 Lubnaig Gardens, Bearsden, G61 4QX, G61 — £345,000 • 3 bed • 1 bath • 1324 ft²
4 bedroom bungalow for sale in 99 Mearns Road, Clarkston, G76 — £435,000 • 4 bed • 2 bath • 1410 ft²
3 bedroom detached house for sale in Endrick Drive, Bearsden, G61 — £390,000 • 3 bed • 1 bath • 1370 ft²














































































































































