**Standout Features:**
- Prime building plot of approximately 0.5 acres
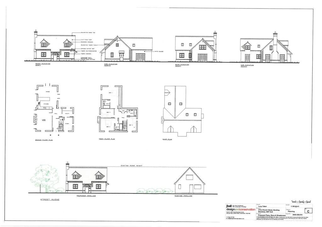
- Planning permission for a bespoke two-storey, four-bedroom home (1,722 sq. ft.)
- Picturesque rural setting adjacent to open farmland and a historical windmill
- Surrounded by mature trees and hedgerows for privacy
- Convenient access to amenities, including local schools rated Good to Outstanding
- Freehold tenure with excellent connectivity options
**Summary:**
This expansive building plot located at Church Street in Bocking presents an exceptional opportunity for those looking to create their dream home. With planning permission already granted for a stunning four-bedroom detached house, designed to the tasteful Essex vernacular style, the site offers a generously-sized area for new development amidst beautiful countryside views.
While the plot basks in an idyllic setting, it also benefits from convenient access to local amenities and schools, making it a fantastic choice for families or those seeking a peaceful retreat. The landscape will inspire you, featuring mature hedgerows and picturesque scenery, ideal for creating serene outdoor spaces. With an attractive price of £260,000, this unique opportunity is not likely to last long, so envision the possibilities today and secure your slice of rural charm!
Land for sale in Building Plot, 272a Church Street, Bocking, Braintree, CM7 — £260,000 • 1 bed • 1 bath • 21780 ft²
Land for sale in Mope Lane, Wickham Bishops, Witham, CM8 — £1,200,000 • 1 bed • 1 bath
Land for sale in Mill Road, Great Bardfield, Braintree, CM7 — £1,600,000 • 4 bed • 2 bath • 1712 ft²
Land for sale in Bradford Street, Braintree, CM7 — £500,000 • 1 bed • 1 bath
Land for sale in Dunmow Road, Great Easton, CM6 — £250,000 • 1 bed • 1 bath • 7841 ft²
Plot for sale in Little Braxted, CM8 — £800,000 • 1 bed • 1 bath • 1399 ft²


















