Ideal family base close to schools, green spaces and commuter links.
Chain-free three-bedroom detached property, newly renovated throughout
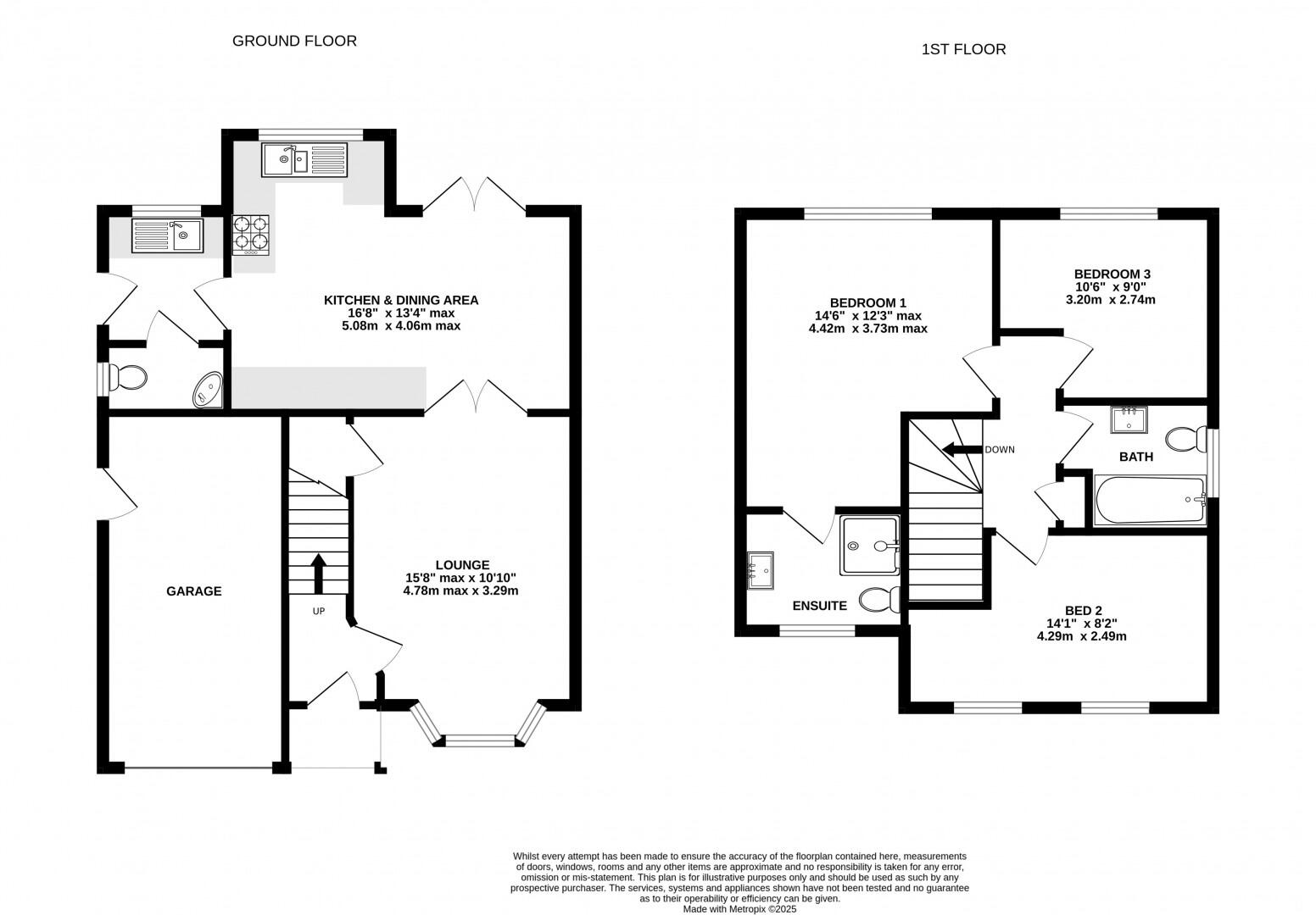
Principal bedroom with dressing area and en-suite shower room
Generous, fenced rear garden; small front garden
Integral single garage plus driveway parking space
Modest internal size (approx. 778 sq ft)
Leasehold with 987 years remaining
Fast broadband and excellent mobile signal
Local crime levels reported above average
Set in a quiet pocket of Sandymoor, this modern three-bedroom detached house offers ready-to-move-in accommodation for growing families. The ground floor flows from a well-equipped kitchen and dining area to French doors opening onto a generous, fenced rear garden — a practical outdoor space for children and pets. The integral garage and driveway add useful off-street parking.
Upstairs, the principal bedroom includes space for a dressing area and an en-suite, complemented by two further bedrooms and a family bathroom. The property has been newly renovated and is presented to a high standard throughout, with gas central heating and fast broadband supporting modern family life.
Practical considerations: the home is leasehold with 987 years remaining and is offered chain-free, simplifying purchase timing. The overall internal size is modest (about 778 sq ft), so buyers requiring larger living areas should check room dimensions. Local crime is reported above average for the area, which may be a factor for some purchasers.
Location is a key strength — quiet avenues, nearby green spaces and good primary and secondary schools make this a convenient family-focused address, with straightforward road and rail links to Manchester and Liverpool.
3 bedroom detached house for sale in Rudheath Lane, Sandymoor, Runcorn, WA7 — £300,000 • 3 bed • 3 bath • 1468 ft²
4 bedroom detached house for sale in Dorchester Park, Runcorn, Cheshire, WA7 — £375,000 • 4 bed • 3 bath • 1631 ft²
4 bedroom detached house for sale in Actons Wood Lane, Runcorn, WA7 — £350,000 • 4 bed • 2 bath • 1263 ft²
3 bedroom detached house for sale in Abbotsley Road, Sandymoor, WA7 — £290,000 • 3 bed • 2 bath • 932 ft²
4 bedroom detached house for sale in Morston Road, Sandymoor, WA7 — £425,000 • 4 bed • 3 bath • 1225 ft²
5 bedroom detached house for sale in Holford Moss, Sandymoor WA7 — £485,000 • 5 bed • 3 bath • 2090 ft²






























































