**Standout Features:**
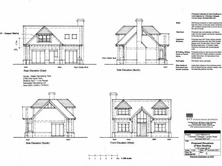
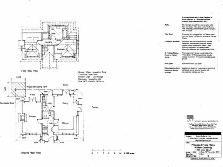
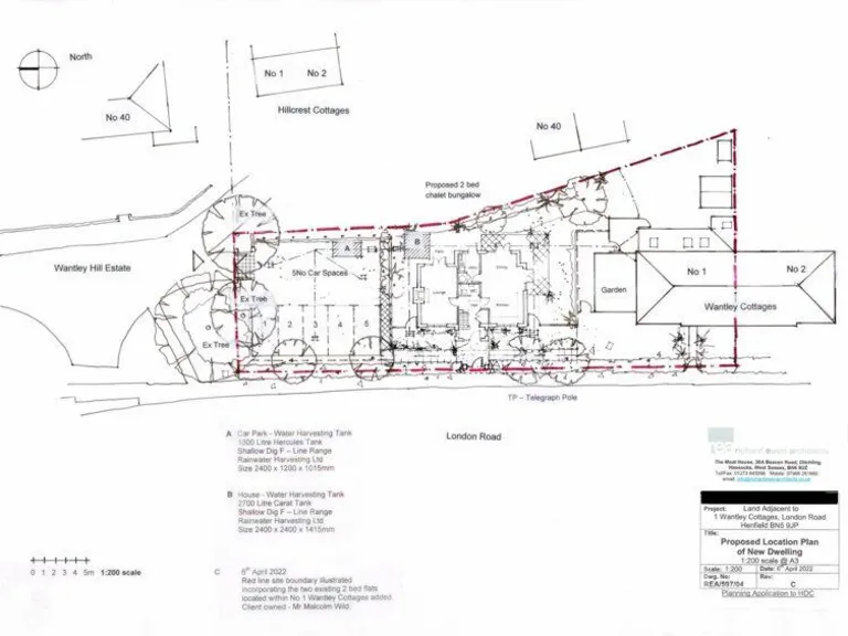
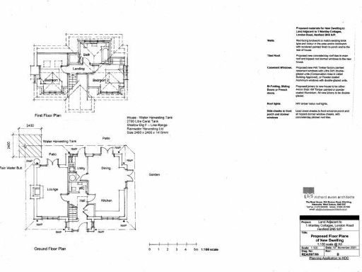
- Building plot for a two-bedroom detached chalet
- Planning permission approved (Ref DC/21/2711)
- Potential to extend to a three-bedroom dwelling (subject to consents)
- Two allocated parking spaces
- Generous front, side, and rear gardens
- Close proximity to local amenities and countryside walks
- Chain-free with freehold tenure
**Potential Downsides:**
- Requires installation of two water harvesting tanks and service connections at buyer's expense
- Subject to Community Infrastructure Levy (CIL) payment if applicable
**Summary:**
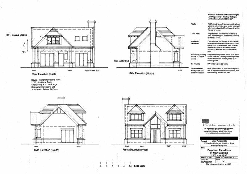
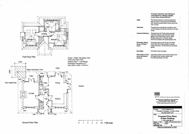
Seize a rare chance to create your dream home on this building plot along London Road in Henfield. With approved planning permission for a charming two-bedroom detached chalet, you can enjoy a well-designed layout that includes a lounge, open-plan kitchen/dining space, and two comfortable bedrooms on the upper floor. The plot features ample outdoor space with front, side, and rear gardens, providing a peaceful retreat in a suburban village setting.
Ideal for families, professionals, or investors, the property offers the option to expand to a three-bedroom dwelling with the necessary consents. Positioned on the periphery of Henfield Village, you'll be just moments from local amenities and scenic countryside walks, making this a convenient yet tranquil location. Act fast—opportunities like this in such a desirable area don’t last long!
2 bedroom detached house for sale in London Road, Henfield, BN5 — £175,000 • 2 bed • 1 bath
Land for sale in Station Road, Henfield, West Sussex, BN5 — £275,000 • 1 bed • 1 bath • 4800 ft²
Land for sale in Storrington - single building plot, RH20 — £300,000 • 1 bed • 1 bath
Plot for sale in Blackstone Lane, Blackstone, BN5 — £450,000 • 1 bed • 1 bath • 1059 ft²
Plot for sale in Keymer Road, Burgess Hill, RH15 — £450,000 • 5 bed • 3 bath • 3290 ft²
1 bedroom detached house for sale in Henfield Common North, Henfield, BN5 — £300,000 • 1 bed • 1 bath • 3294 ft²






































