Chain-free three-bedroom home with garden and extension potential, close to Burnt Oak station.
Chain-free three-bedroom end-terrace with garden and outbuilding
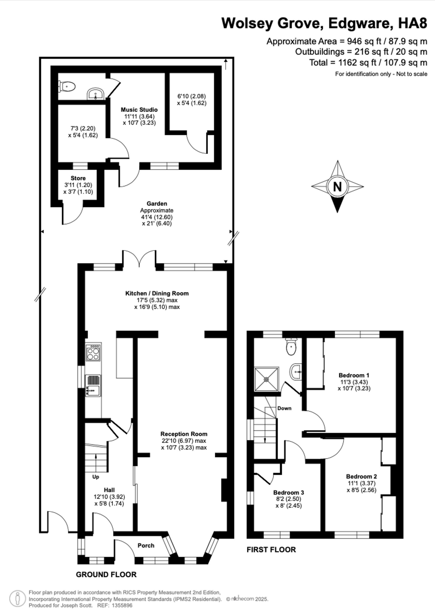
This three-bedroom end-of-terrace home on Wolsey Grove offers practical family living within easy reach of Burnt Oak station (0.7 miles). The ground floor has a spacious lounge flowing into a dining area, plus a separate kitchen with direct access to a private rear garden and an outbuilding that provides an additional reception room or studio. The house is chain-free and offers clear scope to extend and to create a driveway, subject to planning permission.
The property is average sized at about 946 sq ft and sits on a small plot. Interior fittings are dated in places and the home will suit a buyer wanting to update rather than move in and remodel-free. The mid-century features — stone fireplace, wood flooring and built-in shelving — give character but some external maintenance and interior modernisation are needed. The double glazing is older (pre-2002) and the cavity walls are assumed uninsulated, so improving thermal efficiency may be desirable.
Practical details suit families: mains gas boiler and radiators, one family bathroom, ample storage and nearby schools rated Good to Outstanding. The neighbourhood is an urban cultural mix with low crime and excellent mobile and fast broadband speeds. Council tax is moderate and there is no flooding risk.
For buyers seeking value and potential: the property’s freehold status, chain-free sale, garden with outbuilding, and planning potential for extension or dropped kerb make it an appealing project with upside for resale or family expansion. Expect some renovation costs to modernise heating, insulation, windows and exterior finishes.
3 bedroom end of terrace house for sale in Wolsey Grove, Edgware, HA8 — £550,000 • 3 bed • 1 bath • 1172 ft²
3 bedroom end of terrace house for sale in Abbots Road, Edgware, HA8 — £550,000 • 3 bed • 1 bath • 718 ft²
3 bedroom semi-detached house for sale in Barnfield Road, Edgware, HA8 — £475,000 • 3 bed • 2 bath
3 bedroom terraced house for sale in Dryfield Road, Edgware, HA8 — £510,000 • 3 bed • 2 bath • 963 ft²
2 bedroom end of terrace house for sale in Trevor Road, London, HA8 — £434,950 • 2 bed • 1 bath • 622 ft²
3 bedroom terraced house for sale in Cressingham Road, Edgware, HA8 — £550,000 • 3 bed • 2 bath • 775 ft²


















































