**Standout Features:**
- Two bedrooms in a tranquil village setting
- Close proximity to North Walsham and Cromer for amenities
- Low maintenance front garden
- Ground floor bathroom for convenience
- Freehold tenure with off-street parking
- Average-sized garden and additional outbuilding for storage
**Potential Concerns:**
- Property size may be small for larger families
- Broadband speeds described as slow
- Average mobile signal
- Maintenance updates may be needed, depending on buyer standards
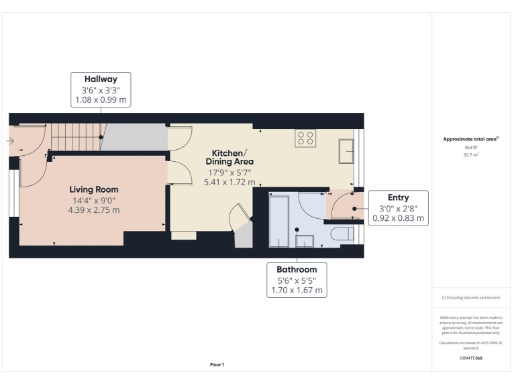
This charming two-bedroom terraced house in the picturesque village of Gimingham offers a serene escape from urban life, perfect for small families or first-time buyers. Just a short drive from North Walsham and the beautiful coastal town of Cromer, this property strikes a balance between quiet country living and accessibility to essential amenities. Inside, you’ll find a cozy living room leading to a functional kitchen/dining area, along with two comfortable bedrooms and a ground floor bathroom, all featuring classic late Victorian design elements.
The low-maintenance front garden invites you home, while the compact backyard adds extra outdoor space with a useful outbuilding. The property also includes off-street parking, ensuring ease of access. With its affordable price of £160,000 and the potential for personal touches or minor renovations, this is an ideal opportunity for those looking to invest in a peaceful lifestyle with room for future growth. Don’t miss out on this idyllic retreat—explore the tranquil charm of Gimingham today!
3 bedroom semi-detached bungalow for sale in Harvey Estate, Gimingham, NR11 — £260,000 • 3 bed • 2 bath • 593 ft²
2 bedroom semi-detached house for sale in Southrepps Road, Gimingham, Norwich, NR11 — £330,000 • 2 bed • 1 bath • 625 ft²
1 bedroom terraced house for sale in Gimingham, Norwich, Norfolk, NR11 — £150,000 • 1 bed • 1 bath • 606 ft²
3 bedroom detached bungalow for sale in School Lane, Gimingham, NR11 — £400,000 • 3 bed • 2 bath • 1392 ft²
2 bedroom terraced house for sale in Church Road, Felmingham, Norfolk, NR28 — £235,000 • 2 bed • 1 bath • 722 ft²
2 bedroom terraced house for sale in Gallus Close, Northrepps, NR27 — £260,000 • 2 bed • 2 bath • 850 ft²














































