Turnkey two-bed close to shops, schools and Durham transport links.
Well-presented two-bedroom Victorian terrace with freehold tenure
Low-maintenance fenced front garden and gravelled rear yard
Good broadband speeds and excellent mobile signal
Short walk to local shops, cafés and transport links to Durham
Modest room sizes and a small overall plot
Mixed local school ratings; some nearby schools ‘Requires improvement’
Low local crime and affluent area classification
Council tax band not specified
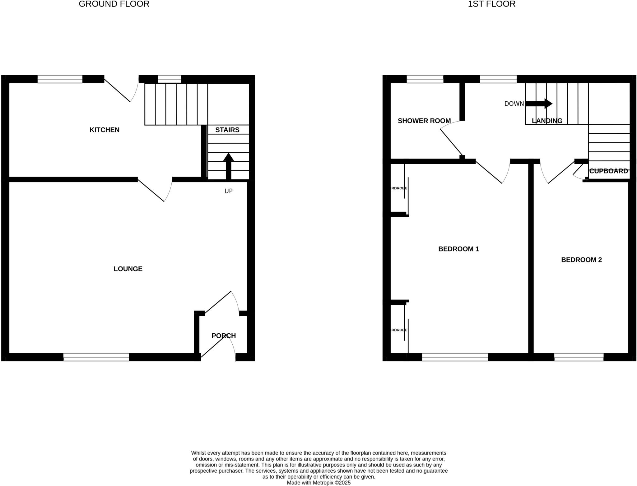
Step inside this well-presented two-bedroom Victorian terrace on Durham Street, ideal for first-time buyers seeking a turnkey home in Langley Park. The ground floor offers a welcoming porch, an open living/dining room with laminate flooring and a fitted kitchen, while two well-proportioned bedrooms and a shower room sit on the first floor. The property is freehold and benefits from low local crime, fast broadband and excellent mobile signal.
Externally there’s a small fenced front garden and a gravelled yard to the rear — low-maintenance outdoor space that suits busy lives. The terrace sits within comfortable walking distance of shops, cafés and frequent transport links into Durham City, and is included in catchment for several local primary and secondary schools.
Practical points to note: room sizes are modest and the plot is small, so buyers needing large gardens or extensive storage should consider this. School ratings in the area are mixed (some local schools ‘Good’, others ‘Requires improvement’). Council tax band is not specified. Early viewing is recommended to appreciate the ready-to-live-in condition and convenient location.
2 bedroom terraced house for sale in Langley Street, Langley Park, Durham, DH7 — £134,950 • 2 bed • 1 bath
2 bedroom terraced house for sale in Quebec Street, Langley Park, Durham, DH7 — £89,995 • 2 bed • 1 bath • 776 ft²
2 bedroom terraced house for sale in Elm Street, Langley Park, Durham, DH7 — £80,000 • 2 bed • 1 bath • 665 ft²
2 bedroom terraced house for sale in Logan Street, Langley Park, Durham, DH7 — £55,000 • 2 bed • 1 bath
2 bedroom end of terrace house for sale in Church Street, Langley Park, Durham, DH7 — £112,500 • 2 bed • 1 bath
2 bedroom terraced house for sale in Logan Street, Langley Park, Durham, DH7 — £65,000 • 2 bed • 1 bath • 768 ft²






































