Character-filled town-centre townhouse with private parking and flexible living space.
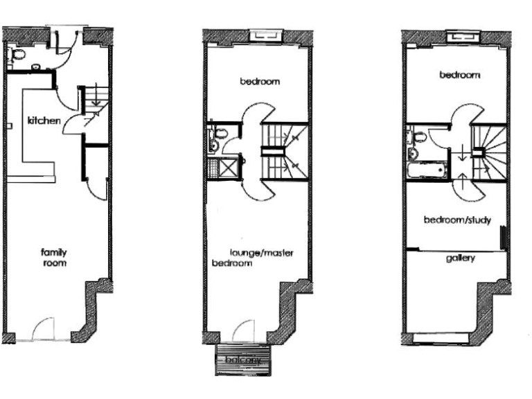
Four bedrooms across three floors with flexible mezzanine space
This four-bedroom Victorian townhouse in the heart of Leek combines loft-style living with genuine period character. Set across three floors, the home offers open-plan living, large arched windows that flood rooms with light, and a rare private parking space — a strong asset in the town centre.
The conversion retains exposed brickwork, double-height space and a mezzanine that can work as a main suite, home office or play area. Accommodation includes a ground-floor kitchen/living area opening to an enclosed decked yard, two bedrooms and a shower room on the first floor, and two further bedrooms plus a family bathroom on the upper floor. Broadband and mobile signal are strong; mains gas central heating and double glazing provide practical everyday comfort.
Important practical points: the building is listed and in a conservation area, which preserves its historic character but will restrict external and some internal changes and may complicate consent for works. The plot and overall footprint are small, and the surrounding area is relatively deprived with higher local crime levels — factors to weigh for family buyers and insurers.
Sold freehold and offered chain free, this property will suit buyers who value architectural character, convenient town-centre living and flexible internal layouts, and who are comfortable navigating listed-building requirements. The private parking space and proximity to local schools, shops and markets add to its everyday convenience.
3 bedroom town house for sale in Alsop Street, Leek, Staffordshire, ST13 5NT, ST13 — £265,000 • 3 bed • 2 bath • 1409 ft²
4 bedroom town house for sale in Shirburn Road, Leek, Staffordshire, ST13 6LD, ST13 — £160,000 • 4 bed • 1 bath • 980 ft²
3 bedroom town house for sale in King Street, Leek, Staffordshire, ST13 5NW, ST13 — £300,000 • 3 bed • 2 bath • 1292 ft²
3 bedroom town house for sale in Alsop Street, Leek, Staffordshire, ST13 5NZ, ST13 — £155,000 • 3 bed • 2 bath • 1012 ft²
4 bedroom town house for sale in Shirburn Road, Leek, Staffordshire, ST13 6LE, ST13 — £190,000 • 4 bed • 1 bath • 987 ft²
4 bedroom town house for sale in Spring Gardens, Leek, Staffordshire, ST13 8DD, ST13 — £330,000 • 4 bed • 2 bath • 1409 ft²






































































































































