**Standout Features:**
- Stunning two-bedroom Victorian conversion.
- Immaculate condition with high ceilings and period details.
- Private garden with a functional garden office.
- Close proximity to transport: 0.3 miles to Leyton Midland Station, 0.8 miles to Leytonstone High Street.
- Leasehold with 162 years remaining and low annual ground rent (£200).
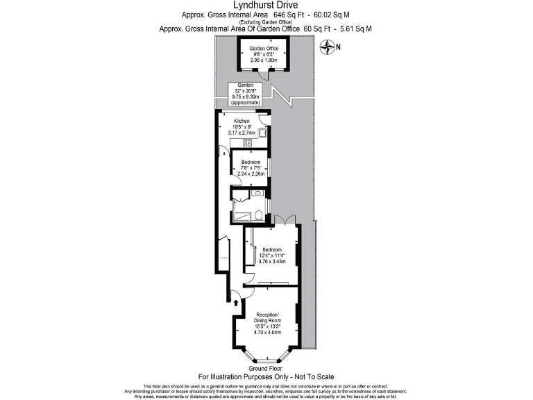
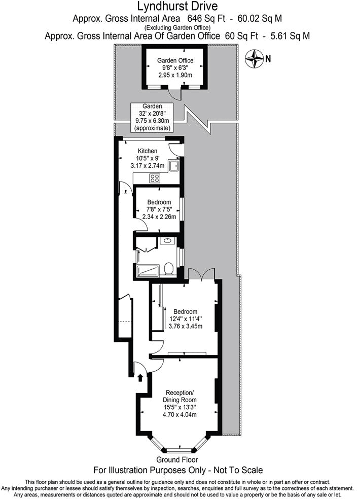
This exquisite two-bedroom Victorian ground floor conversion offers a perfect blend of charm and modern comfort, ideal for couples or young families. With its elegant bay window, high ceilings, and meticulous interiors, this property radiates style and warmth. The spacious living area features a log burner and built-in bookshelves, while the fully fitted kitchen is perfect for casual dining with picturesque views of the private garden. Both bedrooms are well-sized, with the principal bedroom boasting Crittall patio doors that lead to an outdoor oasis, enhancing your living space.
The property excels with its beautifully designed private garden, featuring a patio and a well-maintained lawn, complemented by a trendy garden office that offers a versatile space for work or leisure. Situated on a tree-lined street, the property is not only tranquil but also moments away from local amenities, parks, and outstanding schools, such as Barclay Primary. With its excellent transport links to central London and spacious living conditions, this home represents a unique opportunity that is likely to attract swift interest—don’t miss your chance to own a slice of Victorian elegance in a vibrant community!
2 bedroom apartment for sale in Melbourne Road, London, E10 — £550,000 • 2 bed • 2 bath • 902 ft²
2 bedroom flat for sale in Lytton Road, Leytonstone, E11 — £525,000 • 2 bed • 1 bath • 699 ft²
2 bedroom terraced house for sale in Byron Road, London, E10 — £600,000 • 2 bed • 1 bath • 777 ft²
2 bedroom flat for sale in Hainault Road, Upper Leytonstone, London, E11 — £480,000 • 2 bed • 1 bath • 574 ft²
2 bedroom apartment for sale in Leslie Road, Leytonstone, E11 — £450,000 • 2 bed • 1 bath • 626 ft²
2 bedroom flat for sale in Colchester Road, Leyton, E10 — £500,000 • 2 bed • 1 bath • 643 ft²


















































































