Private plot with big garage and countryside potential for extension or annexe.
Large enclosed rear garden, approx 0.17 acres
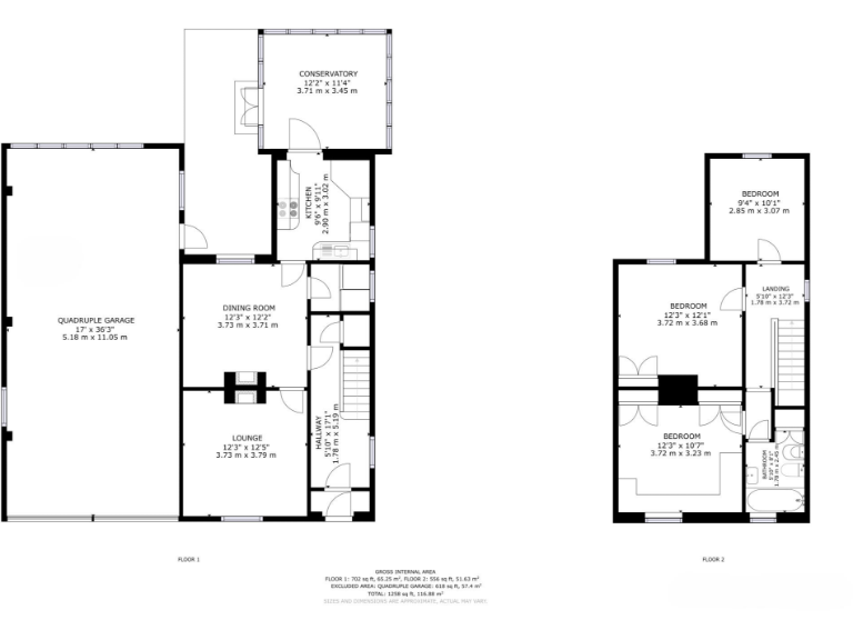
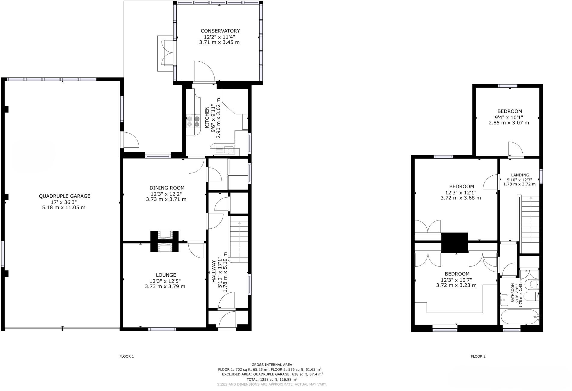
Substantial quadruple garage, 11m x 5.18m internal (convertible subject to permission)
Farmland views and strong privacy, accessed down a farm track
Three bedrooms; single family bathroom only
Oil-fired boiler heating; main fuel is oil
Double glazing fitted post-2002
Slow broadband and average mobile signal
Council tax band above local average
Set well back down a farm track in sought-after Sellindge, this detached three-bedroom house sits on roughly 0.17 acres and enjoys uninterrupted farmland views on all sides. The layout is traditional with a dining room (solid fuel fire), lounge, kitchen and conservatory to the rear. Upstairs are three bedrooms and a family bathroom. The plot, privacy and large garaging are the real strengths for a family or buyer seeking scope to improve.
There is clear potential to extend the main house and to convert the substantial garage into ancillary accommodation or an annexe, subject to planning permission. The garage measures approximately 11m x 5.18m internally, offering flexible scope for conversion, workshop use or vehicle storage. The garden is large and enclosed, useful for children, pets and productive landscaping.
Practical points to note: heating is oil-fired with boiler and radiators; broadband speeds are slow and mobile signal is average. The property has double glazing installed post-2002, was built around 1976–1982 and sits in a village with good primary and secondary schools nearby. Council tax sits above average for the area.
This home will suit buyers who value privacy, outdoor space and scope to design their own extension or annexe. It is a good proposition for families looking for village living with farmland views, or an investor/builder prepared to manage planning and update services.
4 bedroom detached house for sale in Sellindge, TN25 — £950,000 • 4 bed • 2 bath • 1832 ft²
4 bedroom detached house for sale in Moorstock Lane, Sellindge, TN25 — £785,000 • 4 bed • 2 bath • 1543 ft²
4 bedroom detached house for sale in Stonehill, Sellindge, TN25 — £775,000 • 4 bed • 2 bath • 1999 ft²
4 bedroom semi-detached house for sale in Barrow Hill, Sellindge, Kent, TN25 — £450,000 • 4 bed • 2 bath • 1529 ft²
2 bedroom detached house for sale in Whitehall Way, Ashford, TN25 — £425,000 • 2 bed • 3 bath • 1152 ft²
4 bedroom detached bungalow for sale in Swan Lane, Sellindge, TN25 — £595,000 • 4 bed • 3 bath • 1852 ft²














































































































