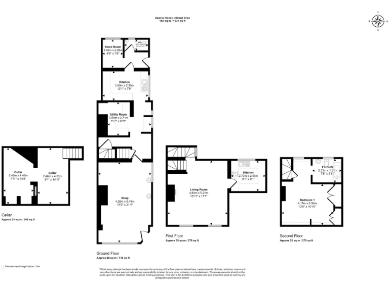
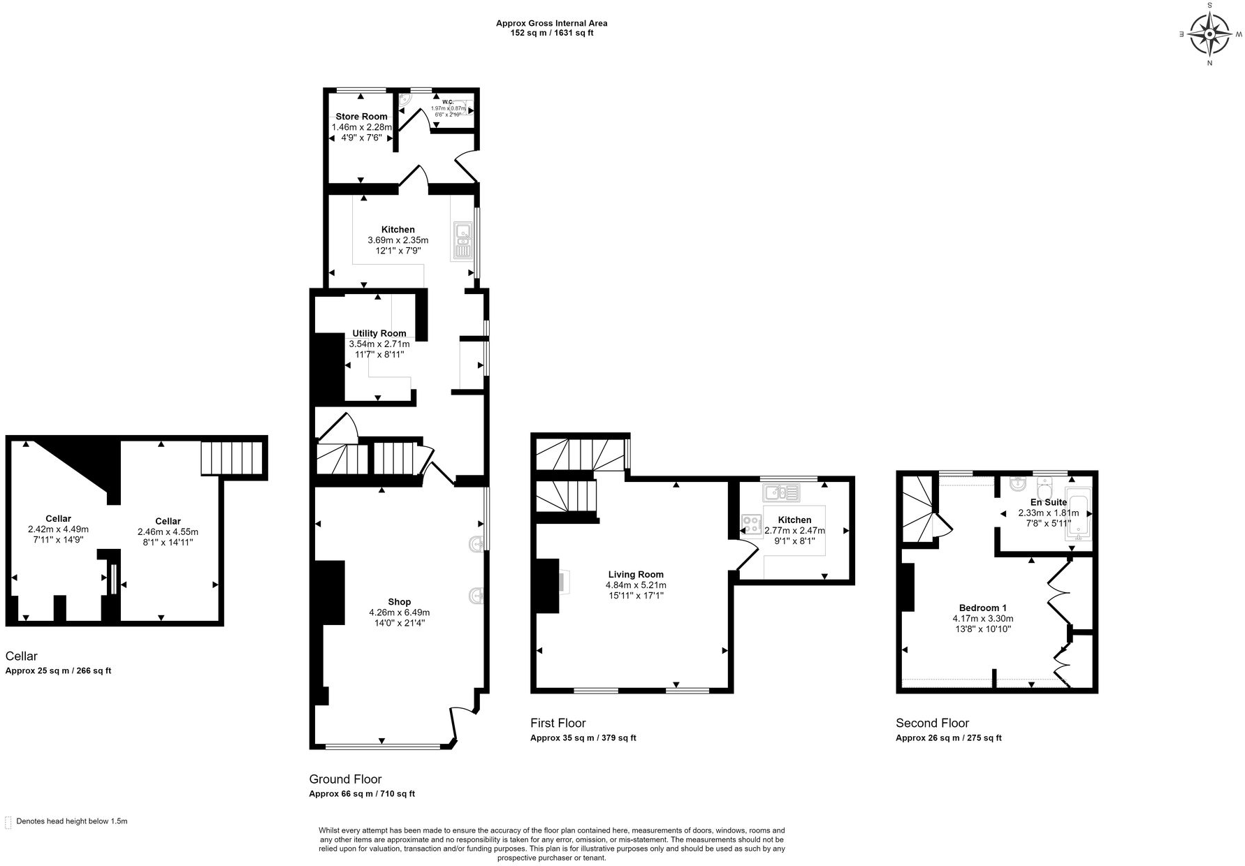
Large Georgian mixed‑use property with planning in a central Bridgnorth location.
- Planning permission secured for serviced accommodation
- Existing mixed income: flats and six-seat salon
- Approx 1,636 sq ft overall — unusually large internal area
- Freehold tenure, central Bridge Street location
- Requires renovation and reconfiguration to maximise returns
- High flood risk — affects insurance and use
- Above-average local crime — consider management costs
- Small plot with limited external amenity space
A rare semi-commercial freehold in Bridgnorth with planning permission already secured for serviced accommodation. The property extends to approximately 1,636 sq ft and currently combines residential flats and a six‑seat salon, giving an existing income stream and clear scope to increase returns through refurbishment and a loft conversion.
This is an investor-focused opportunity: current rents and trade detail suggest a projected income around £42,000 per year if fully let as described. The central Bridge Street location offers excellent footfall, strong mobile signal and fast broadband — useful for short‑stay bookings or continued commercial use. The building’s Georgian character and large overall size create strong potential to reconfigure or add bedrooms to maximise serviced‑accommodation revenue.
Buyers should be aware of material negatives. The property requires renovation and reconfiguration to realise the plan; there is a high flood risk for the area and crime is above average locally. The plot is small and the layout is multi‑storey, which may limit outside amenity and certain conversion options. These factors affect insurance and operating costs and should be factored into any purchase decision.
Plot for sale in High Street, Bridgnorth, Shropshire, WV16 — £240,000 • 1 bed • 1 bath • 2482 ft²
Commercial property for sale in High Street, Bridgnorth, WV16 — £614,995 • 1 bed • 1 bath • 2982 ft²
4 bedroom house for sale in Mill Street, Bridgnorth, WV15 — £450,000 • 4 bed • 2 bath • 3038 ft²
High street retail property for sale in 32 High Street, Bridgnorth, WV16 4DF, WV16 — £395,000 • 1 bed • 1 bath • 3881 ft²
High street retail property for sale in 24 High Street, Bridgnorth, Shropshire, WV16 — £25,000 • 1 bed • 1 bath • 947 ft²
Property for sale in High Street, Broseley, TF12 — £125,000 • 1 bed • 1 bath • 991 ft²


























































































