Family-friendly home close to town amenities and schools.
Three bedrooms (two doubles and one single)
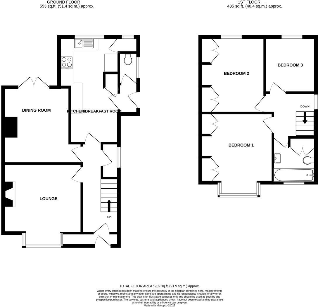
This attractive three-bedroom Edwardian semi sits in a convenient Axminster street, a short walk from shops, schools and transport links. The house retains period character—front and rear box bay windows and a feature fireplace—while offering comfortable, practical living across two reception rooms and an open-plan kitchen/breakfast area with modern appliances.
The enclosed rear garden is a genuine family asset: patio seating, lawn, two sheds and a greenhouse provide outdoor space for children and gardening. Off-street parking and a low-maintenance front garden add kerb appeal and everyday convenience. Broadband and mobile coverage are strong, and the property is freehold with a low Council Tax Band B.
There are some energy and layout considerations to note. The cavity walls are assumed uninsulated, which will affect heating bills and could benefit from upgrading. The house has a single family bathroom serving three bedrooms, and some buyers may want cosmetic updating to personalise the interior. Structurally the home is typical of its era and presents straightforward scope for improvements rather than major works.
Overall this is a practical, well-located family home offering period charm, useful outdoor space and scope to improve energy performance and internal finishes to suit modern living.
3 bedroom semi-detached house for sale in Willhayes Park, Axminster, EX13 — £280,000 • 3 bed • 1 bath • 776 ft²
3 bedroom semi-detached house for sale in Petre Street, Axminster, EX13 — £292,500 • 3 bed • 2 bath • 975 ft²
3 bedroom semi-detached house for sale in West Close, Axminster, EX13 — £225,000 • 3 bed • 1 bath • 955 ft²
2 bedroom semi-detached house for sale in Lea Combe, Axminster, EX13 — £265,000 • 2 bed • 2 bath • 483 ft²
3 bedroom semi-detached house for sale in Norman Close, Axminster, EX13 — £350,000 • 3 bed • 2 bath • 1054 ft²
3 bedroom terraced house for sale in Musbury Road, Axminster, EX13 — £280,000 • 3 bed • 1 bath • 1062 ft²






































































