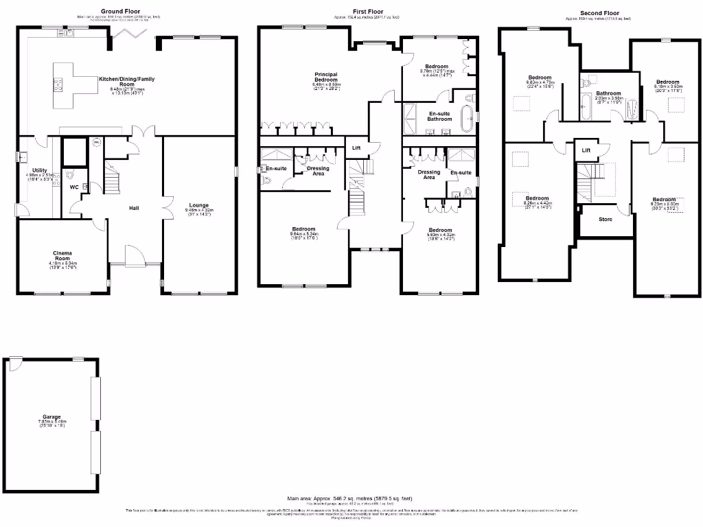
Rare new-build 5-bedroom family home with lift, EPC A and gated driveway..
Approx. 5,821 sq ft over three floors, lift to all levels
Five bedrooms, four luxury ensuites; principal bedroom with dressing area
EPC Rating A with solar panels — low running costs
Gated driveway, ample parking and detached double garage (approx. 464 sq ft)
Built 2021; c. 6 years remaining of 10-year new build warranty
Very large private rear garden with patio and bifold doors
Freehold; council tax band H — very expensive
Walking distance to Widney Manor station; strong road links
An exceptional, contemporary detached family home on one of Lovelace Avenue’s premier plots. Built in 2021 to a high specification, this rare new build offers approximately 5,821 sq ft of versatile accommodation over three floors, served by a bespoke lift and a striking central staircase. The principal suite and additional bedrooms each include dressing areas and luxury ensuites, creating a turnkey environment for a large household.
The ground floor features expansive reception space and an open-plan kitchen/family room with bifold doors opening to a private rear garden and large patio — ideal for indoor-outdoor living and entertaining. Solar panels and an EPC A rating deliver low running costs. Externally the property is discreetly set behind electronic gates with a large gated driveway and a detached double garage.
Location is a strong asset: under half a mile to Widney Manor station and around 1.1 miles to Solihull town centre, with fast road and rail links to Birmingham and London. The house sits in a very affluent, low-crime area close to highly regarded secondary schools, making it well suited to families seeking space, specification and connectivity.
Buyers should note this is a freehold new build with approximately six years remaining of a 10-year warranty. Council Tax is in a very expensive band and prospective purchasers should satisfy themselves on services and fittings — some nearby primary schools have mixed Ofsted outcomes. Viewings are by appointment only.
7 bedroom house for sale in Lovelace Avenue, Solihull, B91 — £4,250,000 • 7 bed • 6 bath • 10293 ft²
5 bedroom detached house for sale in Witley Avenue, Solihull, B91 — £895,000 • 5 bed • 4 bath • 2838 ft²
6 bedroom detached house for sale in Sandal Rise, Solihull, B91 — £1,625,000 • 6 bed • 6 bath • 3246 ft²
5 bedroom detached house for sale in Sycamore Gardens, Solihull, B91 — £925,000 • 5 bed • 3 bath • 2185 ft²
5 bedroom detached house for sale in Church Hill Road, Solihull, West Midlands, B91 — £1,000,000 • 5 bed • 3 bath • 2237 ft²
8 bedroom detached house for sale in Ashlawn Crescent, Solihull, B91 — £2,300,000 • 8 bed • 6 bath • 6375 ft²


















