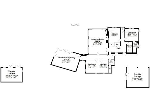
Spacious single‑storey living on a private, gated plot with renovation quality.
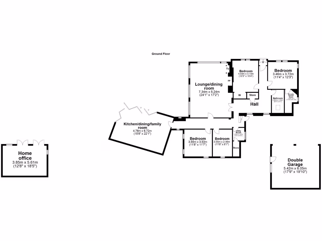
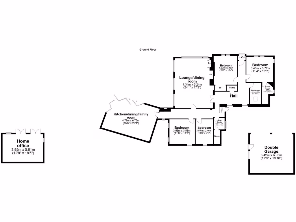
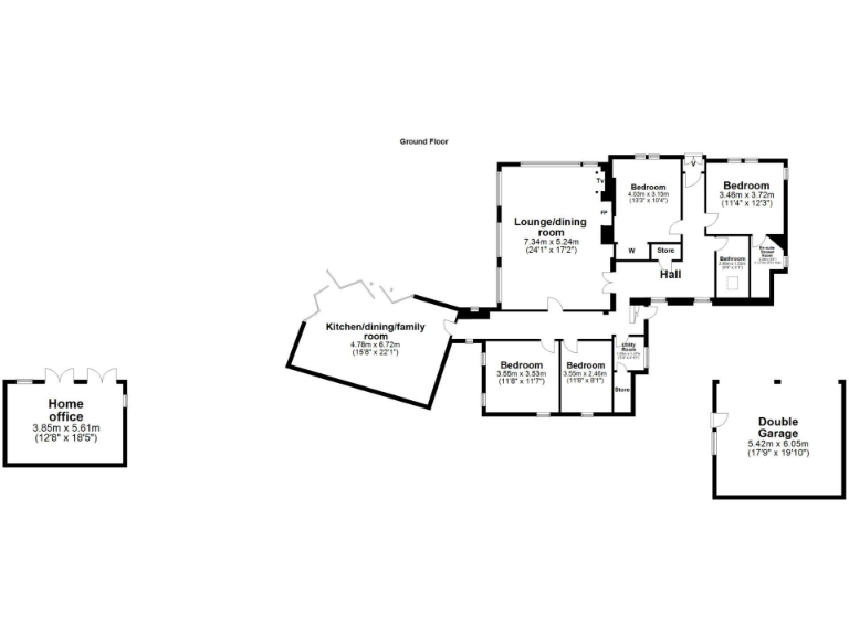
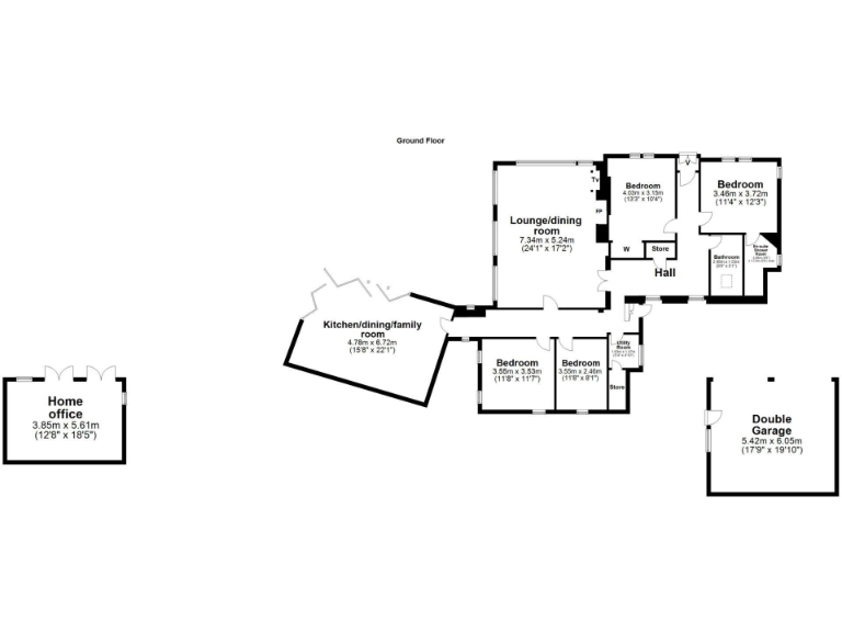
Four double bedrooms in single‑storey U‑shaped layout
Southpark North Lodge is a striking detached bungalow combining early 20th‑century character with a high‑quality modern extension. The four double bedrooms and flexible U‑shaped layout make the single‑storey plan especially attractive for downsizers seeking generous, accessible accommodation without compromising on style. Recent renovation work has produced a bespoke kitchen with island, integrated Neff appliances, boiling‑water tap, Sonos system and a fitted projector for comfortable modern living.
Externally the gated plot offers privacy and mature landscaping, extensive decked entertaining space and a double garage with electric doors. Planning permission (May 2022, ref 22/00249/APP) exists for a separate pool and office complex within the grounds, offering clear scope to add recreational or home‑working facilities (subject to conditions).
Practical considerations are stated plainly: the property has an EER band E and council tax is described as quite expensive. Mobile signal is average, broadband is fast, and the house sits within a wider area classed as detached rural retirement but with an official area deprivation flag — buyers should satisfy themselves on local services and costs. Overall, this is a thoughtfully upgraded, roomy bungalow on a private plot, suited to buyers seeking a low‑step, characterful home with potential to add leisure or workspace.
4 bedroom character property for sale in Southpark House, Southwood, Troon, KA10 7EL, KA10 — £695,000 • 4 bed • 3 bath • 3638 ft²
3 bedroom detached bungalow for sale in 31 Fullarton Crescent, Troon, KA10 6LL, KA10 — £295,000 • 3 bed • 2 bath • 1248 ft²
4 bedroom detached house for sale in Bellevale Quadrant, Ayr, KA7 2RR, KA7 — £385,000 • 4 bed • 2 bath • 1927 ft²
3 bedroom detached bungalow for sale in The Cottage, 23 Crosbie Road, Troon, KA10 6HE, KA10 — £375,000 • 3 bed • 2 bath • 1453 ft²
3 bedroom bungalow for sale in 58 The Loaning, Alloway, KA7 4UW, KA7 — £365,000 • 3 bed • 2 bath • 1615 ft²
4 bedroom detached bungalow for sale in Lady Margaret Drive, Troon, KA10 — £585,000 • 4 bed • 3 bath • 1850 ft²






























































































































































































































