Large mixed‑use site with approved and pending planning for multiple flats.
Unbroken freehold on East Finchley High Road
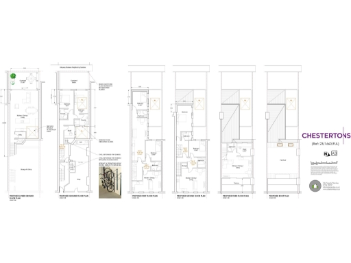
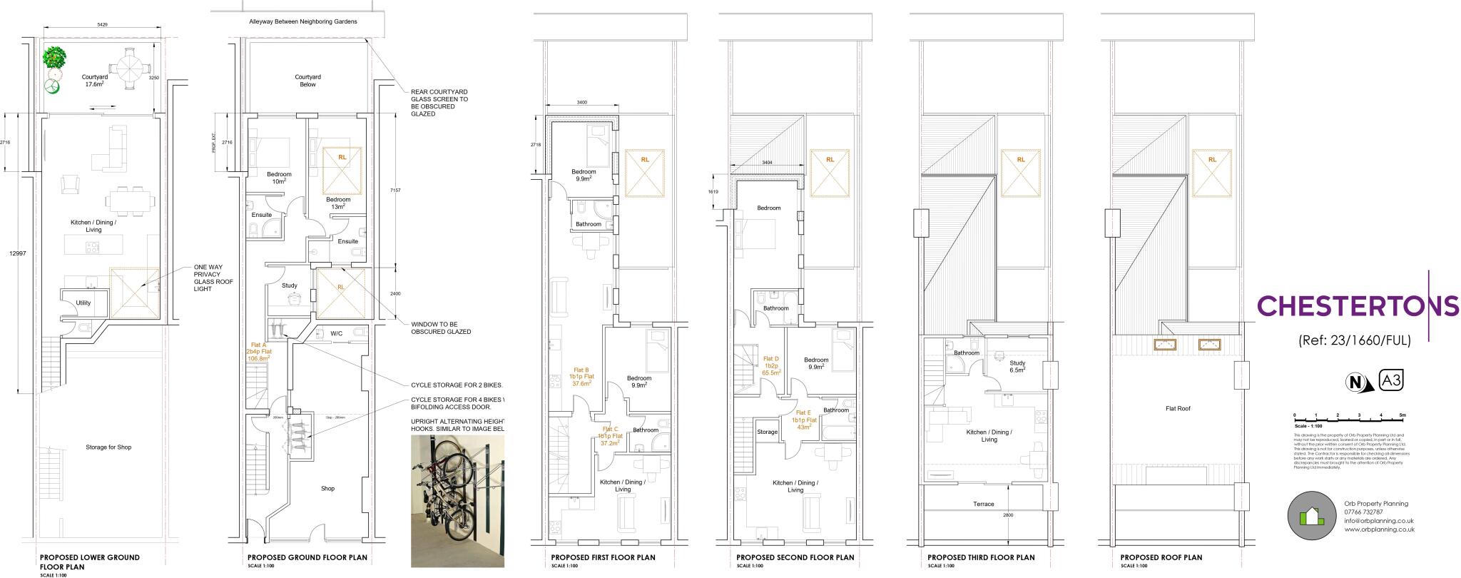
A rare unbroken freehold on East Finchley High Road offering significant development upside in a busy local parade. Two separate planning routes are live: one approved subject to S106 for conversion to six apartments while retaining the ground-floor shop, and a newer application seeking three additional units via basement excavation and roof extension. Both routes present clear value-add potential for a developer or investor prepared to manage planning completion and build works.
The property currently generates rental income: a long-standing commercial licence producing £17,500 pa and a let first/second floor one‑bed producing £15,000 pa (next rent review November 2025). A vacant one‑bed requires modernisation. The building needs renovation throughout and benefits from period features, good broadband and excellent public transport links — East Finchley tube is a five-minute walk.
Buyers should note material costs and obligations: CIL is estimated at c. £48k–£52.5k depending on route, and the approved planning requires S106 completion. The site sits on a small plot in a high‑footfall location, with above‑average local crime reported. This is a straightforward pick for developers or investor-operators who can manage tenant conversations, complete S106, and deliver refurbishment or redevelopment to unlock value.
Commercial development for sale in High Road, London, N2 — £1,150,000 • 5 bed • 1 bath • 3856 ft²
Residential development for sale in 93 High Road, East Finchley, London, N2 8AG, N2 — £1,150,000 • 1 bed • 1 bath • 2560 ft²
5 bedroom terraced house for sale in High Road, London, N2 — £1,150,000 • 5 bed • 1 bath • 3856 ft²
Commercial development for sale in High Road, London, N2 — £1,100,000 • 1 bed • 1 bath
3 bedroom semi-detached house for sale in High Road, North Finchley, N12 — £850,000 • 3 bed • 2 bath • 1846 ft²
High street retail property for sale in Woodhouse Road, London, N12 — £1,600,000 • 1 bed • 1 bath • 1458 ft²






























































