**Standout Features:**
- Impressive four double bedrooms
- Spacious open-plan kitchen with high-end finishes
- Generous rear and front garden, perfect for family activities
- Ample off-road parking and a garage/workshop
- Located in a tranquil coastal village, ideal for families and retirees
**Potential Concerns:**
- Moderate council tax band F
- Slow broadband speeds might affect connectivity
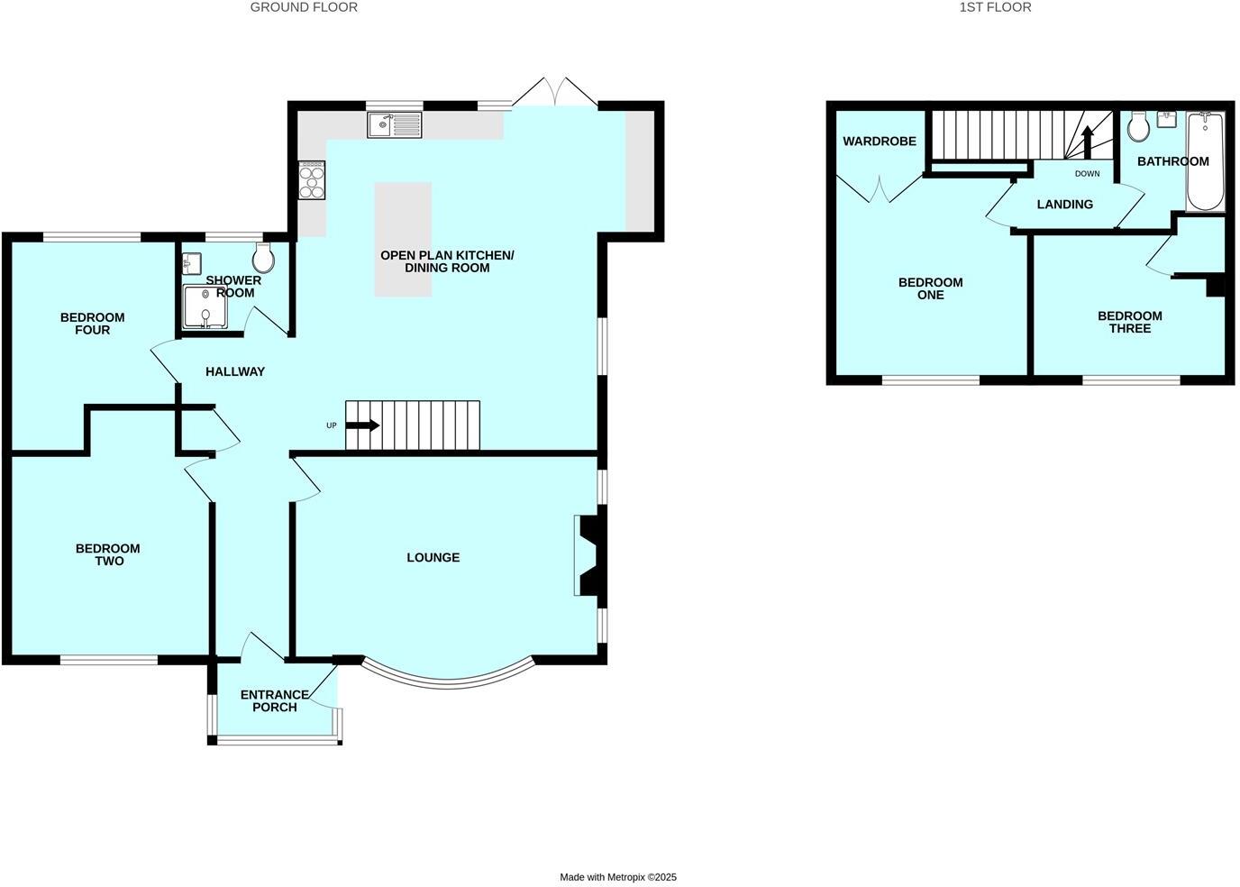
Located in the highly sought-after coastal village of Wembury, this beautifully presented detached family home offers a harmonious blend of comfort and convenience. With four spacious double bedrooms, this property is ideal for families looking for space to grow. The standout feature is the expansive open-plan kitchen and dining room, showcasing polished quartz countertops, an island, and underfloor heating, effortlessly combining elegance with practicality.
The ground floor also includes a cozy lounge, a welcoming entrance porch, and a convenient shower room/wc, while the first floor features a family bathroom and ample storage options. Beautifully maintained gardens surround the home, providing a picturesque backdrop for outdoor entertainment or a safe space for children to play. With off-road parking for multiple vehicles and a garage/workshop, this residence is as practical as it is attractive.
Situated in a peaceful neighborhood surrounded by stunning countryside and close proximity to Wembury Beach, this home presents a unique opportunity to enjoy a tranquil lifestyle. Perfect for families or retirees seeking space, serenity, and a strong community feel. Don't miss out on experiencing Wembury's coastal charm; properties like this don’t stay on the market long!
4 bedroom detached house for sale in Wembury, Plymouth, PL9 — £650,000 • 4 bed • 2 bath • 1744 ft²
4 bedroom detached house for sale in Wembury, Plymouth, PL9 — £500,000 • 4 bed • 2 bath • 1357 ft²
3 bedroom detached bungalow for sale in Hawthorn Park Road, Wembury, Plymouth., PL9 — £425,000 • 3 bed • 1 bath • 1323 ft²
4 bedroom detached house for sale in Wembury, Plymouth, PL9 — £550,000 • 4 bed • 2 bath • 1458 ft²
3 bedroom detached house for sale in Mewstone Ave, Wembury, Plymouth., PL9 — £470,000 • 3 bed • 1 bath • 1225 ft²
3 bedroom detached bungalow for sale in Wembury Meadow, Wembury, Plymouth, PL9 — £375,000 • 3 bed • 1 bath • 571 ft²






















































































































