Move-in ready period home with modern fittings and handy transport links.
Extended ground floor with open-plan kitchen and dining
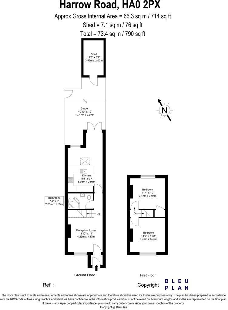
This attractive two-bedroom terraced cottage blends period character with recent modern upgrades, arranged over two storeys and extended to the ground floor. The ground floor offers an open-plan kitchen/dining area with integrated Neff appliances and a Quooker tap, plus a separate lounge at the rear with underfloor heating. Two double bedrooms upstairs retain feature fireplaces and the bathroom is contemporary and move-in ready.
Outside, the property benefits from a private rear garden with useful rear access and a storage outbuilding. The house is double glazed and heated by a mains gas boiler and radiators. At 698 sq ft on a small urban plot, the layout is compact but efficient — well suited to a first-time buyer, small family or buy-to-let investor seeking a low-maintenance home close to transport.
Location is a clear advantage: Sudbury Town (Piccadilly line) and Sudbury & Harrow Road Overground are within easy walking distance for fast journeys into central London. Several well-regarded primary and secondary schools are nearby, and local amenities are within walking distance.
Important considerations: the area records higher crime and is classed as deprived locally, and the terrace has solid brick walls (likely without cavity insulation). On-street parking is limited. Buyers should note the modest internal footprint and small front and rear gardens when comparing to larger suburban homes.
2 bedroom terraced house for sale in Rickmansworth Road, Pinner, HA5 — £450,000 • 2 bed • 1 bath • 798 ft²
2 bedroom end of terrace house for sale in Elms Lane, Wembley, HA0 — £556,000 • 2 bed • 1 bath • 862 ft²
2 bedroom terraced house for sale in Greenford Road, Harrow, HA1 — £499,950 • 2 bed • 1 bath • 684 ft²
2 bedroom end of terrace house for sale in Bessborough Road, Harrow, HA1 — £500,000 • 2 bed • 1 bath • 689 ft²
3 bedroom terraced house for sale in District Road, Wembley, HA0 — £559,000 • 3 bed • 1 bath • 1003 ft²
2 bedroom terraced house for sale in Bessborough Road, Harrow, HA1 — £485,000 • 2 bed • 1 bath • 779 ft²






































