**Standout Features:**
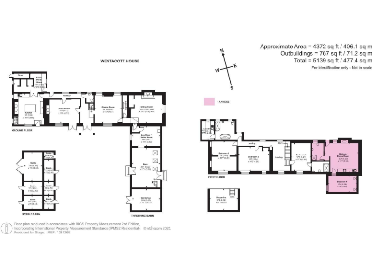
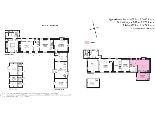
- **Size & Space:** Expansive 4,372 sq ft detached Grade II listed farmhouse on 1.42 acres.
- **Renovations:** Major renovations since 2022, including new roof, rewiring, and full internal re-plastering.
- **Flexible Living:** 1-bedroom annexe with strong holiday let potential, plus an adjoining barn and a stable block with lapsed consent for conversion.
- **Gardens & Privacy:** Secluded, mature gardens providing a tranquil environment, ideal for family relaxation or entertaining.
- **Amenities:** Excellent mobile signal, ultrafast broadband, and low crime rate in an affluent village setting.
Located on the outskirts of Barnstaple, this stunning detached farmhouse promises a unique blend of period charm and modern comfort. With its impressive restoration, including beautiful Inglenook fireplaces and a sage green timber kitchen featuring a classic Aga, it invites you to enjoy country living at its finest. The flexible layout currently accommodates three large bedrooms with potential for a fourth, and the self-contained annexe is an excellent income opportunity as a rental unit.
Step outside to your expansive, beautifully landscaped gardens—a lush oasis that encourages outdoor gatherings, gardening, or simply unwinding amidst nature. This property has the rare benefit of low maintenance gardens free from tree preservation orders. Positioned between the picturesque Exmoor and the North Devon coastline, along with local amenities just a short drive away, it caters to all lifestyle needs.
A rare find in this tranquil hamlet, this property is chain-free and ready for immediate occupancy. With planning permissions in place for future extensions or developments, this residence offers a unique opportunity that may not last long on the market. Embrace the comfort and security of countryside living, while staying connected to the vibrant community of Barnstaple.
4 bedroom detached house for sale in High Bickington, Umberleigh, Devon, EX37 — £845,000 • 4 bed • 2 bath • 2236 ft²
6 bedroom detached house for sale in Berry Down, Combe Martin, EX34 — £849,995 • 6 bed • 3 bath • 5000 ft²
4 bedroom detached house for sale in North Buckland, Braunton, EX33 — £1,100,000 • 4 bed • 2 bath • 2570 ft²
8 bedroom detached house for sale in High Bickington, Umberleigh, EX37 — £1,199,500 • 8 bed • 5 bath • 3865 ft²
7 bedroom detached house for sale in Lower Park Road, Braunton, EX33 — £995,000 • 7 bed • 2 bath • 3710 ft²
Leisure facility for sale in Gammaton, Bideford, Devon, EX39 — £1,100,000 • 7 bed • 1 bath • 2026 ft²






































































































