Semi-rural plot with direct Ashdown Forest access and generous gardens.
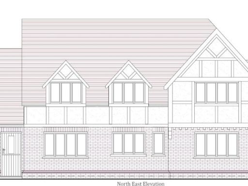
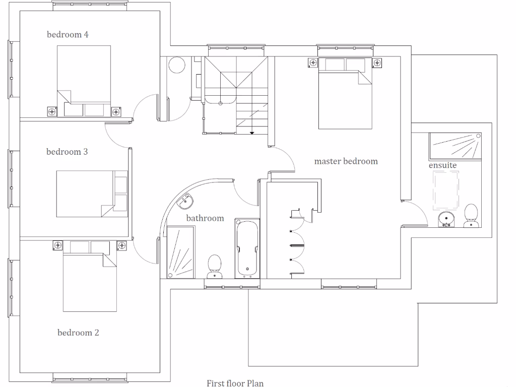
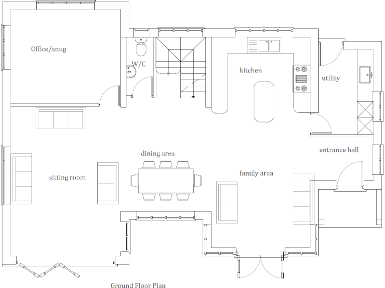
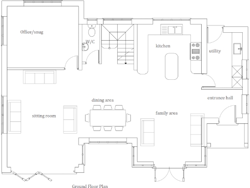
Full planning permission for 2,300 sqft four-bedroom detached house (WD/2024/0785/F)
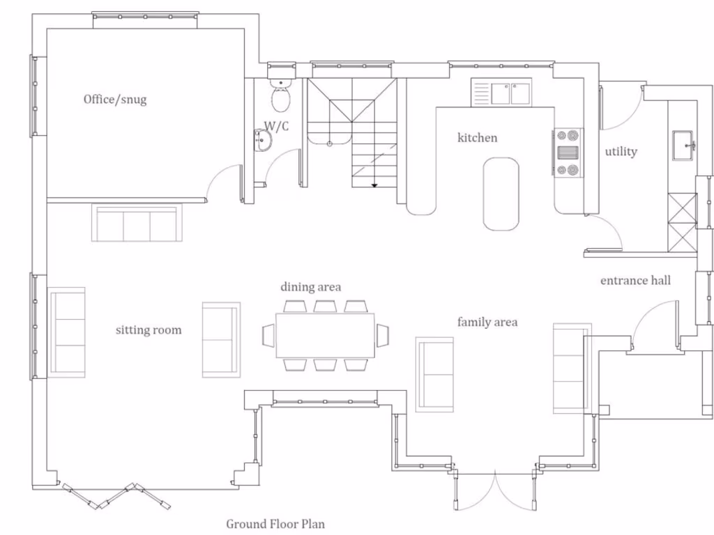
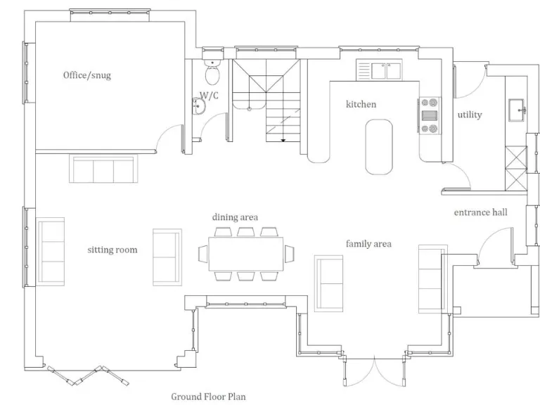
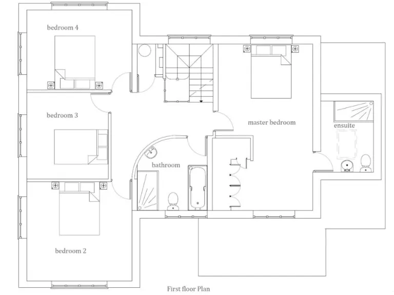
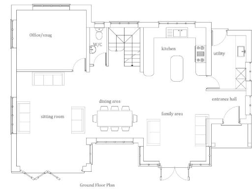
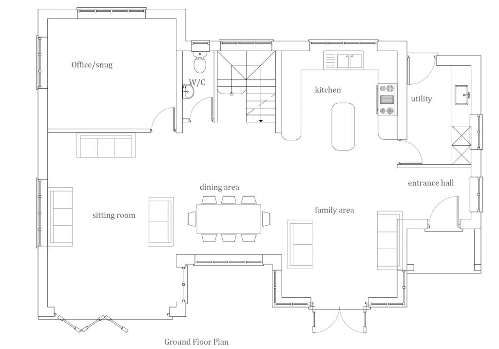
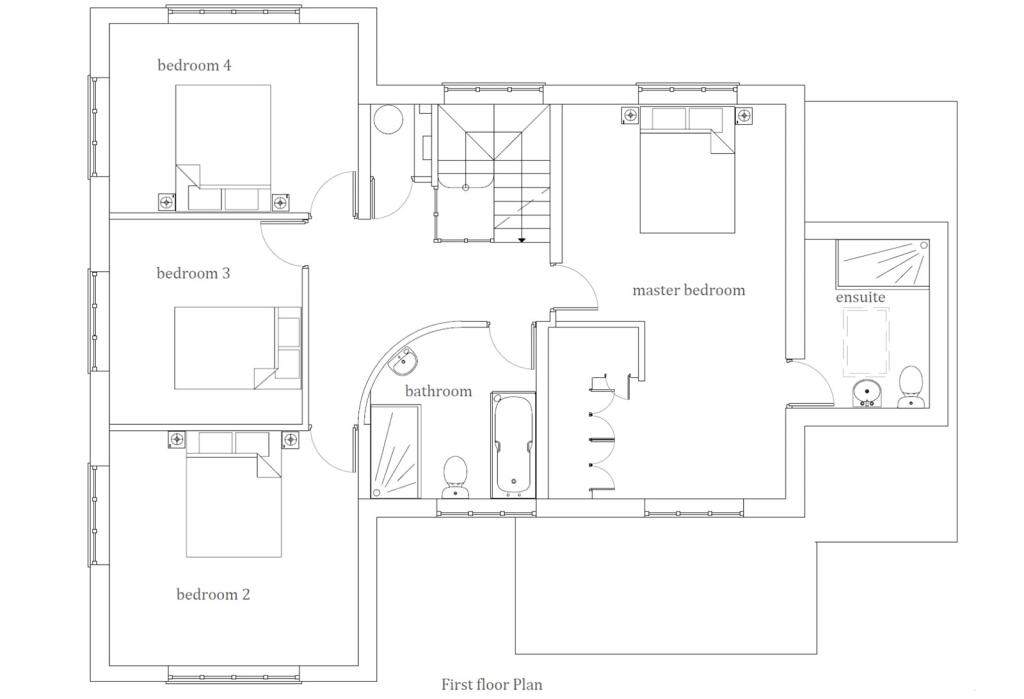
This rare semi-rural plot on the outskirts of Hartfield comes with full planning permission to create a spacious, modern family home of approximately 2,300 sq ft. Set on about 0.23 acres, the site benefits from a private approach drive, off-street parking for multiple cars and generous lawned gardens with hedge-lined boundaries. The plans show an open-plan kitchen/dining/sitting area, a ground-floor office/snug, utility and WC, and four double bedrooms upstairs including a principal suite with en suite.
The location is a strong selling point for families: direct access to Ashdown Forest and Pooh Bridge, village amenities in Hartfield, and good commuter links with Cowden, Tunbridge Wells and East Grinstead within easy driving distance. Local schools and recreational facilities are nearby, and the area is part of the High Weald Area of Outstanding Natural Beauty. Mains services (water, electricity, gas and drainage) are available to the site.
Buyers should be clear this is a plot for a self-build project. Planning permission has been granted (Wealden District Council WD/2024/0785/F) but the home is not constructed; you will be responsible for build procurement, budget, timescale and any necessary site works. Estimated costs, contractor selection and detailed specifications will be required before starting. Council tax banding is not yet set.
For families seeking long-term space and flexible accommodation in an affluent, low-crime village setting, this plot offers a turnkey planning position and a strong canvas to deliver a contemporary, substantial home close to countryside amenities and good transport connections.
Land for sale in London Road, Maresfield, TN22 — £440,000 • 6 bed • 4 bath • 3300 ft²
4 bedroom detached house for sale in The Meadows, Framfield Road, TN22 — £495,000 • 4 bed • 2 bath
Land for sale in London Road, Maresfield, TN22 — £410,000 • 6 bed • 4 bath • 3300 ft²
Land for sale in Butcherfield Lane, Hartfield, East Sussex, TN7 — £250,000 • 1 bed • 1 bath
Plot for sale in Bells Yew Green Road, Bells Yew Green, Tunbridge Wells, TN3 — £1,500,000 • 5 bed • 1 bath • 4424 ft²
Land for sale in Stockland Green Road, Tunbridge Wells, Kent, TN3 — £850,000 • 1 bed • 1 bath


































































