### Key Features:
- **Three Bedrooms**: Ideal for family living
- **Detached Home**: Offers privacy and space
- **Generous Corner Plot**: Provides ample outdoor space
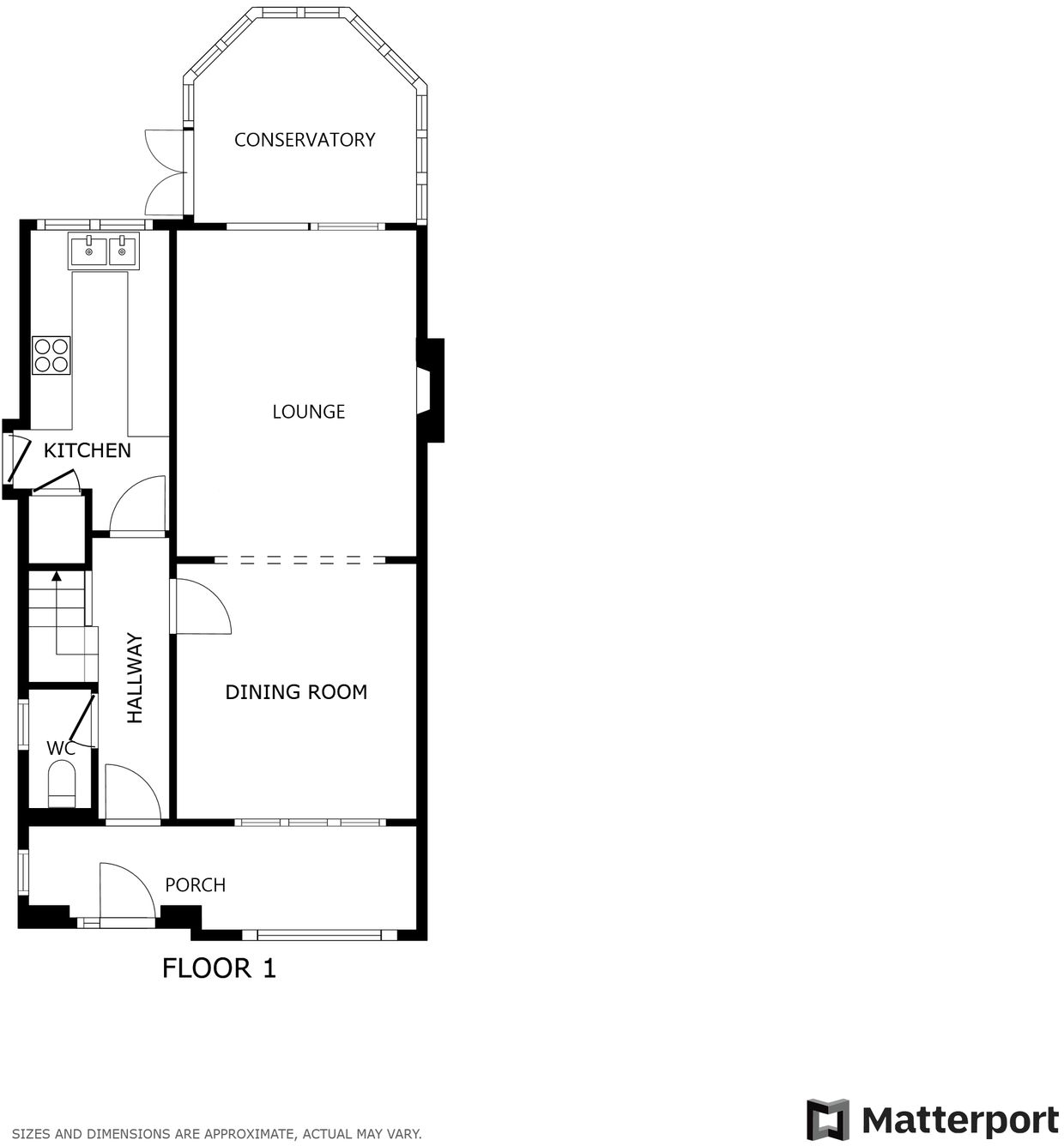
- **Conservatory**: Brings natural light and connects to the garden
- **Garage & Off-Road Parking**: Convenient and secure
- **Attractive Gardens**: Low-maintenance, perfect for relaxation
- **Located in Fleckney**: Convenient amenities and good schools nearby
- **EPC Rating**: C
### Property Overview:
Discover this charming detached family home nestled on a desirable corner plot in the heart of Fleckney. This property combines spacious interiors with the comfort of a family-friendly environment, featuring three well-proportioned bedrooms and a convenient shower room. The open-plan design of the lounge and dining area offers an inviting atmosphere, enhanced by a light-filled conservatory that seamlessly extends the living space to an attractive garden.
With practical amenities including gas central heating, majority double glazing, and off-road parking leading to a garage, this home is both functional and cozy. Ideal for first-time buyers or families, this property is surrounded by tree-lined streets and is within easy reach of local shops, schools, and recreational facilities, making it a perfect fit for everyday living. While the charming exterior may present some minor maintenance considerations typical of properties from the late 20th century, the eminently peaceful and affluent neighborhood alongside excellent transport links— with direct access to Leicester and the city offerings—is truly enticing. Don't miss the chance to view this delightful home; opportunities like this in such a sought-after area do not last long.
3 bedroom detached house for sale in School Street, Fleckney, Leicester, LE8 — £309,000 • 3 bed • 2 bath • 1163 ft²
3 bedroom detached house for sale in Crossleys, Fleckney, Leicester, LE8 — £295,000 • 3 bed • 1 bath • 1206 ft²
4 bedroom detached house for sale in Wentworth Road, Fleckney, Leicester, LE8 — £335,000 • 4 bed • 2 bath • 1281 ft²
3 bedroom detached house for sale in The Meer, Fleckney, Leicester, LE8 — £390,000 • 3 bed • 1 bath • 1055 ft²
3 bedroom detached house for sale in Furnival Close, Fleckney, LE8 — £319,950 • 3 bed • 2 bath • 1055 ft²
3 bedroom detached house for sale in School Street, Leicester, LE8 — £309,000 • 3 bed • 2 bath










































































































