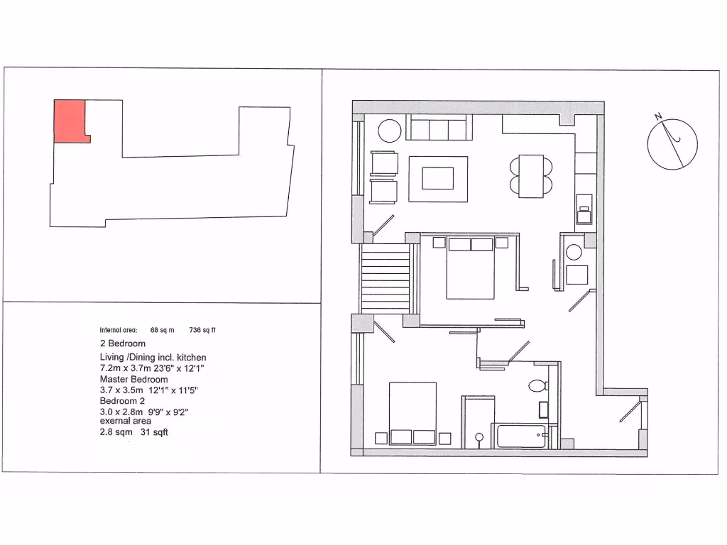
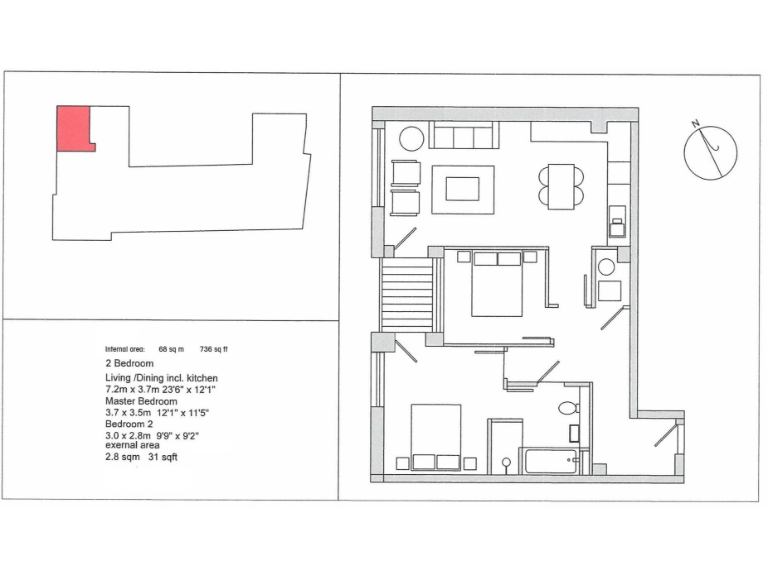
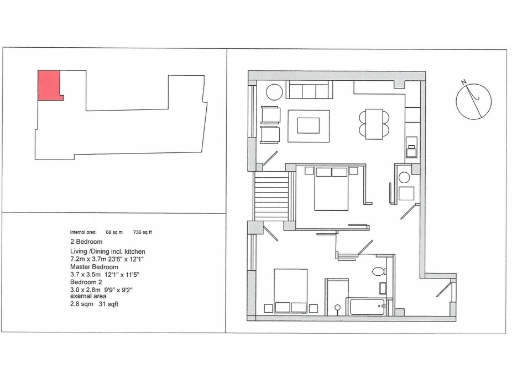
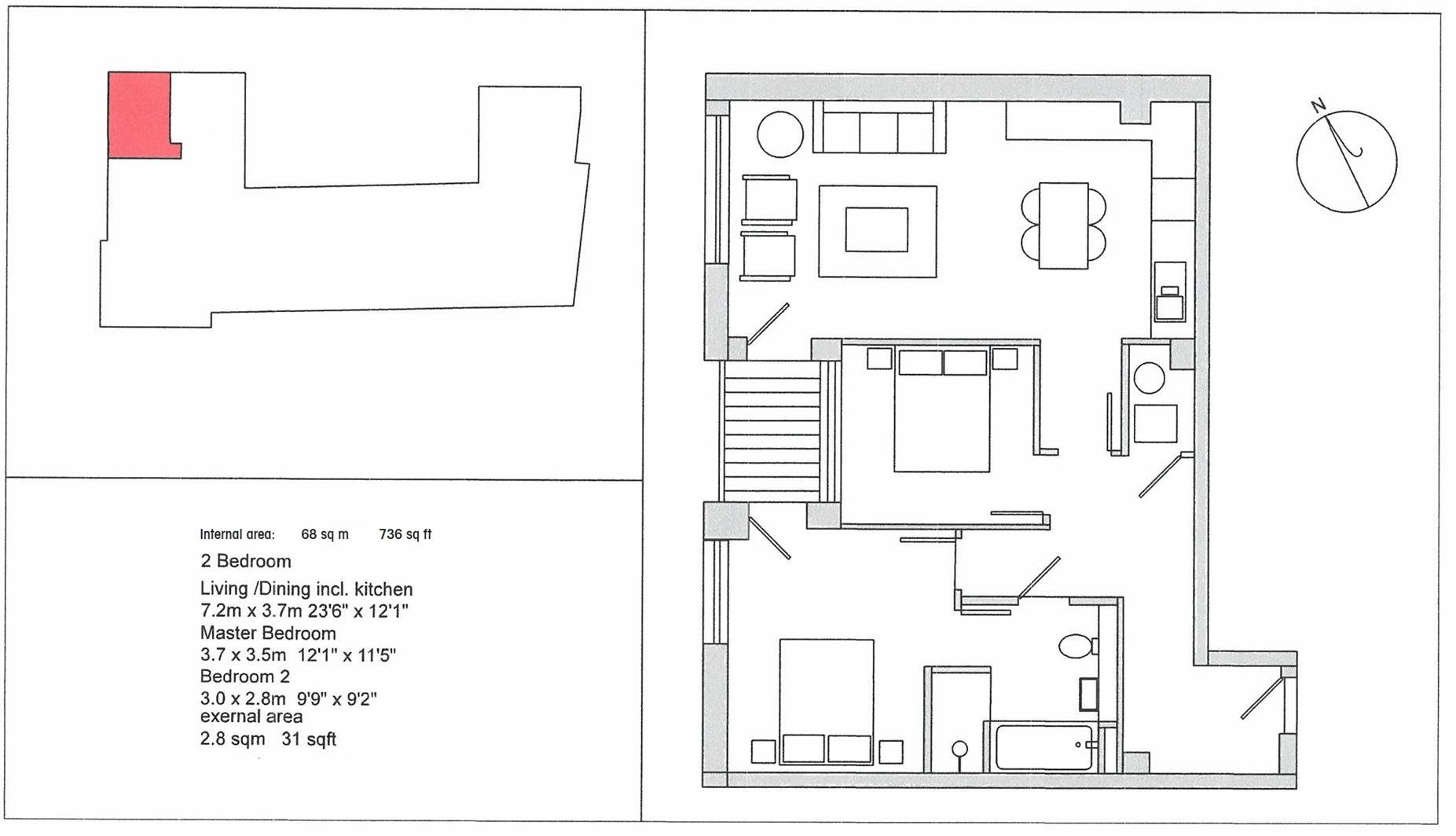
**Key Features:**
- 2 bedrooms, 1 modern bathroom
- Open-plan reception with integrated kitchen
- Private balcony with pleasant views
- 735 sq.ft (68 sq.m) on the 3rd floor, accessible by lift
- Bicycle storage available
- 4.21% gross rental yield, currently rented until May 2027
- Prime location near Vauxhall and Kennington stations, 0.5 miles to Vauxhall Station
Discover a modern, bright 2-bedroom apartment in the desirable Palm House development, situated on Sancroft Street. Spanning approximately 735 sq.ft, this well-presented flat features a spacious open-plan reception that seamlessly blends with the integrated kitchen, making it perfect for entertaining. Enjoy the private balcony, allowing you to relax outdoors and take in the urban landscape. With its contemporary bathroom and generous storage options, comfort is at the forefront of this property.
However, be aware that with only 3 years left on the lease, obtaining a mortgage may pose challenges for potential buyers. This feature could also affect long-term investment plans. The apartment is currently occupied, generating a rental income of £2,280 per month, ideal for investors looking for rental income potential. The vibrant location offers excellent transport links and proximity to London's iconic landmarks, making it an attractive choice for a modern lifestyle. Don't miss your chance to secure a prime London property—opportunities like this won’t last long!
1 bedroom apartment for sale in Palm House, Sancroft Street, Vauxhall, SE11 — £475,000 • 1 bed • 1 bath • 532 ft²
2 bedroom apartment for sale in Palm House, London, 70 Sancroft Street, SE11 — £725,000 • 2 bed • 2 bath • 722 ft²
2 bedroom flat for sale in Palm House,
70 Sancroft Street, SE11 — £650,000 • 2 bed • 2 bath • 741 ft²
2 bedroom flat for sale in Black Prince Road, Lambeth, London, SE1 — £620,000 • 2 bed • 2 bath • 573 ft²
2 bedroom flat for sale in Grosvenor Road, London, SW1V — £680,000 • 2 bed • 1 bath • 805 ft²
1 bedroom flat for sale in 9 Albert Embankment, Vauxhall, London, SE1 — £500,000 • 1 bed • 1 bath • 544 ft²


















































