Refurbished living near town and riverside park ideal for growing households.
Three bedrooms and family bathroom upstairs
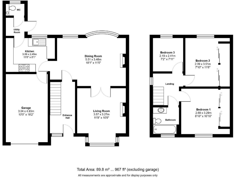
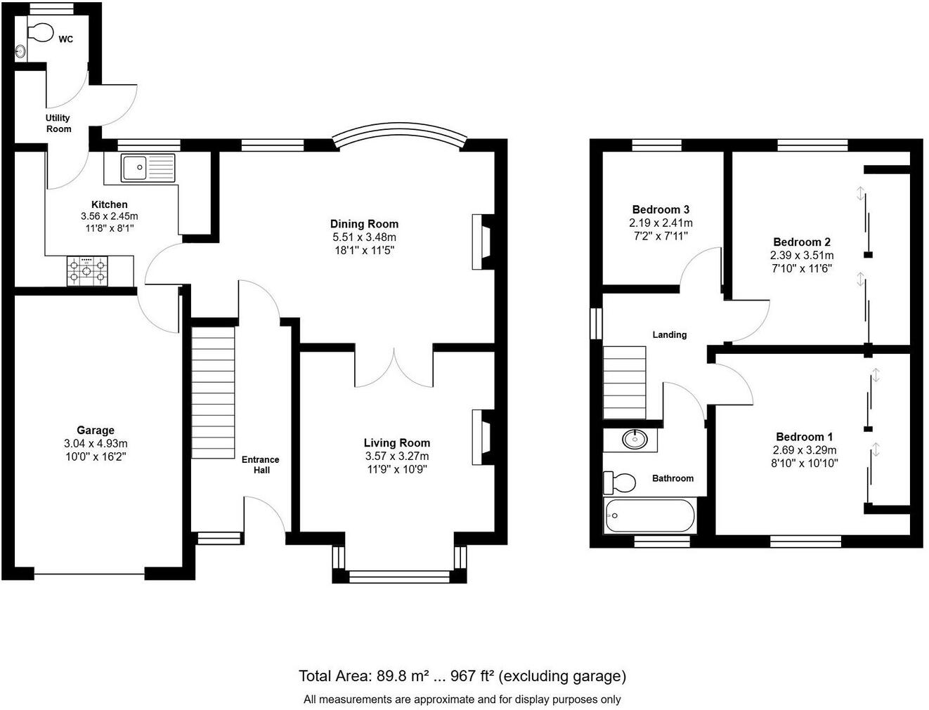
Recently refurbished, this mid-20th century semi presents a practical family layout within easy walking distance of St Neots town centre and the riverside park. The ground floor offers a welcoming reception hall, separate lounge and dining room, fitted kitchen and a convenient cloakroom — all newly refreshed with neutral finishes and hardwood flooring in the hall.
Upstairs are three bedrooms and a family bathroom, making the house well suited to growing families or anyone needing flexible bedrooms and home workspace. Outside, mature front and rear gardens, a garage and driveway parking add useful outdoor space and storage — rare for town-centre locations.
The location is a strong draw: good-rated primary schools nearby, local shops and bus links within walking distance, and the refurbished market square and riverside amenities about ten minutes on foot. The property is a straightforward move-in option after its recent renovation, while also offering scope for further improvement or reconfiguration if desired.
Buyers should note there is a single family bathroom only and tenure details are not provided. The house is an average overall size (about 967 sq ft) so those needing larger living spaces should check room dimensions. Flood risk and crime are low in this area.
3 bedroom semi-detached house for sale in Eagle Court, St. Neots, Cambridgeshire, PE19 1TS, PE19 — £400,000 • 3 bed • 2 bath • 1420 ft²
3 bedroom end of terrace house for sale in Alamein Court, Eaton Ford, St. Neots, PE19 — £375,000 • 3 bed • 1 bath • 1044 ft²
3 bedroom end of terrace house for sale in Whitehall Walk, St. Neots, PE19 — £280,000 • 3 bed • 1 bath • 947 ft²
3 bedroom semi-detached house for sale in Manor Grove, St. Neots, PE19 — £300,000 • 3 bed • 1 bath • 834 ft²
3 bedroom detached house for sale in Alsop Way, St. Neots, PE19 , PE19 — £385,000 • 3 bed • 2 bath • 1044 ft²
5 bedroom terraced house for sale in Skipper Way, St. Neots, PE19 — £450,000 • 5 bed • 3 bath • 2079 ft²


























































