Period semi with large rear garden and commuter links to Barnsley and the M1.
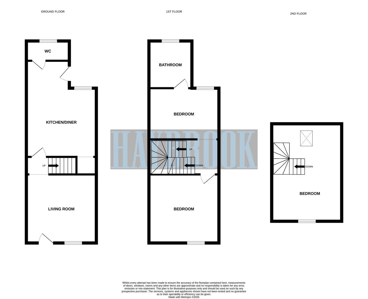
Three bedrooms with distinctive internal layout
A distinctive three-bedroom semi on a popular Birdwell road, this solid-brick home blends period character with practical living. The layout feels larger than the footprint suggests, with well-proportioned rooms and a sizeable rear garden that offers scope for outdoor living or landscaping. The property is freehold, move-in ready in many areas and conveniently close to Barnsley town centre, Cortonwood retail park and the M1 — useful for commuters.
Practical details suit first-time buyers or small families: good local schools are nearby, broadband speeds are fast and mobile signal is excellent. Heating is by mains gas boiler and radiators, and double glazing is present (installation date unknown). Council tax is very low, which helps running costs.
Buyers should note some material issues: the exterior and some interior images show outdated finishes and signs of damp; the property may benefit from targeted renovation or modernisation. The house is on a small plot and sits in an area with above-average crime, which some buyers will want to consider. Walls are original solid brick and likely uninsulated, so insulation or energy improvements could be planned.
Overall this home offers a characterful, affordable entry into the Birdwell market with a large garden and commuter-friendly location. It will suit buyers seeking a ready-to-live-in property who are willing to refresh cosmetic issues and carry out energy or damp-related improvements where needed.
3 bedroom semi-detached house for sale in Worsbrough Road, Birdwell, Barnsley, South Yorkshire, S70 5RE, S70 — £195,000 • 3 bed • 1 bath • 835 ft²
3 bedroom semi-detached house for sale in Ashwood Close, Worsbrough, Barnsley, S70 — £150,000 • 3 bed • 1 bath • 655 ft²
3 bedroom detached house for sale in The Walk, Birdwell, S70 — £290,000 • 3 bed • 1 bath • 1066 ft²
3 bedroom semi-detached house for sale in Hill Top Road, Birdwell, Barnsley, South Yorkshire, S70 — £170,000 • 3 bed • 1 bath • 800 ft²
3 bedroom semi-detached house for sale in Moor Ley, Birdwell, S70 — £260,000 • 3 bed • 1 bath • 1041 ft²
3 bedroom semi-detached house for sale in Redbrook Road, Barnsley, S75 — £230,000 • 3 bed • 1 bath • 797 ft²


















































































































