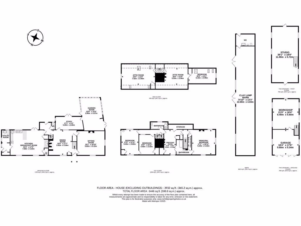
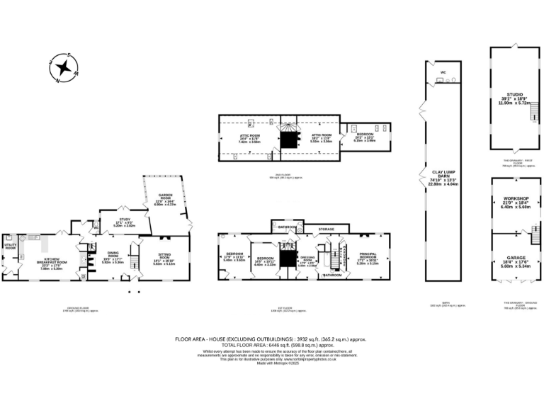
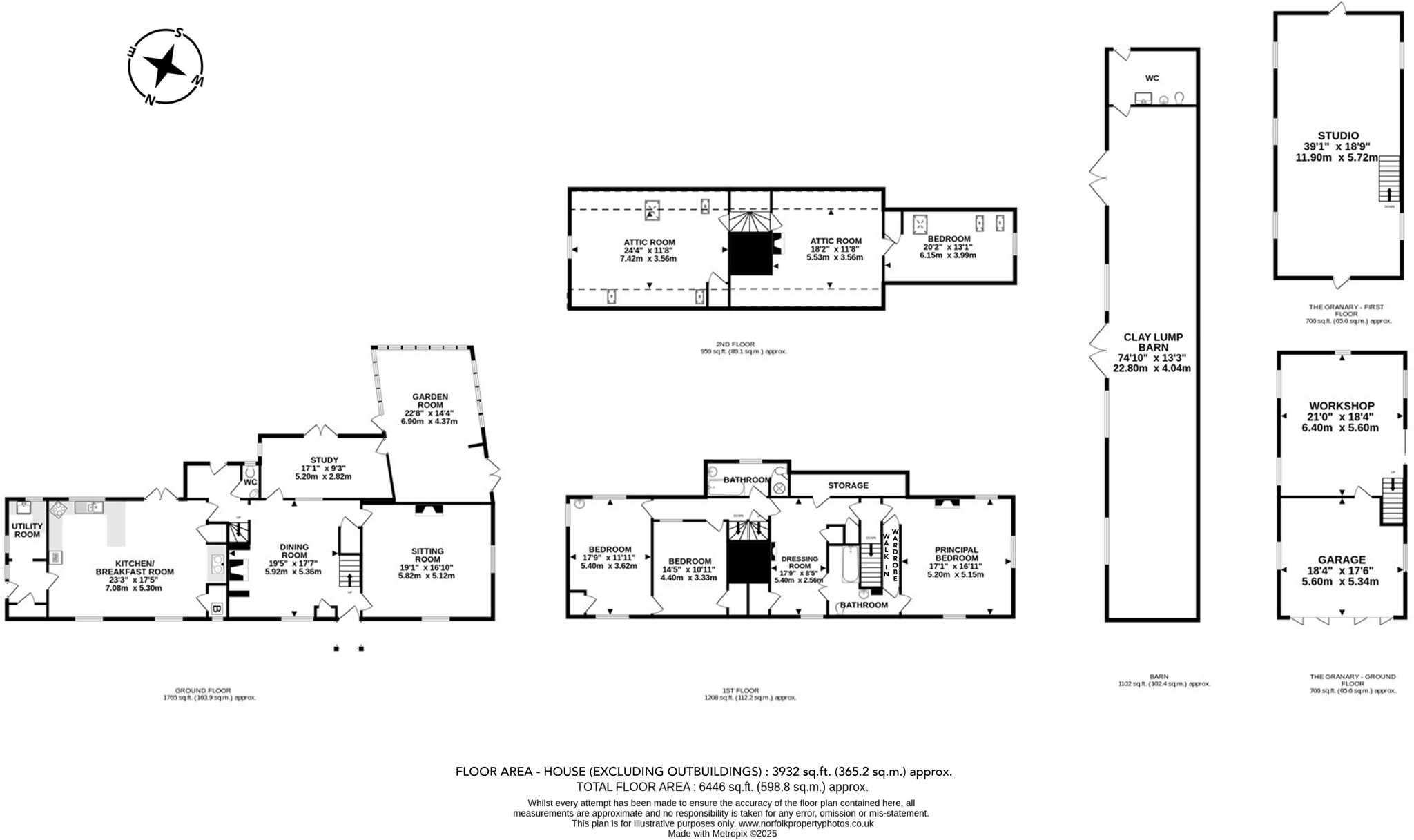
**Standout Features:**
- Grade II Listed farmhouse with charming period details
- Five spacious bedrooms, including a principal bedroom with walk-in wardrobe
- Large attic room and beautifully designed garden room
- Private tennis court with flood lighting
- Expansive 5-acre plot offering breathtaking countryside views
- Large outbuildings, including a barn ideal for conversion (subject to planning)
- Chain-free sale for quick and easy transaction
**Summary:**
Embrace country living in this enchanting Grade II Listed farmhouse nestled on a lush 5-acre plot in Rushmere, just 8 miles from Southwold. This meticulously maintained property boasts five generously sized bedrooms, a welcoming dressing room, and a large attic room perfect for creative pursuits. The heart of the home, a spacious kitchen/breakfast room, flows seamlessly into three inviting reception areas and a stunning garden room, perfect for basking in natural light.
Step outside to discover your own private tennis court framed by peaceful, unspoiled landscapes—ideal for both relaxation and recreation. With ample potential for renovation or development (subject to planning), including a sizeable barn and a garage/workshop featuring an attached studio, this property is a fantastic investment for those looking to create their dream rural retreat.
While the local area does have its quirks—average crime rates and relatively high council tax—this property promises unparalleled tranquility and charm. Perfect for families or those seeking an escape from city life, don’t miss out on the opportunity to own this slice of paradise. Properties like this don’t come around often, so seize the moment!
10 bedroom detached house for sale in Brundish, Woodbridge, IP13 — £1,600,000 • 10 bed • 7 bath • 5168 ft²
3 bedroom country house for sale in Low Road, Thurlton, NR14 — £600,000 • 3 bed • 2 bath
5 bedroom farm house for sale in Mill Road, Wissett, Halesworth, IP19 — £850,000 • 5 bed • 4 bath • 2792 ft²
6 bedroom farm house for sale in Station Road, Somerleyton, Lowestoft, NR32 — £795,000 • 6 bed • 3 bath • 3692 ft²
5 bedroom detached house for sale in Wissett, Near Halesworth, IP19 — £1,150,000 • 5 bed • 4 bath • 4147 ft²
4 bedroom detached house for sale in East Ruston, NR12 — £1,250,000 • 4 bed • 3 bath • 2287 ft²


















































































































































