Spacious three-bedroom village home with garage, west garden and scope to modernise.
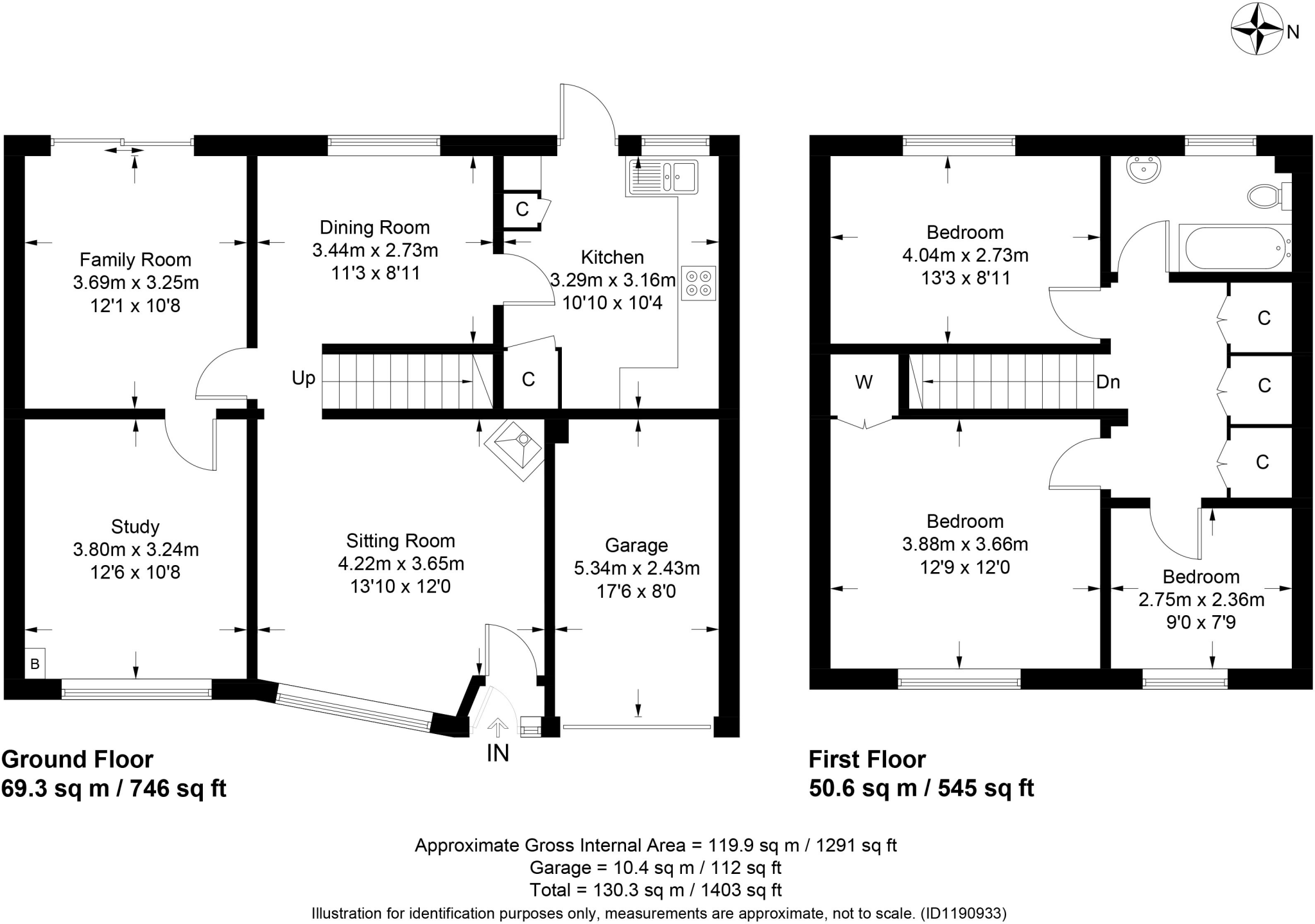
Three bedrooms with substantial ground-floor extension for extra reception space
West-facing rear garden with paved terrace, lawn and mature shrub borders
Private driveway for two cars and integral single garage with power
Oil-fired central heating (oil boiler) — higher running costs than mains gas
Single family bathroom; scope to add/enlarge bathrooms if required
Built 1960s construction; generally good order but may need modernising
EPC Band D (Current 57) with potential to improve efficiency
Ultrafast broadband and excellent mobile signal for remote working
Trevose is a well-proportioned three-bedroom semi-detached home, set on a quiet no-through street in Kineton within easy walking distance of village shops, schools and services. The property benefits from a substantial single-storey extension to the south, creating two extra reception rooms in addition to a sitting room and dining area — useful for family living, home working or a ground-floor bedroom conversion.
Practical features include an integral single garage, private driveway for two cars, a west-facing rear garden with patio and lawn, UPVC double glazing and an oil-fired combination boiler. The plot is a comfortable size for children and gardening, and the house offers good internal storage with built-in cupboards and loft access. Ultrafast broadband and excellent mobile signal suit remote working and streaming for modern family life.
Buyers should note some material points: the property was built in the 1960s and has an EPC rating of D (current 57), with oil heating which can be more costly than mains gas. There is a single family bathroom upstairs and the house may benefit from cosmetic updating in places to suit a contemporary finish. These factors are reflected in the opportunity for improvement and future energy-efficiency upgrades.
Overall this is a solid, characterful family home in an affluent, low-crime village setting, offering immediate liveability plus clear scope to personalise and improve. Its location — roughly 11 miles from Stratford-upon-Avon and close to the M40 — will appeal to families and professionals seeking village life with good regional commuting links.
3 bedroom semi-detached house for sale in Kineton, CV35 — £375,000 • 3 bed • 1 bath • 1223 ft²
4 bedroom semi-detached house for sale in Kineton, CV35 — £475,000 • 4 bed • 1 bath • 1537 ft²
5 bedroom detached house for sale in Kineton, CV35 — £1,250,000 • 5 bed • 4 bath • 4211 ft²
2 bedroom semi-detached house for sale in Kineton, CV35 — £275,000 • 2 bed • 1 bath • 871 ft²
3 bedroom semi-detached house for sale in Park Piece, Kineton, Warwick, Warwickshire, CV35 — £325,000 • 3 bed • 1 bath • 1080 ft²
4 bedroom semi-detached house for sale in Park View Court, Kineton, Warwick, CV35 — £390,000 • 4 bed • 2 bath • 1206 ft²






















































