Spacious 23rd-floor two-bed with winter garden, parking and long lease — ideal for investors or city living..
23rd-floor apartment with full-length windows and wide city views
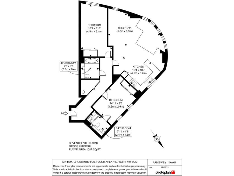
Spacious 1,007 sq ft layout; two bedrooms, two bathrooms
Winter garden adds sheltered outdoor space and light
Dedicated secure parking space included
24/7 concierge service and strong digital connectivity
Long lease — approximately 151 years remaining
Currently tenanted at £2,500 pcm until 03.08.2025 (income for investors)
Service charge £6,600 pa (above-average running costs)
Located on the 23rd floor of Gateway Tower, this spacious 2-bedroom, 2-bath apartment offers expansive views, full-length windows and a sheltered winter garden. At about 1,007 sq ft, the apartment feels larger than typical two-beds and benefits from integrated kitchen appliances, wood flooring and fitted bedroom storage — good liveability for owners or tenants.
Practical positives include a dedicated secure parking space, 24/7 concierge and strong digital connectivity (excellent mobile signal, fast broadband). The long lease (circa 151 years remaining) provides long-term security. The property is currently tenanted at £2,500 pcm until 03.08.2025, which will suit investors seeking immediate rental income.
Notable costs and local context are set out plainly: the service charge is £6,600 per year (above average) and council tax banding is not provided. The building sits in an inner-city, cosmopolitan area with good transport links (Royal Victoria DLR nearby), low crime and several highly rated local schools, but the wider neighbourhood scores as more deprived — buyers should consider resale and rental dynamics carefully.
This apartment suits a buyer wanting a turnkey city home or an investor after steady income and long lease length. The property’s high-floor position and winter garden are standout lifestyle features, while service charges and the existing tenancy are material considerations for budgeting and timing of occupation.
2 bedroom apartment for sale in Gateway Tower, 28 Western Gateway, London, E16 — £475,000 • 2 bed • 2 bath
2 bedroom flat for sale in Western Gateway, Royal Docks, London, E16 — £590,000 • 2 bed • 2 bath • 1007 ft²
2 bedroom flat for sale in Western Gateway London E16 — £700,000 • 2 bed • 2 bath • 950 ft²
2 bedroom apartment for sale in The Hoola, Tidal Basin Road, Royal Victoria Dock, E16 , E16 — £599,995 • 2 bed • 2 bath • 916 ft²
2 bedroom apartment for sale in Tidal Basin Road, London, E16 — £570,000 • 2 bed • 2 bath • 911 ft²
2 bedroom flat for sale in Western Gateway, Docklands, London, E16 — £560,000 • 2 bed • 2 bath • 839 ft²


































