Leafy garden and streamside studio ideal for family life and working from home.
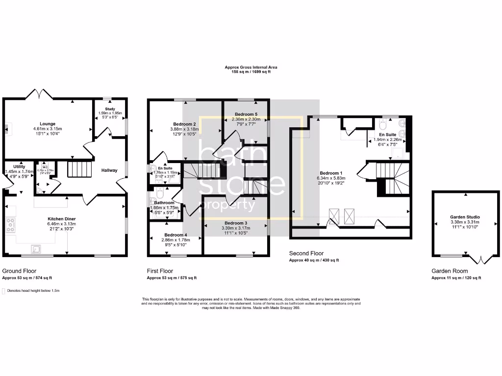
Chain-free five-bedroom detached house with impressive main bedroom suite
Tucked away at the end of a no-through road, this detached five-bedroom home offers flexible family living across three floors. The property was built in 2004 and had a new roof structure added in 2022, creating an impressive main bedroom suite with en-suite, dressing area and eaves storage. Natural light fills the galleried hallway and principal living rooms through large windows and glazed doors.
Externally the plot feels private and leafy, with the garden wrapping around a flowing stream and mature trees to the rear. A raised timber deck, level lawn, and a powered garden studio with internet and alarm provide useful outdoor living and home-working options. A wide driveway and double gates offer generous off-street parking.
Practical details suit family life: a farmhouse-style kitchen with utility, ground-floor office (partition wall could be removed to enlarge the lounge), three bathrooms, and approximately 1,579 sq ft of accommodation across about 14 rooms. The location is well connected — the local cycle track links to Bath, Frome and Midsomer Norton and town amenities and schools are nearby.
Important considerations: the property sits in an area recorded with higher crime levels, so prospective buyers should investigate local security and insurance implications. The home is multi-storey, which may be less convenient for some, and the plot size is medium rather than expansive. Council tax is moderate and the tenure is freehold with no onward chain.
4 bedroom detached house for sale in Nelson Ward Drive, Radstock, BA3 — £416,500 • 4 bed • 2 bath • 1243 ft²
5 bedroom detached house for sale in Littlebrook House, Meadow View, Radstock, BA3 — £549,950 • 5 bed • 3 bath • 1680 ft²
4 bedroom detached house for sale in Bath Old Road, Radstock, Somerset, BA3 — £825,000 • 4 bed • 3 bath • 2328 ft²
3 bedroom semi-detached house for sale in Foxhills Close, Radstock, BA3 — £300,000 • 3 bed • 1 bath • 717 ft²
4 bedroom detached house for sale in Blackberry Way, Midsomer Norton, BA3 — £439,950 • 4 bed • 2 bath • 1686 ft²
5 bedroom detached house for sale in Wells Road, Westfield, Radstock, Somerset, BA3 — £600,000 • 5 bed • 3 bath • 2017 ft²






































































































































