**Key Features:**
- Newly renovated semi-detached cottage
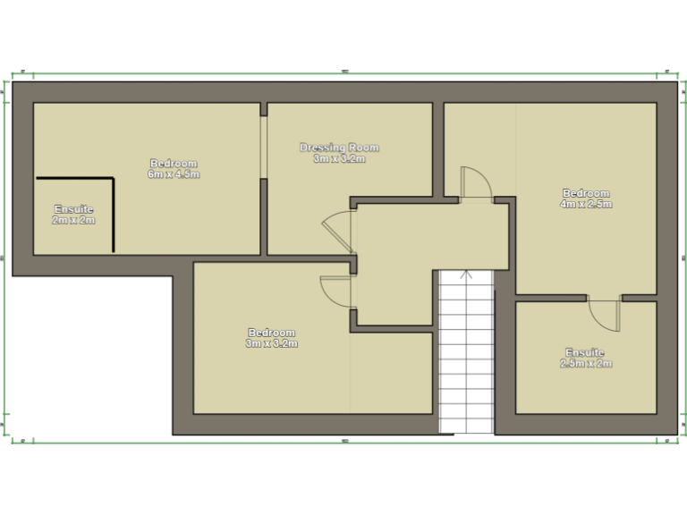
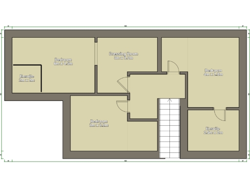
- 3 double bedrooms, each with en-suite
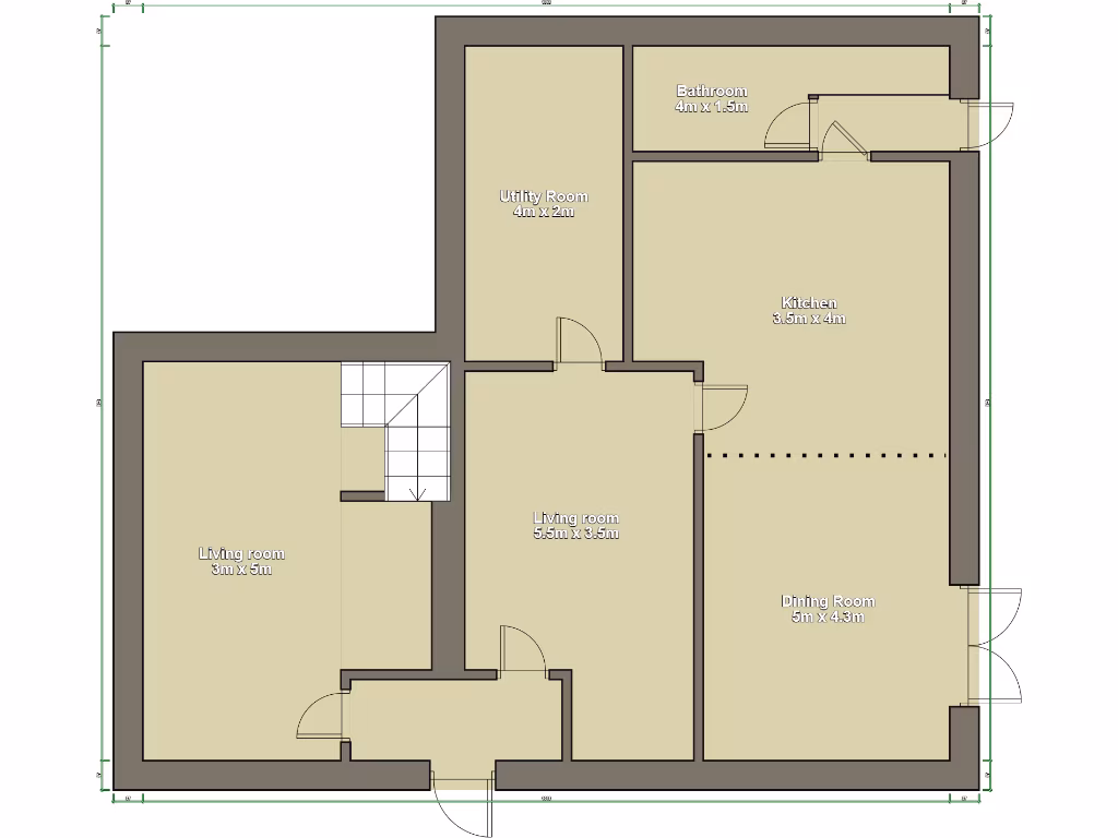
- 3 spacious reception rooms
- Stylish kitchen-diner with French doors
- Private, low-maintenance gardens
- Freehold tenure
- Located in Aberaman, CF44 6YP
- Total size: 1,427 sq ft
Nestled in the tranquil area of Aberaman, this beautifully renovated 3-bedroom semi-detached cottage invites you to experience modern living with a touch of charm. The home features spacious reception areas, including a warm living room with a log burner and a stylish kitchen-diner opening to the serene side garden. Each generously sized double bedroom boasts its own en-suite, perfect for family comfort or guest accommodation.
Outside, the property impresses with its large, sun-soaked lawn and an easy-care paved garden, creating a perfect retreat for relaxation or entertainment. This home has been maintained immaculately, promising a move-in-ready opportunity for families or investors eager to tap into the local rental market. While the area experiences higher crime rates and socio-economic challenges, this exclusive property offers a rare blend of comfort with privacy. Don’t miss your chance to own this striking home in a desirable location—properties like this are not on the market for long!











































































































































