Light-filled balcony, secure parking and on-site support for comfortable retirement living.
- West-facing balcony with riverside views
- Fully furnished, ready to move into
- Private off-street parking with EV charging
- Lodge Manager on site five days a week
- Guest suite available for visiting family
- Leasehold (995 years); service charges apply
- Medium flood risk and higher local crime levels
- Compact 482 sq ft — suited to downsizing buyers
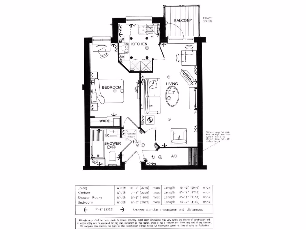
This second-floor, fully furnished apartment sits within a purpose-built over-60s development on the River Tone, offering an easy, low-effort home for downsizers. The west-facing balcony brings late-afternoon sun and views across Goodland Gardens and Castle Green, while integrated security and a lodge manager provide added peace of mind.
The layout is compact at 482 sq ft with one bedroom and one bathroom, designed for simple living and easy maintenance. Owners benefit from private off-street parking with EV charging points, a guest suite for visitors, and regular social events in the Owners’ Lounge.
Practical points to note: this is a leasehold retirement property (995 years remaining) with service charges payable. The local area records higher-than-average crime and there is a medium flood risk—both important considerations for buyers. The apartment is new build/modern in style but small in scale, so it suits someone seeking convenience and community rather than extensive living space.
1 bedroom apartment for sale in Apartment 4, Riverain Lodge, Taunton, Somerset, TA1 — £275,950 • 1 bed • 1 bath • 482 ft²
1 bedroom apartment for sale in Riverain Lodge, Tangier Way, Taunton, Somerset, TA1 — £276,950 • 1 bed • 1 bath
1 bedroom retirement property for sale in Riverain Lodge, Taunton, TA1 — £288,950 • 1 bed • 1 bath • 442 ft²
1 bedroom ground floor flat for sale in Riverain Lodge, Tangier Way, Taunton, Somerset, TA1 — £275,950 • 1 bed • 1 bath
1 bedroom retirement property for sale in Dellers Court, Dellers Wharf, TA1 — £89,950 • 1 bed • 1 bath • 646 ft²
1 bedroom retirement property for sale in Avongrove Court, The Avenue, TA1 — £90,000 • 1 bed • 1 bath • 525 ft²


































































