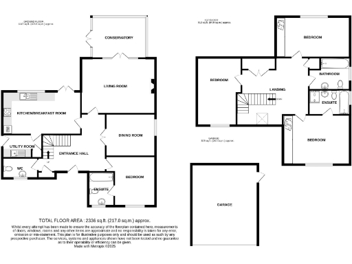
**Standout Features:**
- Four spacious bedrooms, including a luxurious master suite
- Ground floor option for a double bedroom with ensuite
- Expansive 14'2 x 12'10 entrance hall and multiple living spaces
- Beautiful 14'6 x 11'8 double glazed conservatory
- Designer kitchen/breakfast area with granite worktops and integrated appliances
- Detached double garage plus additional off-road parking
- Mature, landscaped gardens with distinct outdoor spaces
**Notable Concerns:**
- Average proximity to schools with mixed Ofsted ratings
- Setting within a suburban residential area may not appeal to those seeking countryside vibes
Nestled in an exclusive development near Willingdon Village, this striking four-bedroom detached residence offers a unique blend of comfort and sophistication. Spanning 2,336 square feet, the property features a grand entrance hall leading to inviting living areas, including a light-filled sitting room and a charming dining room, perfect for family gatherings. The heart of the home is undoubtedly the impressive kitchen/breakfast room, equipped with modern granite finishes and a conservatory that seamlessly connects indoor and outdoor living.
With robust gas-fired central heating and double glazing, this property promises a warm and inviting atmosphere year-round. The expansive gardens offer a serene retreat for relaxation, while the dual aspects of select rooms provide stunning views over Westlords Park. A detached double garage adds a significant bonus alongside additional parking, enhancing convenience for families or guests.
Although the property enjoys a wealth of amenities nearby, local schools have mixed Ofsted ratings, which may be a consideration for families. However, with its stylish design and ample space, this home is perfect for families, professionals, or as a lucrative investment opportunity. **Don’t miss your chance**—properties of this caliber are quickly snapped up in this affluent community. Make this elegant sanctuary your own!
5 bedroom detached house for sale in Upper Carlisle Road, Eastbourne, BN20 — £1,695,000 • 5 bed • 4 bath • 3483 ft²
4 bedroom detached house for sale in Kings Drive, Eastbourne, East Sussex, BN21 — £650,000 • 4 bed • 2 bath • 1945 ft²
4 bedroom chalet for sale in Michel Dene Road, East Dean , BN20 — £650,000 • 4 bed • 2 bath • 1539 ft²
4 bedroom semi-detached house for sale in Standard Hill, Ninfield, East Sussex, TN33 — £575,000 • 4 bed • 2 bath • 1507 ft²
4 bedroom detached house for sale in Brightling Road, Robertsbridge, TN32 — £835,000 • 4 bed • 3 bath • 2000 ft²
5 bedroom detached house for sale in Southdown Road, Eastbourne, East Sussex, BN20 — £1,400,000 • 5 bed • 2 bath • 3003 ft²






























































































































