Renovated three-bed home on a large plot with garage and extension potential..
Three bedrooms in a renovated chalet-style semi
Extremely large rear garden with extension potential (STPP)
Previously approved 9m rear extension could be reinstated
Detached garage plus paved forecourt parking for multiple cars
Modern fitted kitchen and neutral interiors throughout
Solid brick walls assumed without insulation; consider upgrades
Double glazing present but install date unknown
Council tax band E — above average
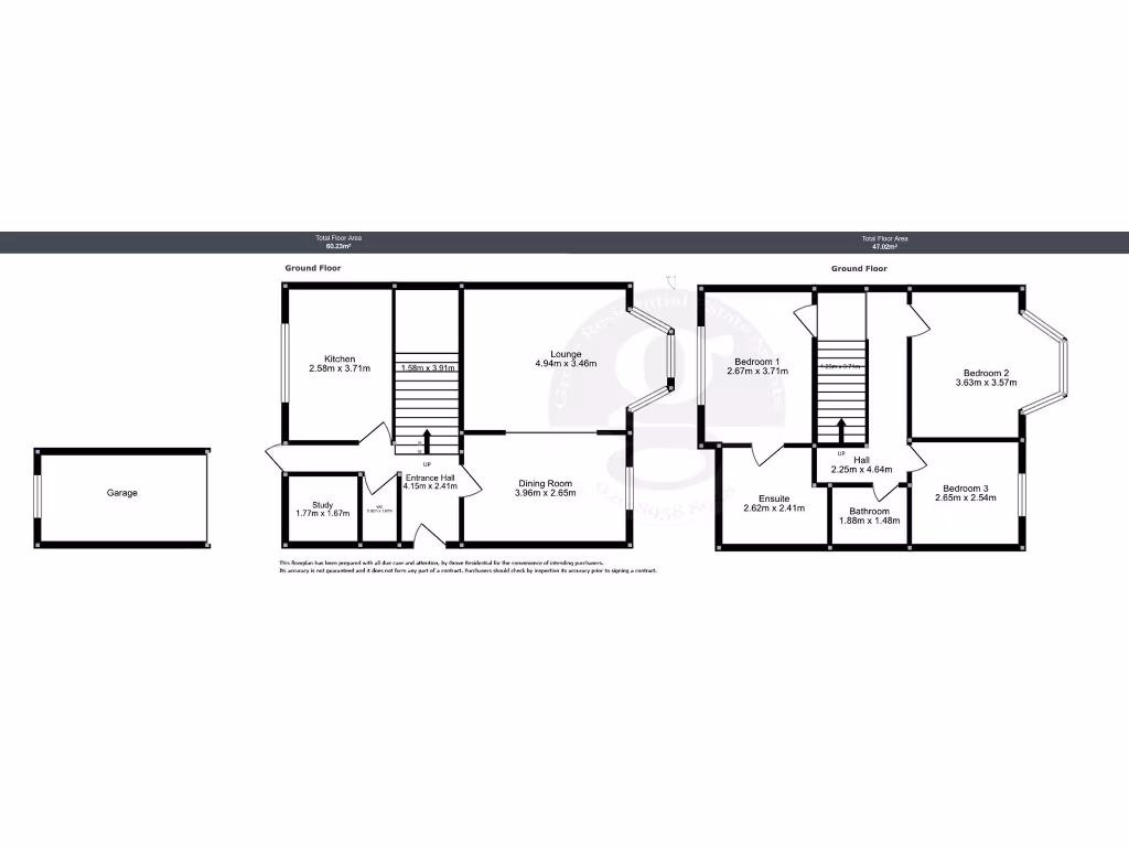
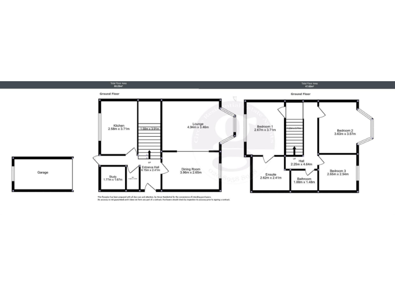
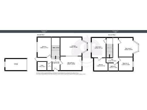
This well-presented three-bedroom semi-detached chalet-style home sits on a large plot with an exceptionally long rear garden and detached garage. Recent renovation work has refreshed the interiors, with a modern fitted kitchen, comfortable living spaces and neutral finishes ready for immediate occupation.
The plot is the standout feature: a substantial rear garden with mature trees and secure boundaries offers scope for landscaping, outdoor living and extension (subject to planning). Previously granted planning permission for a 9m single-storey extension could be reinstated, making this an attractive option for a growing family seeking extra living space.
Practical details are favourable: off-street parking on a paved forecourt, garage, mains gas boiler and fast broadband. The property is freehold and located in a very affluent, low-crime area with good local schools and public transport links.
Buyers should note a few material points: the house is a post‑war solid brick build with assumed no wall insulation, and the double glazing install date is unknown. Council tax is above average (band E). Any extension will require fresh planning consent if previous approval is not reinstated. These factors are important for those prioritising energy efficiency or running costs.
3 bedroom semi-detached house for sale in St. Andrews Drive, Stanmore, Middlesex, HA7 — £700,000 • 3 bed • 1 bath • 990 ft²
3 bedroom semi-detached house for sale in Blundell Road, Edgware, HA8 — £575,000 • 3 bed • 1 bath • 906 ft²
3 bedroom semi-detached house for sale in Redhill Drive, Edgware, HA8 — £625,000 • 3 bed • 1 bath • 1113 ft²
3 bedroom semi-detached house for sale in Draycott Avenue, Kenton, Harrow, HA3 — £650,000 • 3 bed • 2 bath • 1667 ft²
3 bedroom semi-detached house for sale in Warrens Shawe Lane, Edgware, HA8 — £450,000 • 3 bed • 2 bath • 964 ft²
4 bedroom semi-detached house for sale in Moorhouse Road, Harrow, Middlesex, HA3 — £600,000 • 4 bed • 2 bath • 998 ft²






























































