Large, chain-free bungalow with private garden and garage — scope to personalise.
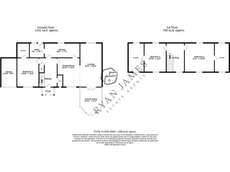
Extremely large internal area — approx. 1,999 sqft
Firtree Bungalow is an unusually spacious three-bedroom dormer bungalow offering almost 2,000 sqft of flexible accommodation arranged over two levels. Set back on a private lane with its own lawned front garden, long driveway and integral single garage, the house suits buyers seeking roomy, low-maintenance grounds and true single-level living for at least part of the home. The property is offered chain free and has recently undergone cosmetic refurbishment, so it is ready to occupy while still offering scope to personalise finishes.
The ground floor includes a generous lounge-dining room centred on a feature wood-burning stove, a conservatory/ orangery, kitchen with adjoining utility room and a ground-floor double bedroom with shower facilities — a useful arrangement for downsizers or multi-generational living. Upstairs there are two substantial double bedrooms, each with four-piece en suite bathrooms, making the first floor particularly well appointed for guests or family.
Outside is a fully enclosed, low-maintenance flagged rear garden with established borders and a timber storage shed. Practical details: mains gas central heating via boiler and radiators, double glazing (install date not specified), constructed in the 1983–1990 era, and freehold tenure.
Important considerations: the property sits in an area classified as very deprived with a higher local crime level, and council tax is above average. Broadband speeds are average. These location and cost factors should be weighed alongside the property’s size, private grounds and chain-free sale when deciding whether to view.
3 bedroom detached bungalow for sale in Hailwood, Fir Tree, DL15 — £325,000 • 3 bed • 1 bath • 1357 ft²
3 bedroom detached bungalow for sale in Jenison Close, School Aycliffe, DL5 — £350,000 • 3 bed • 3 bath • 1689 ft²
4 bedroom detached bungalow for sale in Fir Tree, Crook, DL15 — £360,000 • 4 bed • 1 bath • 1326 ft²
3 bedroom detached bungalow for sale in Dean Road, Ferryhill, DL17 — £260,000 • 3 bed • 3 bath • 915 ft²
3 bedroom detached bungalow for sale in Thursby Close, School Aycliffe, DL5 — £330,000 • 3 bed • 2 bath • 1530 ft²
3 bedroom detached bungalow for sale in Haweswater Grove, West Auckland, DL14 — £225,000 • 3 bed • 2 bath • 882 ft²






































































































































