Near Stratford International and Pudding Mill DLR, ready from Winter 2025.
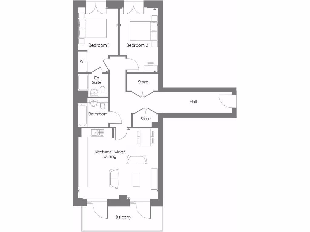
Approximately 930 sq ft open-plan living space with private balcony
This two-bedroom new-build apartment at Legacy Wharf offers nearly 930 sq ft of open-plan living with private balcony space and two Juliet balconies. Finished with fitted kitchen units and integrated appliances, the layout includes an en-suite to the principal bedroom, generous storage and a modern shared bathroom — ready for immediate rental or owner occupation post-completion (from Winter 2025).
The development provides on-site amenities that appeal to renters and professionals: a gym, concierge, landscaped podium gardens and a work-from-home hub. Transport links are a clear strength — one stop to Stratford International and a short walk to Pudding Mill DLR — making commuting and short-term lets straightforward.
Financially this is set up for investment: a 999-year lease, 10-year NHBC Buildmark cover and a peppercorn ground rent. Note the annual service charge is estimated at £3,369.98 and council tax banding is TBC; buyers should factor these running costs into affordability and rental yield calculations.
Be candid about the neighbourhood context: the area is classed as inner-city, multicultural and described as deprived with a higher crime level than average. These factors can affect long-term capital growth and tenant profiles, so purchasers should weigh yield potential against management considerations and research local demand carefully.
2 bedroom apartment for sale in Cooks Road,
Stratford,
London,
E15 2PN, E15 — £560,000 • 2 bed • 1 bath • 930 ft²
2 bedroom apartment for sale in Cooks Road,
Stratford,
London,
E15 2PN, E15 — £540,000 • 2 bed • 1 bath • 795 ft²
2 bedroom apartment for sale in Cooks Road,
Stratford,
London,
E15 2PN, E15 — £558,500 • 2 bed • 1 bath • 847 ft²
1 bedroom apartment for sale in Cooks Road,
Stratford,
London,
E15 2PN, E15 — £448,000 • 1 bed • 1 bath • 550 ft²
2 bedroom apartment for sale in Cooks Road,
Stratford,
London,
E15 2PN, E15 — £548,500 • 2 bed • 1 bath • 795 ft²
1 bedroom apartment for sale in Cooks Road,
Stratford,
London,
E15 2PN, E15 — £430,000 • 1 bed • 1 bath • 564 ft²


















































































































