Characterful, chain-free Victorian terrace with ensuite and rear lane access—ideal for first-time buyers..
Chain-free three bedroom mid-terrace with ensuite to main bedroom
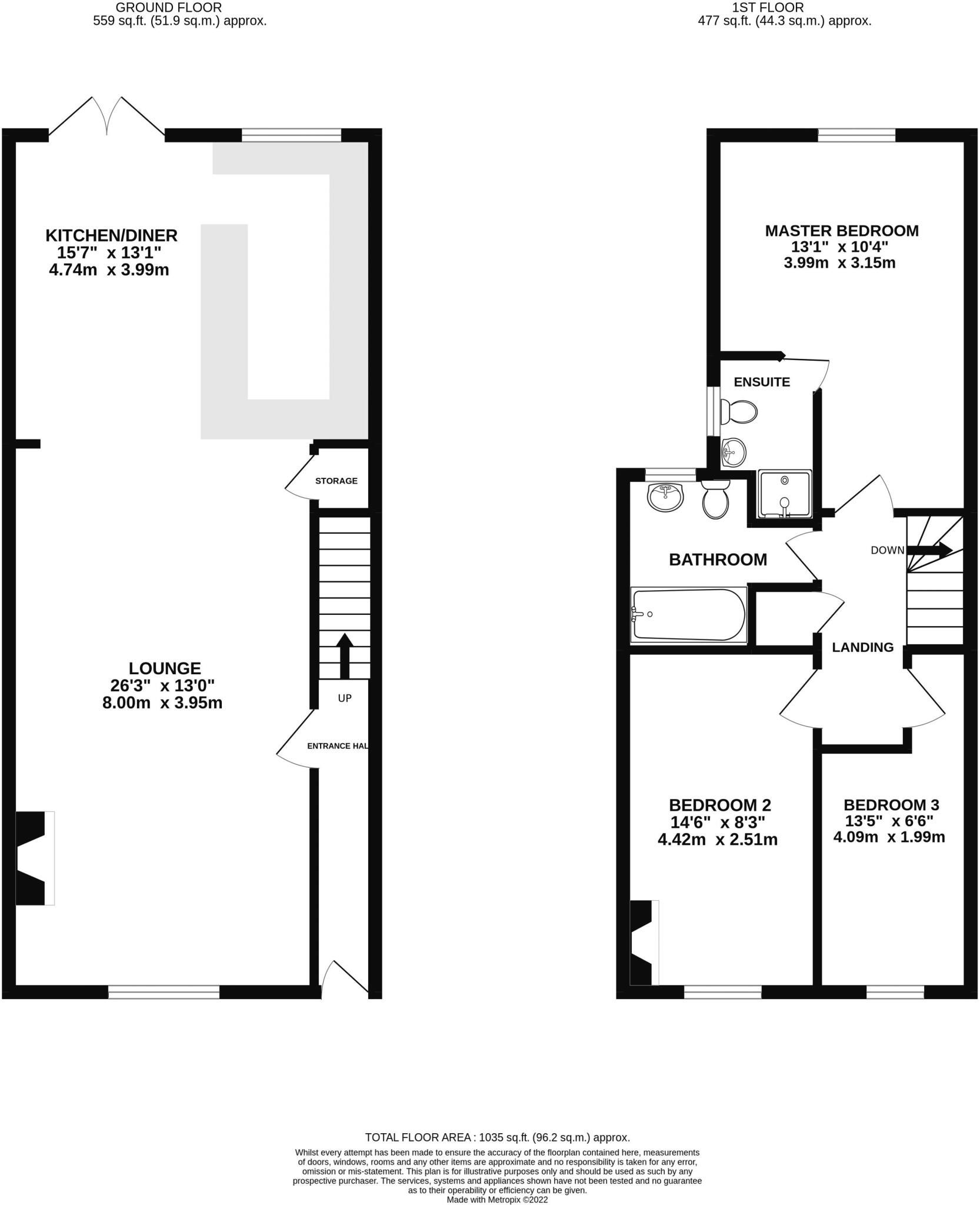
Open-plan lounge to kitchen/diner with French doors to garden
West-facing rear garden with rear lane access and off-street parking opportunity
Freehold tenure; approximately 1,035 sq ft (average-sized accommodation)
Victorian character features with modern flooring and kitchen fittings
Area classed as very deprived; above-average local crime levels
Small plot and average room sizes may limit outdoor and living space
Fast broadband; council tax described as affordable
This three-bedroom mid-terrace on Bettws Road offers a practical, move-in ready layout ideal for a first-time buyer. The ground floor combines a generous lounge with an open-archway into a fitted kitchen/diner, plus French doors leading to a west-facing garden and rear lane access. The master bedroom includes an ensuite, and total floor area is a comfortable 1,035 sq ft.
The property blends period character — Victorian brickwork and a featured fireplace — with contemporary touches such as laminate and tiled floors, modern kitchen fittings and fast broadband. It is freehold, chain-free and has off-street parking opportunities, making a straightforward purchase and occupation possible.
Buyers should note the local context: the area is classed as very deprived with above-average crime levels. The plot is small and rooms are average in size, so outdoor space and internal proportions may be limited for those needing larger gardens or extensive entertaining areas. Council tax is described as affordable.
Overall this home suits first-time buyers seeking character with practical modern updates, or investors looking for a resilient rental in a city/major town location. Viewings are recommended to appreciate the layout, garden orientation and rear access in person.
3 bedroom semi-detached house for sale in Pen-y-Mynydd, Bettws, Bridgend, CF32 — £135,995 • 3 bed • 1 bath • 818 ft²
2 bedroom terraced house for sale in Heol Glannant, Bettws, Bridgend, CF32 — £140,000 • 2 bed • 1 bath • 831 ft²
3 bedroom end of terrace house for sale in Trebanog Road, Porth, Rhondda Cynon Taff, CF39 — £175,000 • 3 bed • 2 bath • 1141 ft²
3 bedroom terraced house for sale in Brynhyfryd Street, Clydach Vale, Tonypandy CF40 — £125,000 • 3 bed • 1 bath • 701 ft²
3 bedroom terraced house for sale in Trebanog Road, Trebanog, Porth, Rhondda Cynon Taff, CF39 — £139,950 • 3 bed • 1 bath • 620 ft²
3 bedroom terraced house for sale in Lower Church Street, Pontycymer, Bridgend, CF32 — £115,000 • 3 bed • 1 bath • 659 ft²














































