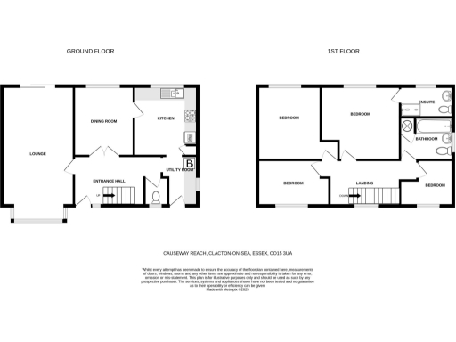
**Standout Features:**
- Four spacious bedrooms and two bathrooms, ideal for families
- Detached home with a double garage and off-street parking
- Generously sized garden for outdoor activities
- Located in a quiet cul-de-sac, offering privacy and tranquility
- Vacant possession and chain-free sale for a smooth transition
- Excellent mobile signal and fast broadband speeds
**Potential Concerns:**
- 1980s design may require modernization
- Average crime rate in the area
- Located in a deprived area, which may affect property value and amenities
Discover your perfect family home in this attractive four-bedroom detached property, nestled at the end of a peaceful cul-de-sac. With vacant possession and no onward chain, this home offers a seamless transition for buyers. Enjoy spacious living with a large living room featuring a fireplace, alongside generous bedroom sizes that accommodate family life. The double garage and off-street parking provide valuable convenience, while the decent-sized garden offers plenty of space for outdoor enjoyment.
Located in vibrant Clacton-on-Sea, you’ll find a variety of entertainment options, from its iconic pier to local theatres, ensuring a lively atmosphere year-round. Families will appreciate the close proximity to highly rated schools and community events that foster a strong neighborhood feel. While the property may need some modernization reflective of its 1980s design, the potential for personal touch and renovation is immense. This home is a fantastic opportunity for families or investors looking for a spacious, comfortable residence in a thriving coastal area. Don’t miss out—schedule your viewing today!
4 bedroom detached house for sale in Leyton Court, Clacton-On-Sea, CO15 — £290,000 • 4 bed • 2 bath • 862 ft²
4 bedroom detached house for sale in Pevensey Drive, Clacton-on-Sea, CO15 — £385,000 • 4 bed • 2 bath • 1404 ft²
4 bedroom detached house for sale in Mountview Road, Clacton-on-Sea, CO15 — £475,000 • 4 bed • 2 bath • 1652 ft²
4 bedroom detached house for sale in The Avenue, Clacton-On-Sea, CO15 — £425,000 • 4 bed • 2 bath
4 bedroom detached house for sale in Sheriffs Way, Great Clacton, Clacton-On-Sea, CO15 — £320,000 • 4 bed • 1 bath • 1023 ft²
4 bedroom detached house for sale in Vicarage Gardens, Clacton-On-Sea, CO15 — £425,000 • 4 bed • 2 bath • 1529 ft²










































































