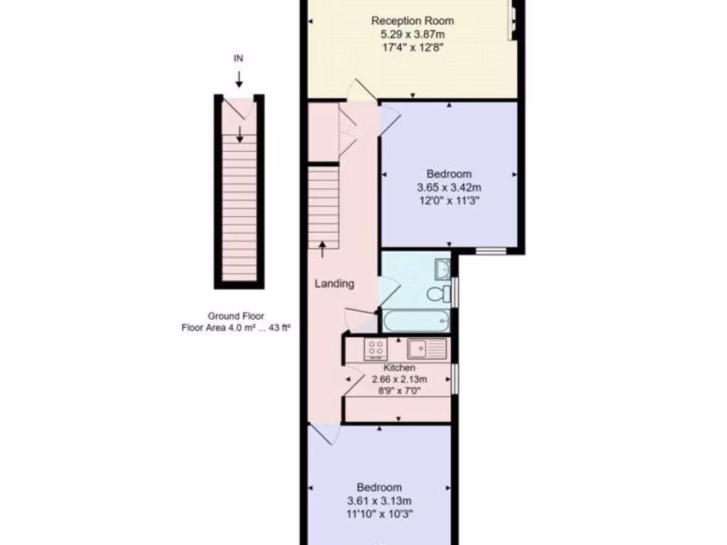
**Standout Features:**
- Two-bedroom first-floor flat in a charming Victorian mid-terrace.
- Generous living space with high ceilings and period features.
- Modern fitted kitchen and a white three-piece bathroom suite.
- Located within close proximity to Bounds Green Tube and Bowes Park British Rail Stations (0.4 miles).
- Low service charge of £600 and small ground rent of £50.
- Excellent mobile and fast broadband signal.
**Potential Concerns:**
- Leasehold status with average area deprivation.
- No insulation assumed in solid brick walls.
Discover the charm of this inviting two-bedroom first-floor flat that perfectly marries period elegance with modern convenience. Filled with character, the spacious living area boasts high ceilings and natural light, while the modern kitchen and bathroom provide comfort for everyday living. Situated in a vibrant multicultural neighborhood, you’ll be just a short walk from both Bounds Green Tube and Bowes Park Stations, making commuting a breeze.
Ideal for families, this home is near several outstanding primary schools and offers a low-maintenance lifestyle with a below-average service charge. Although the property lacks insulation and is leasehold, the generous layout and potential for future enhancement make this a valuable find in the heart of a thriving community. With its unique features and proximity to essential amenities, early viewing is highly recommended—your opportunity to embrace comfortable living in London awaits!
2 bedroom apartment for sale in Bowes Road, London, N11 — £350,000 • 2 bed • 1 bath • 686 ft²
2 bedroom apartment for sale in Beech Road, London, N11 — £479,995 • 2 bed • 1 bath • 677 ft²
2 bedroom apartment for sale in Natal Road, London, N11 — £399,000 • 2 bed • 1 bath • 686 ft²
2 bedroom apartment for sale in Natal Road, London, N11 — £500,000 • 2 bed • 1 bath • 671 ft²
2 bedroom apartment for sale in Hardwicke Road, London, N13 — £525,000 • 2 bed • 1 bath • 644 ft²
2 bedroom flat for sale in Palmerston Road, Bowes Park, N22 — £367,500 • 2 bed • 1 bath • 470 ft²










































