**Standout Features:**
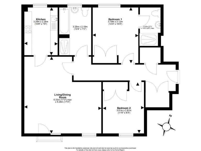
- Modern two-bedroom flat in sought-after location
- Stunning views over Firth of Forth and rooftop vistas
- Generous living/dining area with Juliet balcony
- En-suite principal bedroom and additional bathroom
- Allocated and visitor parking; secure entry and lift access
- Fast broadband and excellent mobile signal
**Key Concerns:**
- Average-sized rooms; potential need for minor maintenance
- High service charge of approximately £2400 yearly; above-average council tax
**Summary:**
Discover modern urban living in this beautifully presented two-bedroom fourth-floor flat overlooking the Firth of Forth. Perfect for professional couples, first-time buyers, or savvy investors, this property offers a spacious living and dining area bathed in natural light, complete with a charming Juliet balcony. With a well-equipped modern kitchen, two generous double bedrooms with built-in storage, and an en-suite in the principal bedroom, comfort is guaranteed. Enjoy the convenience of allocated parking, security entry, and a lift for ease of access.
Located just a five-minute walk from the scenic Wardie Bay Beach and within a vibrant cosmopolitan neighborhood, this home balances tranquility with accessibility to city life. Priced £5k below Home Report value and available part-furnished, this property is an exclusive opportunity not to be missed. Act now to embrace an enviable lifestyle!
2 bedroom flat for sale in 25/21 Kingsburgh Crescent, Granton, Edinburgh, EH5 1RU, EH5 — £235,000 • 2 bed • 2 bath • 663 ft²
2 bedroom flat for sale in 25/17 Kingsburgh Crescent, Granton, Edinburgh, EH5 1RU, EH5 — £237,500 • 2 bed • 2 bath • 571 ft²
2 bedroom flat for sale in 7/27 Portland Gardens, Leith, Edinburgh, EH6 6NQ, EH6 — £279,000 • 2 bed • 2 bath • 893 ft²
2 bedroom flat for sale in 172/11 Lower Granton Road, Granton, Edinburgh, EH5 1GL, EH5 — £295,000 • 2 bed • 2 bath • 707 ft²
2 bedroom flat for sale in Waterfront Avenue, Edinburgh, EH5 — £230,000 • 2 bed • 2 bath • 829 ft²
2 bedroom apartment for sale in Western Harbour Terrace, Western Harbour, Edinburgh, EH6 — £270,000 • 2 bed • 2 bath • 1047 ft²






















































































