Spacious plot and garage, ideal for families seeking renovation potential.
No onward chain — vacant and ready to progress sale
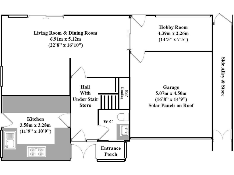
This detached four-bedroom house sits on a generous plot in a well-regarded Runcorn cul-de-sac, offered with no onward chain. Its mid-1970s build and double garage give immediate practical benefits for family life, while solar panels reduce running costs. The plot and layout suit growing families who need flexible living and outdoor space.
The interior shows its original 1970s character and will benefit from updating — the living room, kitchen and bathrooms are functional but dated. There is clear potential to reconfigure or modernise to increase comfort and value; buyers should expect renovation work to bring the house up to modern standards.
Practical positives include off-road parking for multiple vehicles, internal access to the garage with electric roller door, fast broadband and mains gas central heating. The area has good primary schools nearby and easy access to transport links, although some local secondary schools are lower-rated and the surrounding neighbourhood faces high deprivation levels.
Note the property is freehold, average overall size (approx. 1,348 sq ft) and double glazed (installed before 2002). Early viewing is advised for purchasers seeking a sizeable family home with scope to improve and personalise.
4 bedroom detached house for sale in Greenhouse Farm Road, Runcorn, WA7 — £240,000 • 4 bed • 1 bath • 1612 ft²
4 bedroom detached house for sale in Walpole Road, Higher Runcorn, WA7 — £375,000 • 4 bed • 2 bath • 1340 ft²
3 bedroom detached house for sale in Sherborne Close, Runcorn, WA7 — £325,000 • 3 bed • 3 bath • 1248 ft²
3 bedroom semi-detached house for sale in Malpas Road, Higher Runcorn, WA7 — £250,000 • 3 bed • 1 bath • 1185 ft²
4 bedroom detached house for sale in St. Neots Place, Runcorn, WA7 — £350,000 • 4 bed • 3 bath • 1066 ft²
4 bedroom detached house for sale in Heron Close, Runcorn, WA7 — £360,000 • 4 bed • 2 bath • 1330 ft²


















































































