**Standout Features:**
- Modern top floor apartment in a well-maintained communal block
- Long lease of 109 years remaining
- Gas central heating and double glazing
- Two spacious bedrooms and a contemporary lounge/dining room
- Allocated off-street parking and communal garden
- Strong investment potential with a favorable rental yield
**Notable Concerns:**
- Above-average crime rate in the area
- Annual service charge of £2,100
- Area classified as very deprived
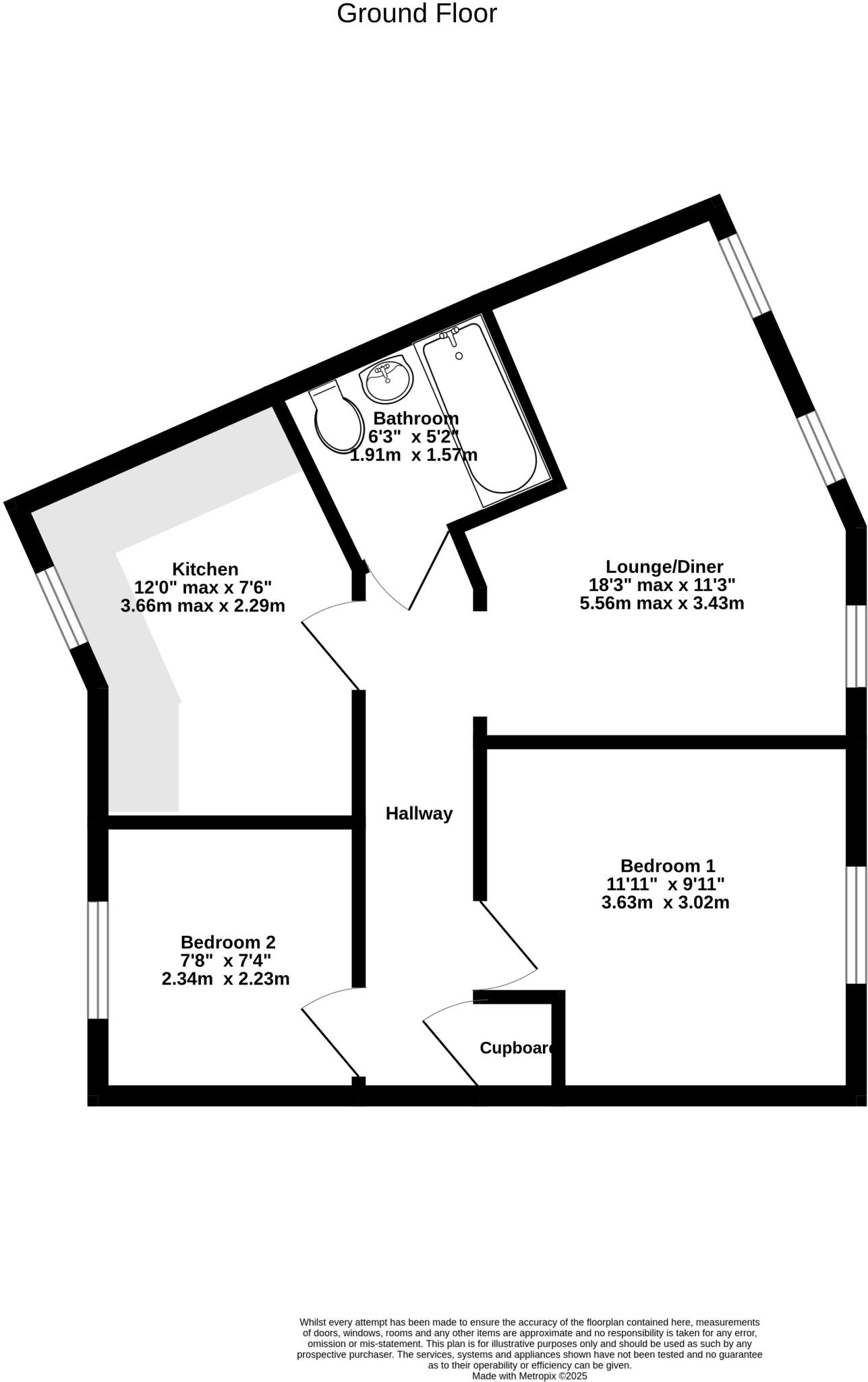
Discover the perfect blend of modern living and investment potential in this well-presented top floor apartment, ideally situated on the border of Oldbury and Smethwick. With a generous layout encompassing two well-sized bedrooms, a contemporary lounge/dining room with ample natural light, and a fitted kitchen with a built-in oven and hob, this property stands ready for first-time buyers, professional couples, or buy-to-let investors.
The apartment boasts a 109-year lease, gas central heating, and double glazing, ensuring a comfortable living environment. An allocated parking space and access to a communal garden add to the appeal. Positioned close to amenities and transport links, this property is a unique opportunity that won’t be available for long. While the local area has an above-average crime rate and is classified as very deprived, the investment yield and room to personalize your space make this an opportunity not to miss—viewings are highly recommended to truly appreciate its size and condition. Don’t let this advantageous listing pass you by!
2 bedroom flat for sale in Flat , Gaiety House, Regent Street, Smethwick, B66 — £160,000 • 2 bed • 2 bath • 695 ft²
2 bedroom flat for sale in Kinsey Road, Smethwick, B66 — £130,000 • 2 bed • 1 bath • 535 ft²
2 bedroom apartment for sale in Pottery Road, Oldbury, Birmingham, West Midlands, B68 — £129,950 • 2 bed • 2 bath • 700 ft²
2 bedroom apartment for sale in Old Meeting Street, West Bromwich, B70 — £110,000 • 2 bed • 1 bath • 626 ft²
2 bedroom apartment for sale in Jefferson Place Grafton Road, West Bromwich, B71 — £85,000 • 2 bed • 1 bath • 620 ft²
2 bedroom apartment for sale in Unitt Drive, Cradley Heath, B64 — £120,000 • 2 bed • 1 bath • 414 ft²






































