Large six-bedroom Victorian house with vast garden and parking, ideal for families and refurbishment.
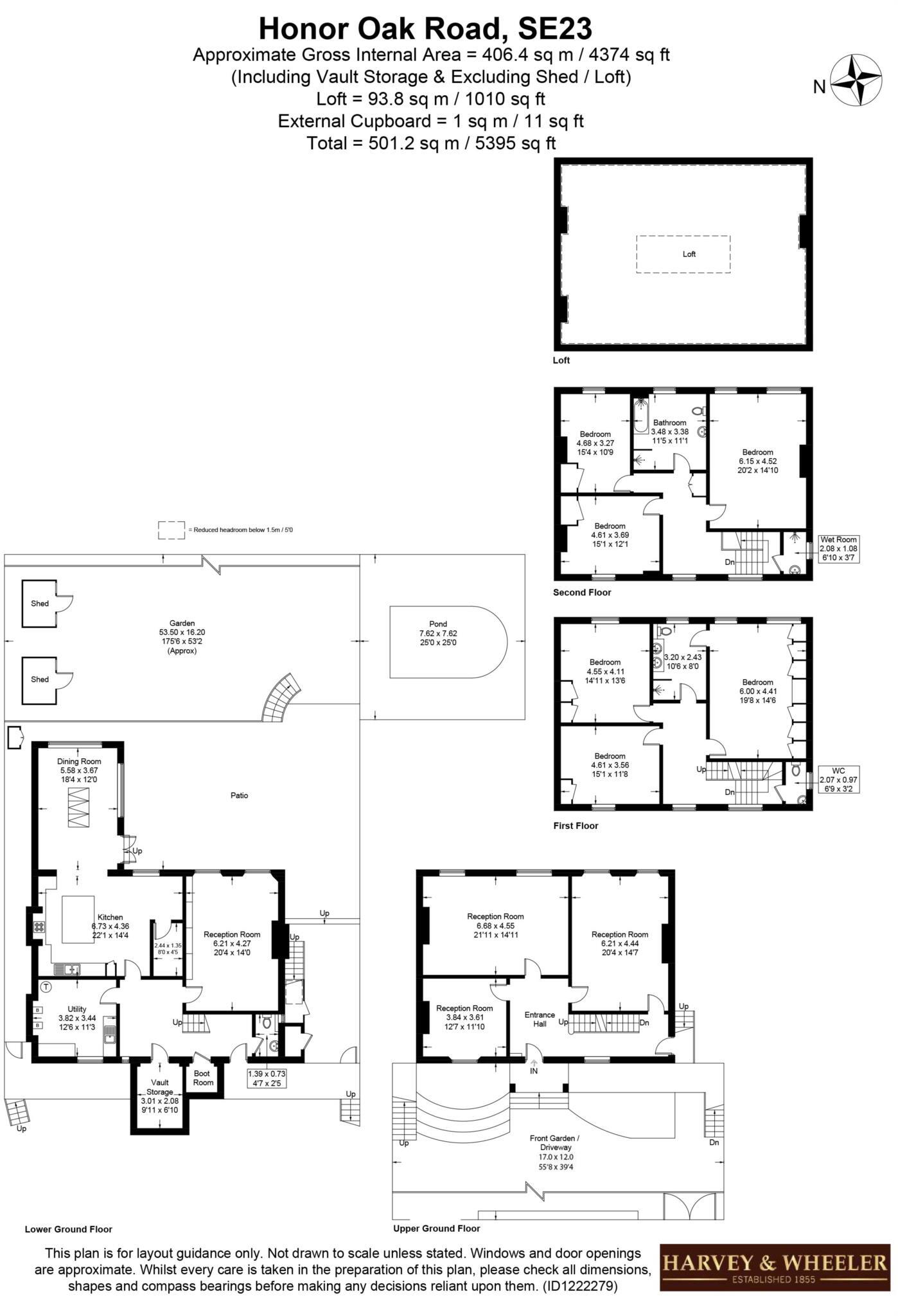
- Approximately 4,374 sq ft gross internal area (six double bedrooms)
- Spectacular mature rear garden approx. 175'6" x 53'2"
- Carriage driveway parking for several cars, front garden
- Four reception rooms plus open-plan kitchen with roof lantern
- Period features: high ceilings, sash windows, original floorboards
- EPC E; double glazing pre-2002 and likely no wall insulation
- Timber-frame walls assumed uninsulated; energy upgrades advised
- Council Tax Band G; local crime levels are higher than average
This grand double-fronted Victorian detached house on Honor Oak Road offers substantial family living across approximately 4,374 sq ft (gross internal) with six double bedrooms, four reception rooms and a very large, mature rear garden measuring about 175'6" x 53'2". High ceilings, original floorboards, sash windows, decorative cornices and stained glass doors retain strong period character while the lower-ground open-plan kitchen with a central island and roof lantern provides a contemporary, sociable heart opening onto a large paved patio. A carriage driveway provides off-street parking for several cars.
The layout suits a multi-generational household or those wanting versatile space for home working, entertaining and storage (vaults, loft and sheds excluded from GIA). The property is well-placed for sought-after schools (Dulwich College, Alleyn’s, Horniman Primary) and has direct rail links from nearby Forest Hill to central London.
Buyers should note several material facts: the building dates from c.1900–1929 with timber-frame walls assumed to lack insulation, double glazing installed before 2002, and an EPC rating of E — indicating likely energy-efficiency improvement work required. Council Tax is Band G and the local area records higher-than-average crime levels. These factors, together with period maintenance needs, should be factored into budgets.
This is a rare, substantial Victorian home in a prime SE23 location with clear potential for upgrading and modernisation to improve comfort, efficiency and value. It will particularly suit families seeking space and proximity to top schools, or buyers prepared to invest in sensitive refurbishment to enhance long-term returns.
5 bedroom link detached house for sale in Wood Vale, Forest Hill, SE23 — £2,500,000 • 5 bed • 4 bath • 2733 ft²
5 bedroom detached house for sale in Forest Hill Road, London, SE23 — £1,600,000 • 5 bed • 2 bath • 2600 ft²
5 bedroom detached house for sale in Forest Hill Road, London, SE23 — £1,300,000 • 5 bed • 1 bath • 2720 ft²
5 bedroom detached house for sale in Sunderland Road, Forest Hill, SE23 — £2,150,000 • 5 bed • 3 bath • 3000 ft²
6 bedroom semi-detached house for sale in Montem Road, Forest Hill, London, SE23 — £1,500,000 • 6 bed • 2 bath • 3453 ft²
6 bedroom detached house for sale in Sydenham Hill, Sydenham, SE26 — £2,750,000 • 6 bed • 5 bath • 5447 ft²










































































































