**Standout Features:**
- Spacious 4-bedroom detached house from the early 20th century
- Generous south-facing rear garden, perfect for outdoor activities
- Ample potential for renovation and extension with large loft space
- Ideal location, 2 miles from town center, railway station, and amenities
- Freehold tenure with a single garage and driveway
**Potential Downsides:**
- Requires modernization, including possible updates to glazing and insulation
- Average council tax band (Band F)
- Structure may need further inspection, particularly insulation in cavity walls
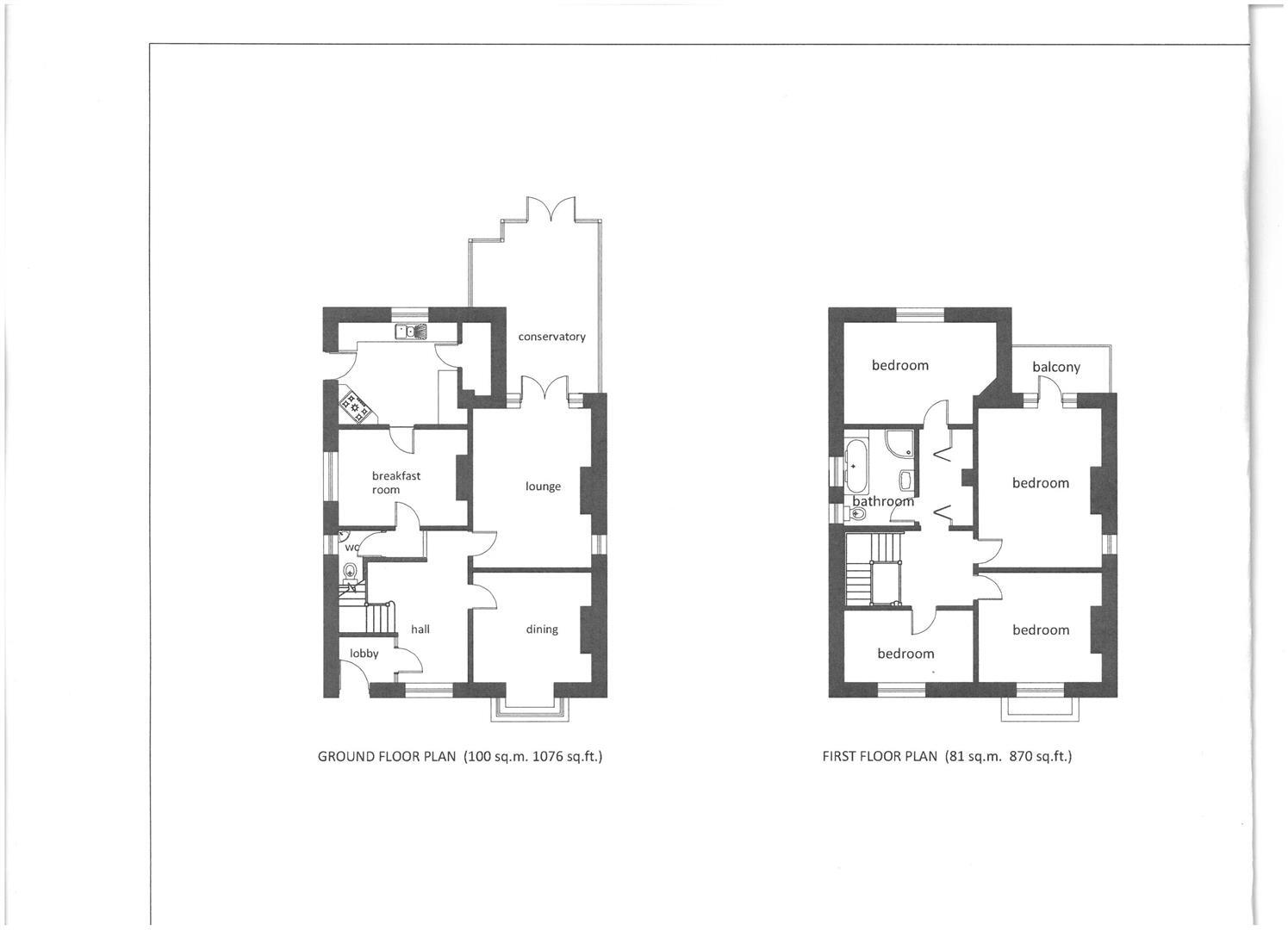
Discover your dream home in this charming early 20th-century detached house in the desirable South Ward neighborhood, just 2 miles from the vibrant town center and sea front. Offering 1,925 square feet of flexible accommodation, this property boasts four spacious bedrooms, a large conservatory, and a substantial south-facing garden perfect for family gatherings or gardening enthusiasts. With excellent broadband speeds and mobile signal, remote work or study becomes a breeze.
This property is a blank canvas, ripe for renovation to create your perfect family haven. The large loft space presents an exciting opportunity for additional living space (subject to consents), making it a smart investment for future growth. Enjoy nearby amenities, quality local schools, and robust transportation links, ensuring convenience in your daily life. Don't miss out on the chance to transform this home into your unique sanctuary—properties like this don’t stay on the market long!
5 bedroom detached house for sale in Brean Down Avenue, Weston-super-Mare, North Somerset, BS23 — £925,000 • 5 bed • 3 bath • 3359 ft²
3 bedroom semi-detached house for sale in Totterdown Road, Weston-super-Mare, BS23 — £370,000 • 3 bed • 1 bath • 1176 ft²
4 bedroom semi-detached house for sale in Quantock Road, Weston-super-Mare, North Somerset, BS23 — £395,000 • 4 bed • 2 bath • 1753 ft²
5 bedroom detached house for sale in Arundell Road, Weston-Super-Mare - BEAUTIFULLY PRESENTED, BS23 — £535,000 • 5 bed • 2 bath • 2200 ft²
4 bedroom detached house for sale in Balmoral Way, Weston-super-Mare, North Somerset, BS22 — £350,000 • 4 bed • 1 bath • 1311 ft²
4 bedroom semi-detached house for sale in St. Pauls Road, BS23 — £440,000 • 4 bed • 2 bath • 1488 ft²






























































