Single-level living with generous garden and easy access to Maidstone and Headcorn.
Large landscaped rear garden backing onto open fields
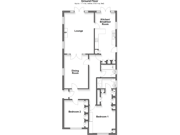
A thoughtfully updated two-bedroom detached bungalow set on the edge of Sutton Valence, offering single-storey living with peaceful countryside views. The accommodation includes two double bedrooms with fitted storage, a generous lounge and separate dining room, plus a kitchen/breakfast room. The main bedroom includes a dressing area and en-suite that could be reconfigured as a third bedroom if required. The property benefits from a large landscaped rear garden that backs onto open fields, a garage for storage and a wide driveway for multiple vehicles.
This bungalow has been recently renovated and is presented in move-in condition, with mains gas central heating and double glazing already installed. Its plot size and layout will particularly suit downsizers seeking low-maintenance, single-level living while retaining room for visiting family or hobby gardening. The village location provides quick road and bus links to Headcorn and Maidstone, while local schools and basic amenities are within easy reach.
Buyers should note the house was constructed in the late 1960s/early 1970s and extended at some point; planning and building-regulation consents for the extension should be checked. The double glazing was installed prior to 2002 and may not meet the latest efficiency standards. Overall, this freehold bungalow combines updated accommodation with a generous garden and rural outlook — ideal for those seeking comfortable, countryside retirement living with good commuter access.
4 bedroom detached bungalow for sale in Maidstone Road, Sutton Valence, Maidstone, ME17 — £500,000 • 4 bed • 2 bath • 1300 ft²
4 bedroom bungalow for sale in Dickens Close, Langley, Maidstone, Kent, ME17 — £500,000 • 4 bed • 2 bath • 1312 ft²
3 bedroom detached bungalow for sale in Lested Lane, Chart Sutton, Maidstone, ME17 3RZ, ME17 — £550,000 • 3 bed • 1 bath • 1447 ft²
3 bedroom semi-detached house for sale in Chartway Street, Sutton-Valence, ME17 — £450,000 • 3 bed • 1 bath • 772 ft²
3 bedroom detached bungalow for sale in Sutton Road, Maidstone, ME15 — £425,000 • 3 bed • 1 bath • 880 ft²
3 bedroom detached bungalow for sale in Chart Hill Road, Chart Sutton, ME17 — £450,000 • 3 bed • 1 bath • 1139 ft²


















































































