Ideal family base minutes from Alperton station and local schools.
Newly refurbished throughout with bespoke fixtures and fittings
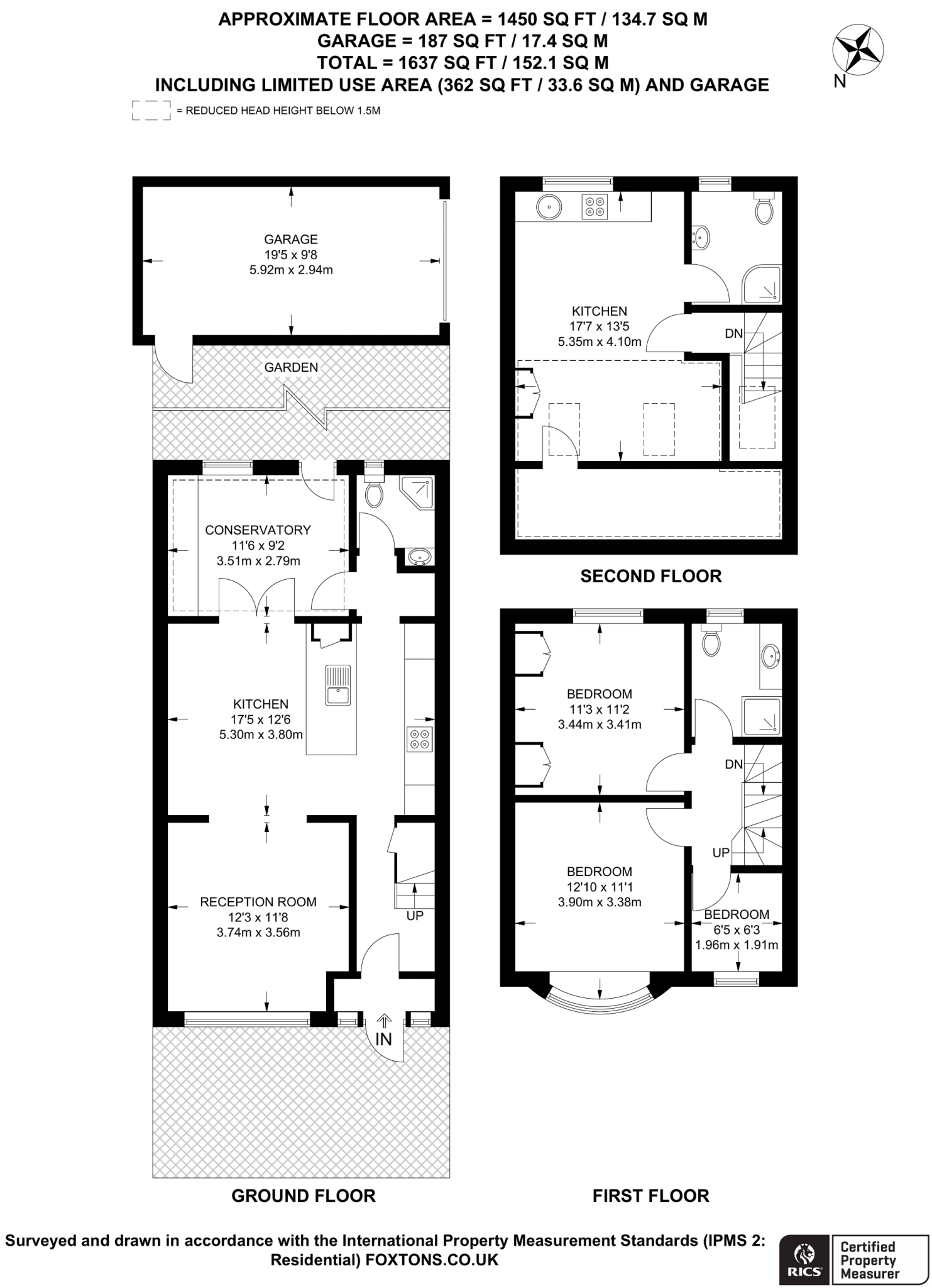
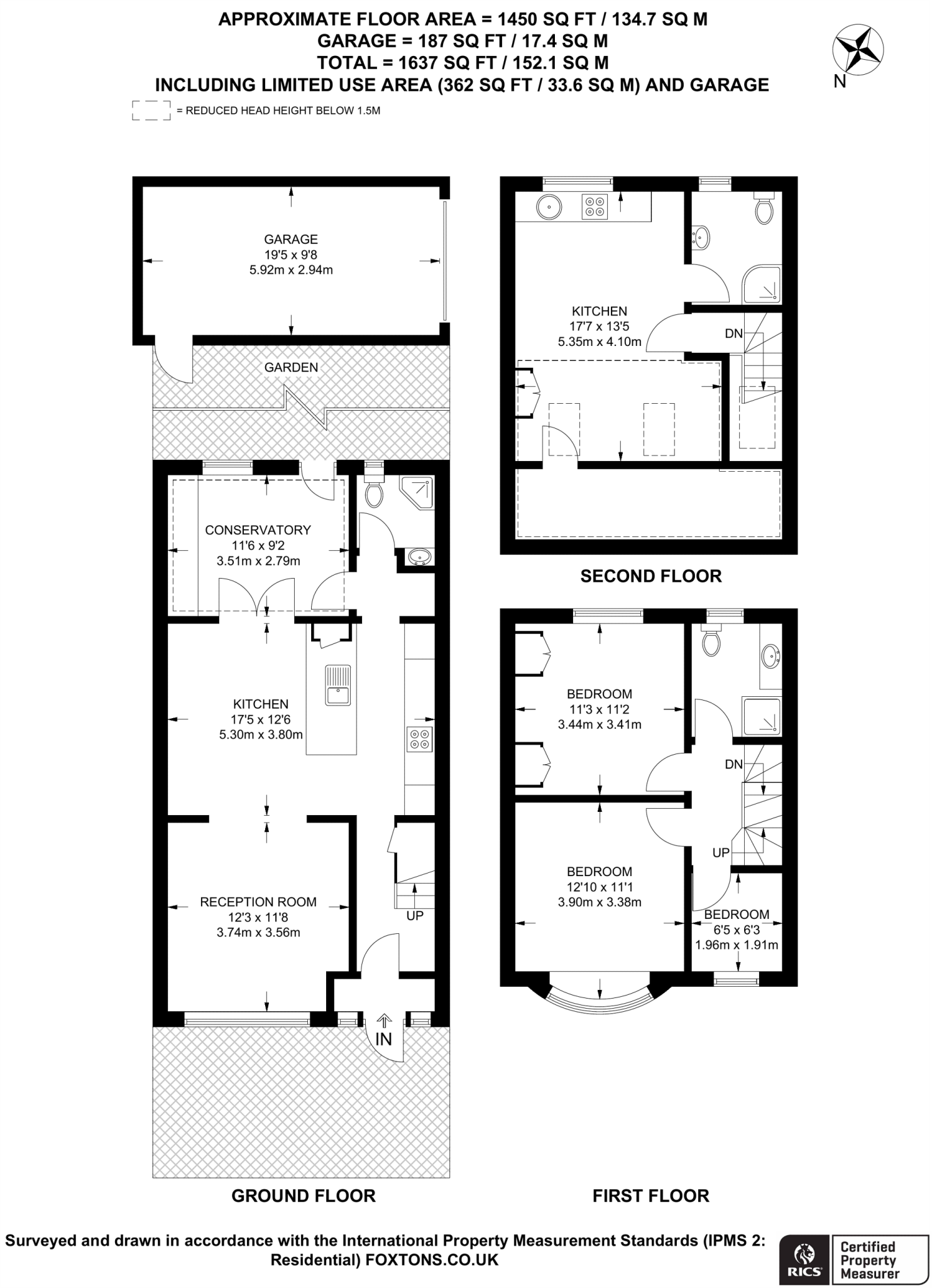
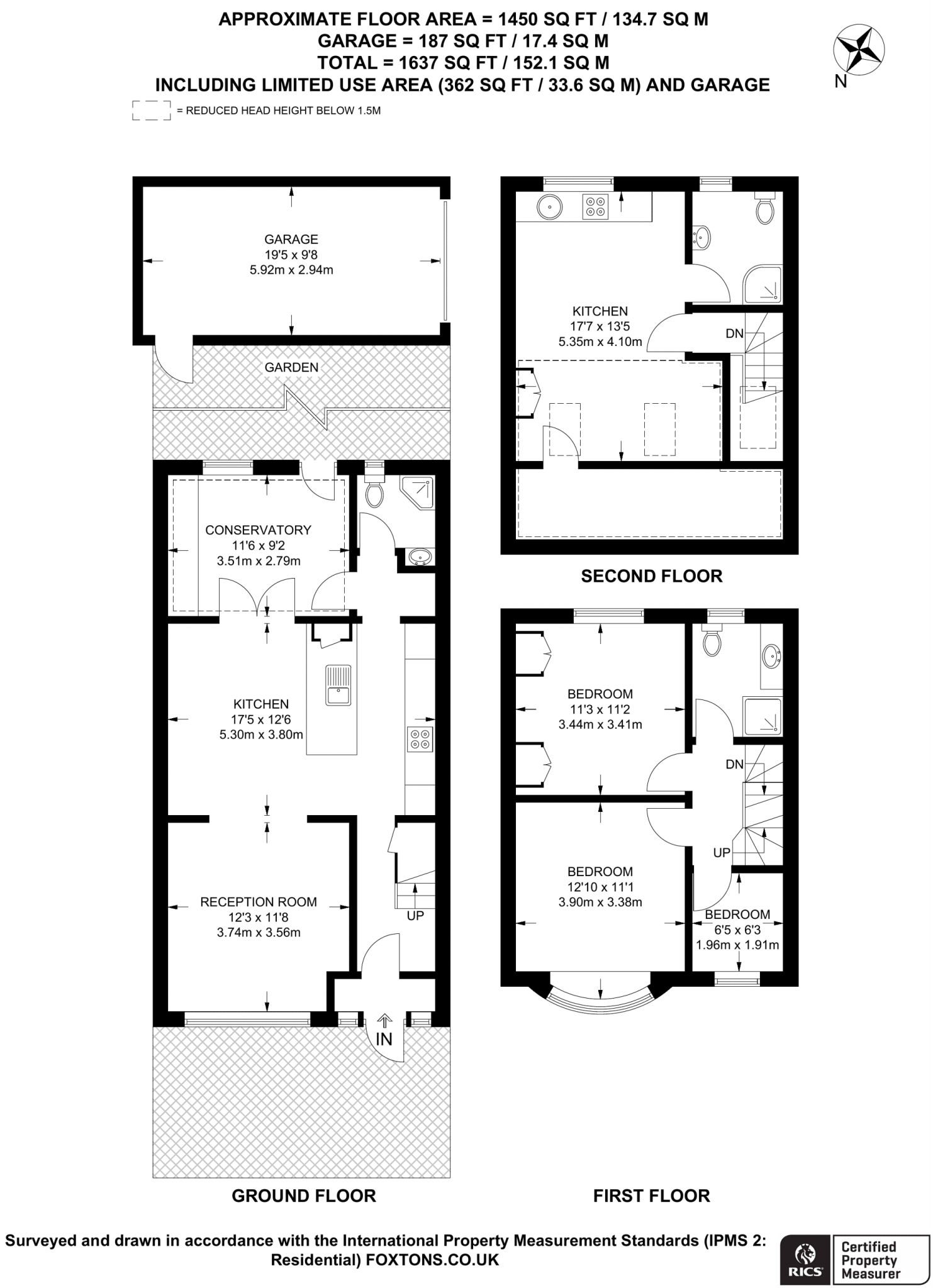
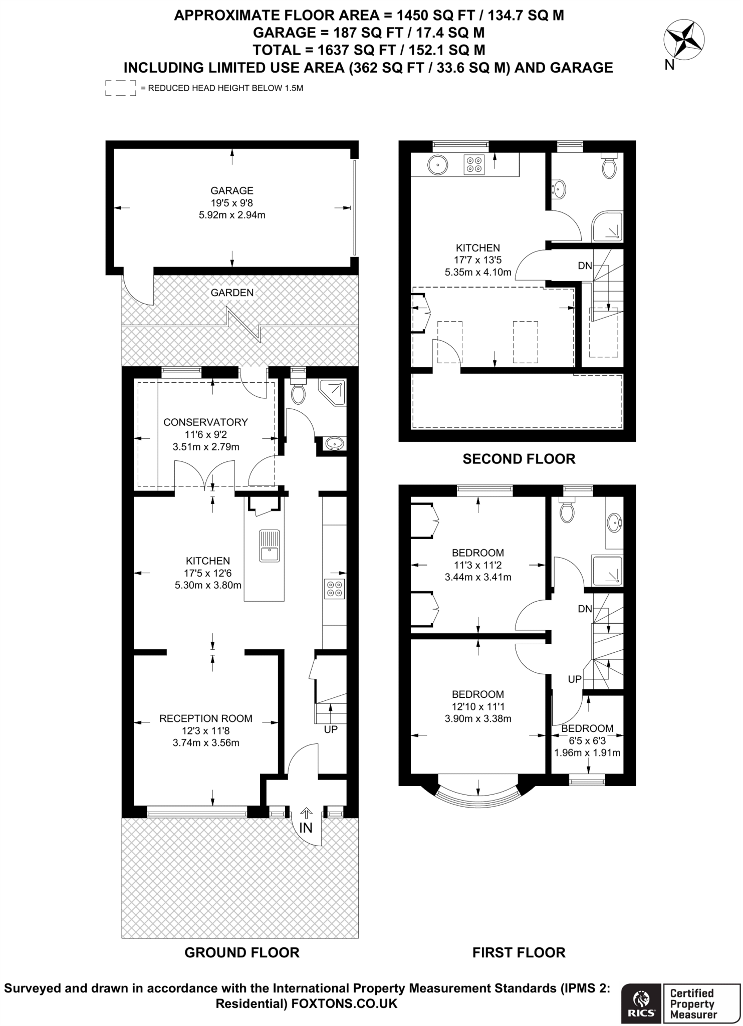
This newly refurbished four-bedroom, three-storey terraced house offers contemporary living across approximately 1,637 sq ft. The ground floor opens into an impressive open-plan reception and kitchen/dining area with a breakfast bar, plus a bright conservatory with fitted units that leads to a private garden. A rear-access parking space and single garage add valuable convenience in this inner-Wembley location.
Upstairs are large bedrooms with built-in storage and a self-contained loft-room annex that could suit a home office, guest suite or rental income. Heating is provided by a mains-gas boiler and radiators; interiors benefit from bespoke fixtures and modern finishes following a full refurbishment.
Practical considerations: the plot is compact and the property is an end-terrace of solid brick construction (original walls likely uninsulated). The neighbourhood records higher-than-average crime levels, which buyers should weigh against the house’s strong transport links — Alperton station is moments away — and proximity to well-rated primary and secondary schools. Overall this is a versatile family home with added annex potential and off-street parking, offered freehold.
4 bedroom semi-detached house for sale in Norton Road, Wembley, HA0 — £1,020,000 • 4 bed • 2 bath • 2237 ft²
3 bedroom terraced house for sale in Bridgewater Road, Wembley, HA0 — £625,000 • 3 bed • 2 bath • 1001 ft²
4 bedroom house for sale in Berkhamsted Avenue, Wembley, HA9 — £900,000 • 4 bed • 2 bath • 2627 ft²
4 bedroom semi-detached house for sale in Pleasant Way, Wembley, Middlesex, HA0 — £699,950 • 4 bed • 2 bath • 1350 ft²
5 bedroom terraced house for sale in Lomond Close, Wembley, Middlesex HA0 — £700,000 • 5 bed • 2 bath • 1253 ft²
4 bedroom semi-detached house for sale in Ledway Drive, Wembley, Middlesex, HA9 — £750,000 • 4 bed • 2 bath • 1096 ft²














































































































































































































































































































































































































































































































































































































































