**Standout Features:**
- Ideal for first-time buyers or as a rental investment
- Allocated off-road parking space
- Walking distance to town centre and harbour
- Modern double-glazed windows and gas central heating
- Chain-free purchase for quick entry
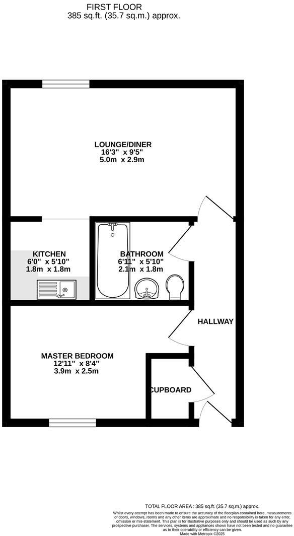
Discover this cozy one-bedroom apartment in the heart of Weymouth, perfect for first-time buyers or investors seeking rental potential. At approximately 385 square feet, the first-floor flat features a spacious lounge/diner, a well-equipped kitchen with essential appliances, and a comfortable double bedroom—each benefiting from natural light through double-glazed windows. The partially tiled bathroom boasts a p-shaped bath with shower attachment.
Outside, you'll find the convenience of an allocated parking space along with communal areas. Enjoy easy access to local amenities, including shopping and leisure facilities, as well as picturesque walking trails. With a council tax band A rating, low ground rent, and no chain, this property is a hassle-free entry into homeownership. However, prospective buyers should note the compact space may be best suited for individuals or couples seeking a low-maintenance lifestyle. Don’t miss this opportunity to secure your foothold in a vibrant community—this gem won’t be available for long!
2 bedroom apartment for sale in Southview Road, Weymouth, DT4 — £124,950 • 2 bed • 1 bath • 361 ft²
1 bedroom apartment for sale in Wellington Court, Weymouth, DT4 — £170,000 • 1 bed • 1 bath • 429 ft²
1 bedroom apartment for sale in Elwell Manor Gardens, Weymouth, DT4 — £109,000 • 1 bed • 1 bath
1 bedroom ground floor flat for sale in Grange Road , Weymouth, DT4 — £130,000 • 1 bed • 1 bath • 348 ft²
2 bedroom apartment for sale in Franklin Road, Weymouth, DT4 — £130,000 • 2 bed • 1 bath • 435 ft²
2 bedroom flat for sale in Doulton Close, Weymouth, DT4 — £200,000 • 2 bed • 2 bath • 702 ft²






































