Prime village site with planning for four large family homes close to schools.
Full planning approved for four detached dwellings (ref 24/02143/FUL)
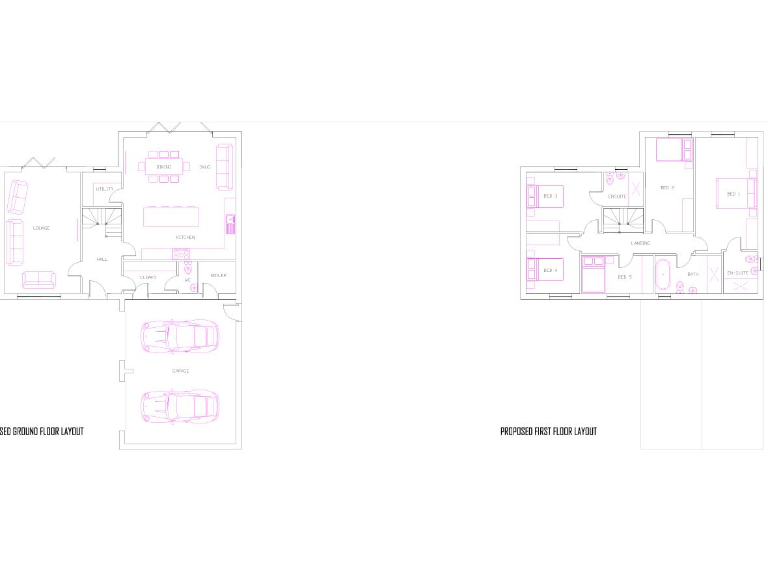
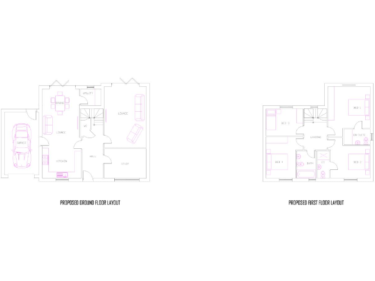
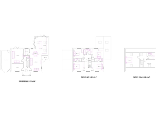
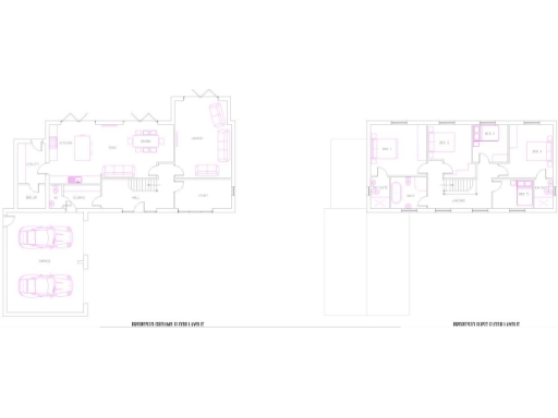
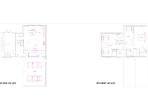
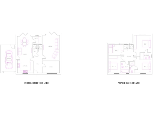
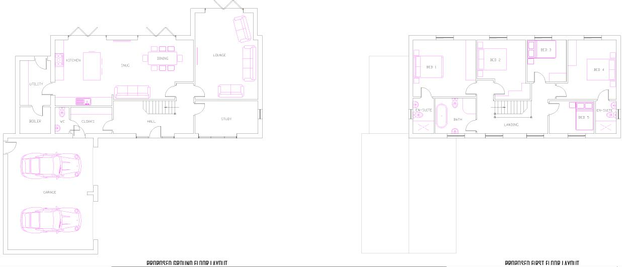
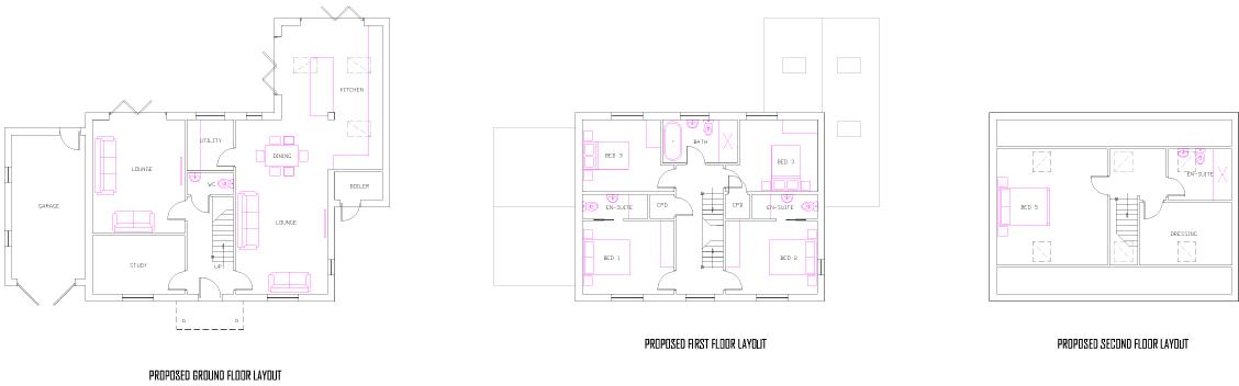
Largest home approx 2450 sq ft; smallest approx 1706 sq ft
Garages provided; two extra parking spaces allocated per plot
Very large plots with good outside space and countryside setting
Outstanding and Good schools within village and nearby
No flood risk; low crime; very affluent area
Sold as development site — purchaser to construct buildings
Planning conditions apply (ref 24/00930/COND) and build costs required
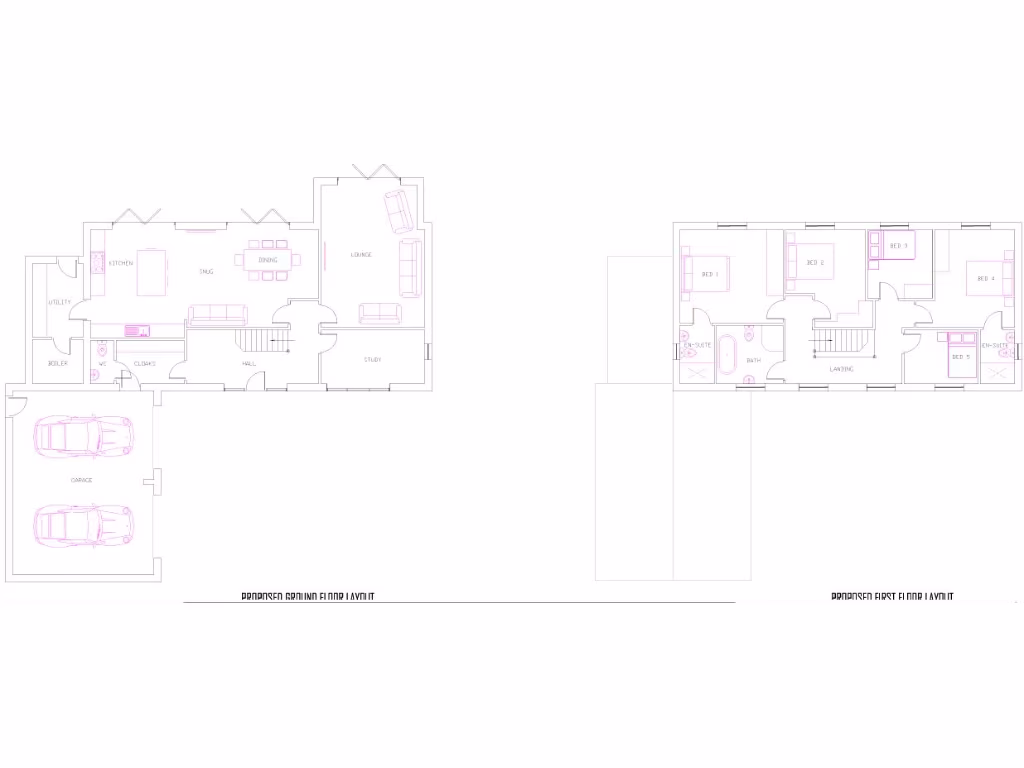
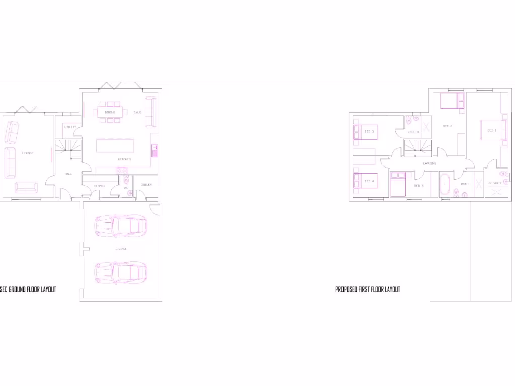
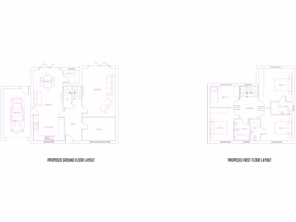
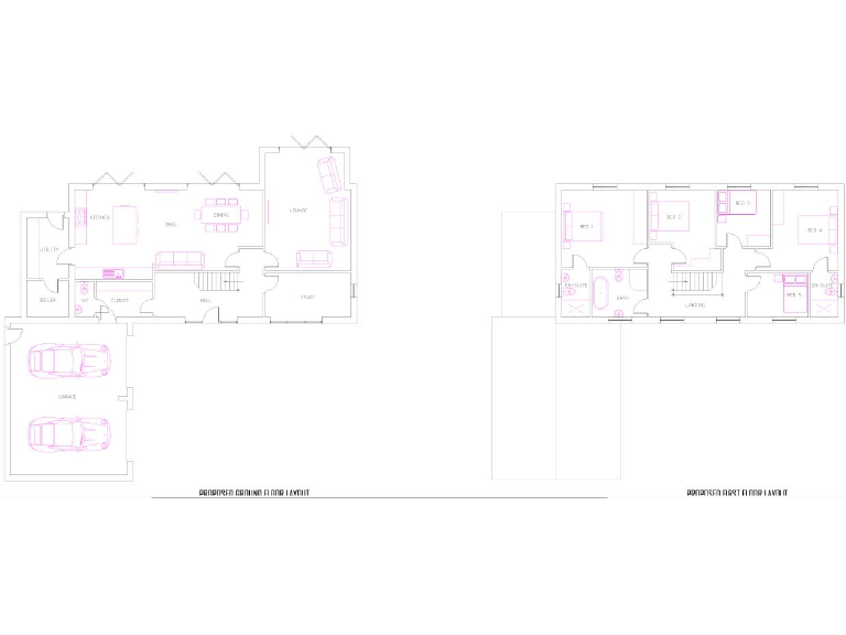
A rare village development opportunity in the heart of Finningley, sold as a single freehold site with full planning permission for four substantial detached homes (ref: 24/02143/FUL, approved 17 April 2025). The consent covers a mix of large family houses (plot sizes range from 1706–2450 sq ft) with garages and two additional allocated parking spaces per plot, set within very large private plots and good outside space. The location is highly practical: outstanding and good-rated schools nearby, village amenities within walking distance, fast broadband and excellent mobile signal, and easy access to Bawtry and Doncaster.
This is a planning-approved new build scheme rather than a completed development — purchasers should allow for build costs, contractor appointment and compliance with planning conditions (ref: 24/00930/COND). Three plots include double garages, one has a single garage; parking and garden space are generous but layouts are contemporary open-plan, so finishes and internal specification will be a purchaser choice. There is no flooding risk, crime is low and the surrounding area is very affluent.
The site suits a developer or investor seeking a small, low-density village scheme with strong schooling catchment and countryside appeal. It could also appeal to a local builder or self-delivery buyer wanting to control specification. Buyers should note planning conditions and the requirement to progress construction, plus the usual costs associated with new-build delivery (build, infrastructure, fees).
5 bedroom detached house for sale in Blenheim Drive, Doncaster, DN9 — £800,000 • 5 bed • 2 bath • 3175 ft²
Plot for sale in 27 Warning Tongue Lane, Bessacarr, Doncaster, South Yorkshire, DN4 6TB, DN4 — £575,000 • 7 bed • 6 bath • 6000 ft²
Land for sale in Clear View, Grimethorpe, Barnsley, S72 — £325,000 • 1 bed • 1 bath
Plot for sale in Rotherham Road, Barnsley, S71 — £550,000 • 1 bed • 1 bath
Land for sale in Welham, Retford, DN22 — £250,000 • 1 bed • 1 bath • 2734 ft²
Land for sale in Development Land, Off Lea Road, Gainsborough, DN21 — £450,000 • 1 bed • 1 bath


























