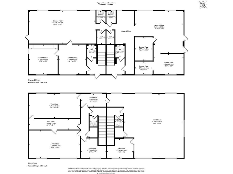
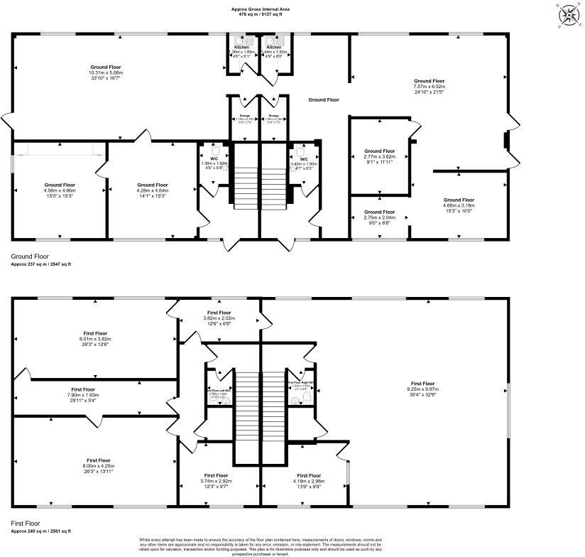
Two-storey vacant building with parking and clear refurbishment potential.
- Substantial two-storey detached office building, approx 4,600–4,715 sq ft
- Vacant, currently two inter-connected suites; can be split into two units
- Previously achieved £28,000 pa rent (useful income comparable)
- Leasehold: circa 90 years remaining on 125-year lease from 1990
- For sale by public auction; sale subject to auction terms and legal pack
- High local crime and area deprivation may affect tenant demand
- EPC rating D; refurbishment could improve energy efficiency
- Off-street parking, excellent mobile signal, fast broadband
A substantial two-storey detached commercial building on Queensway Industrial Estate offered at auction with a guide price of £120,000+. The 4,600–4,715 sq ft footprint is currently a vacant, inter-connected pair of suites that can remain as a single large office or be split into two independent lettable units. Off-street parking, a D EPC and fast broadband/mobile connectivity support immediate reuse with limited external works.
This is a leasehold purchase with approximately 90 years remaining on a 125-year lease from 1990. The property was previously let at £28,000 per annum, offering a tangible rental benchmark, but sale by public auction and a public notice of repossession mean buyers must buy with reduced due diligence time and accept auction conditions. There are no internal viewings arranged.
Location strengths include proximity to Scunthorpe rail station, local retail and amenities, and open space at Ashby Ville Nature Reserve. Countering factors: the neighbourhood records high crime and wider area deprivation, which may affect tenant demand and yields. EPC D indicates moderate energy performance; refurbishment could improve both marketability and running costs.
Suitable for an investor or developer comfortable with auction purchases and leasehold ownership, this building offers clear refurbishment or re-letting potential, plus the option to split into two separate suites to diversify income or reduce void risk. Buyers should review the legal pack and factor in marketing, refurbishment and management costs given the location profile.
Office for sale in Crown Buildings, Laneham Street, Scunthorpe, North Lincolnshire, DN15 — £2,250,000 • 1 bed • 1 bath • 24038 ft²
Commercial property for sale in Oswald Road, SCUNTHORPE, DN15 — £125,000 • 1 bed • 1 bath • 1445 ft²
Office for sale in 177-195, High Street , Scunthorpe, North Lincolnshire , DN15 6LN, DN15 — POA • 1 bed • 1 bath • 8912 ft²
Showroom for sale in Showroom/Industrial Premises , Grange Lane North, Scunthorpe, North Lincolnshire , DN16 — £550,000 • 1 bed • 1 bath • 10217 ft²
Office for sale in 76 Oswald Road, Scunthorpe, 76 Oswald Road, Scunthorpe, DN15 7PG, DN15 — £275,000 • 1 bed • 1 bath • 2188 ft²
High street retail property for sale in 15-19, Cole Street, Scunthorpe, North Lincolnshire, DN15 6QY, DN15 — £300,000 • 1 bed • 1 bath • 4284 ft²


























































