Spacious private garden and period charm, ready to move into.
Private large rear garden, rare for apartments nearby
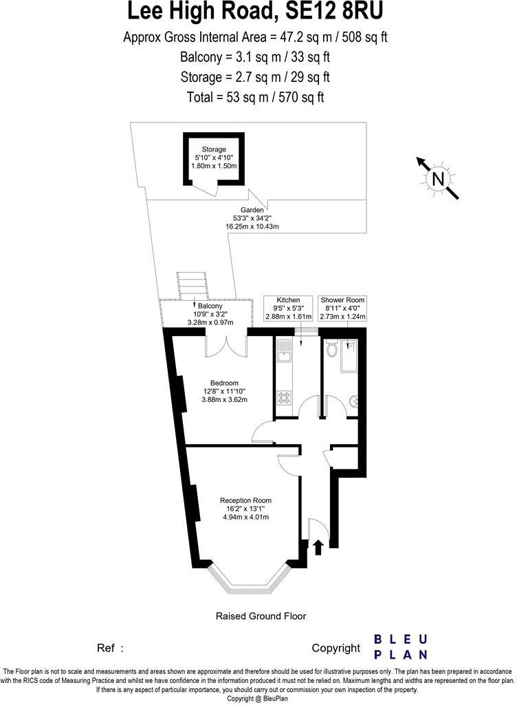
Ground-floor flat with 508 sq ft internal area
Victorian features: bay window, high ceilings, fireplace present
Timber sash windows double glazed in 2023
Lease extended in 2018; c.150 years remaining
Low service charge £805 and no ground rent
Mains gas boiler and radiator heating
Solid brick walls likely without modern insulation
This ground-floor one-bedroom garden flat sits in a handsome period building between Hither Green and Blackheath, ideal for a first-time buyer or couple seeking character with outdoor space. The interior has been well maintained and recently updated: timber sash windows were double glazed in 2023 and the bathroom and kitchen are modern, so the flat is largely move-in ready.
A major asset is the substantial private rear garden, rare at this size and level of property, plus a large street-facing reception with a bay window and high ceilings that preserve Victorian character. Transport links are excellent—Hither Green and Blackheath stations are within walking distance and new bus services provide convenient routes to East London and Canary Wharf.
Practical points are straightforward: the lease was renewed in 2018 and now shows approximately 150 years remaining, service charge is comparatively low at £805, and there is no ground rent. Heating is mains-gas boiler with radiators.
Notable cautions: the internal area is compact at 508 sq ft, so the flat suits a single occupant or couple rather than a family. The building’s solid brick construction means external walls likely lack modern insulation, which can affect coldness and running costs despite double glazing. The property is leasehold—buyers should factor in the tenure when budgeting.
1 bedroom apartment for sale in Wellmeadow Road, Hither Green, SE6 — £310,000 • 1 bed • 1 bath • 477 ft²
1 bedroom flat for sale in Ardgowan Road, Catford, London, SE6 — £375,000 • 1 bed • 1 bath • 584 ft²
1 bedroom apartment for sale in Lochaber Road, Lewisham, London, SE13 — £340,000 • 1 bed • 1 bath • 517 ft²
2 bedroom flat for sale in Springbank Road, Hither Green , London, SE13 — £450,000 • 2 bed • 1 bath • 748 ft²
1 bedroom apartment for sale in Delafield Road, Charlton, SE7 — £350,000 • 1 bed • 1 bath • 729 ft²
1 bedroom flat for sale in Delafield Road, Charlton, SE7 — £350,000 • 1 bed • 1 bath • 555 ft²


























































