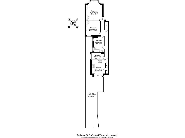
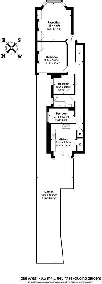
Characterful ground-floor conversion with private west garden and an exceptionally long lease..
- Three bedrooms within 845 sq.ft, bright period living spaces
- Private west-facing garden, rare for central London flats
- Share of freehold with circa 955 years remaining
- Single bathroom only; consider layout for family use
- Built pre-1900 with solid brick walls, likely low insulation
- Double glazing installed after 2002, improved noise and warmth
- Good transport links: Willesden Junction and Kensal Green nearby
- Fast broadband, excellent mobile signal and low local crime
Set on the ground floor of a handsome Edwardian terrace, this three-bedroom conversion offers period charm with practical modern upgrades. High ceilings, sash-style windows and a bay reception create bright living spaces, while recent double glazing improves comfort and efficiency.
A major perk is the private west-facing garden — rare for a central London flat — providing a secure outdoor space for children, plants or al-fresco dining. The flat benefits from a very long lease and a share of freehold, reducing long-term ownership costs and providing greater control over the building.
Practical details suit everyday family life: a fitted kitchen, one modern bathroom, mains gas central heating via boiler and good broadband and mobile signal. Transport links are strong, with Willesden Junction and Kensal Green accessible and local amenities on College Road within easy walking distance.
Be clear on limitations: the internal area is modest at 845 sq ft for three bedrooms, and there is a single bathroom. The building was constructed before 1900 with solid brick walls likely lacking cavity insulation, so buyers wanting high thermal performance may wish to budget for improvements. Overall this is a characterful, well-located family home with a rare private garden and long leasehold security.
3 bedroom flat for sale in Lushington Road, Kensal Rise (Borders), NW10 5UX, NW10 — £679,950 • 3 bed • 1 bath • 894 ft²
3 bedroom apartment for sale in Monson Road, London, NW10 — £825,000 • 3 bed • 1 bath • 1060 ft²
2 bedroom flat for sale in Harlesden Road, London, NW10 — £500,000 • 2 bed • 1 bath • 646 ft²
3 bedroom apartment for sale in Roundwood Road, London, NW10 — £525,000 • 3 bed • 2 bath • 960 ft²
2 bedroom end of terrace house for sale in Ridley Road, London, NW10 — £650,000 • 2 bed • 1 bath • 968 ft²
3 bedroom apartment for sale in Denzil Road, Willesden, NW10 — £474,950 • 3 bed • 1 bath • 894 ft²










































