Large plot, powered outbuildings and generous off‑street parking for family living.
Driveway parking for six cars — rare and very convenient
Large rear garden backing onto allotments, private outdoor space
Multiple powered outbuildings; one includes toilet and plumbing
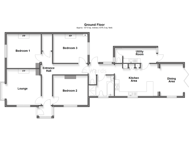
Three double bedrooms — flexible use as bedrooms or reception rooms
Extended to rear and side — check planning/building‑regulation consents
Solid brick walls (circa 1900–1929); insulation likely required
Large plot and single‑storey living ideal for families or accessible living
Fast broadband, mains gas heating, low flood and crime risk
This extended three-bedroom semi-detached bungalow on Canterbury Road offers spacious single‑storey living in a comfortable Kennington neighbourhood. All three bedrooms are doubles and the generous kitchen, lounge and dining areas suit family life or easier downsizing. The property sits on a large plot with a wide driveway for six cars and a long rear garden backing onto allotments, creating a private outdoor space for play and entertaining.
A standout feature is the row of outbuildings, all with electrical supply and one with a toilet and plumbing — ideal for a home office, hobby space or potential ancillary use (subject to consent). The house was built 1900–1929 with solid brick walls; it benefits from gas central heating, double glazing and fast broadband, and sits in a low‑crime, low‑flood‑risk area close to well‑rated schools.
Buyers should note the property’s age and construction mean insulation and some internal updating may be required, and the side/rear extensions should be checked for planning and building‑regulation compliance. The bungalow’s solid brick walls are assumed uninsulated and some buyers may want to upgrade thermal efficiency and modernise fixtures.
Overall this home suits families seeking roomy, single‑level accommodation with substantial outdoor space and flexible outbuildings, or buyers wanting a property with clear potential to improve and personalise. Interested parties must verify measurements, tenure and any consents before purchase.
3 bedroom detached bungalow for sale in Park Road, Kennington, TN24 — £469,995 • 3 bed • 2 bath • 1148 ft²
2 bedroom semi-detached bungalow for sale in Nettlefield, Kennington, Ashford TN24 — £335,000 • 2 bed • 1 bath • 602 ft²
3 bedroom bungalow for sale in Park Vale, Kennington, TN24 9NH, TN24 — £375,000 • 3 bed • 2 bath • 1133 ft²
2 bedroom semi-detached bungalow for sale in Bybrook Road, Kennington, Ashford, TN24 — £335,000 • 2 bed • 1 bath • 693 ft²
3 bedroom detached bungalow for sale in Broadhurst Drive, Ashford, TN24 — £350,000 • 3 bed • 1 bath
4 bedroom detached bungalow for sale in The Street, Ashford, TN24 9, TN24 — £400,000 • 4 bed • 1 bath • 901 ft²






























































